Penthouse Flat 8, 73 Lancefield Quay, Finnieston, Glasgow City, G3 8HA
Offers Over £260,000
Duplex Apartment
2 Bedrooms
2 Bathrooms
1 Reception Room
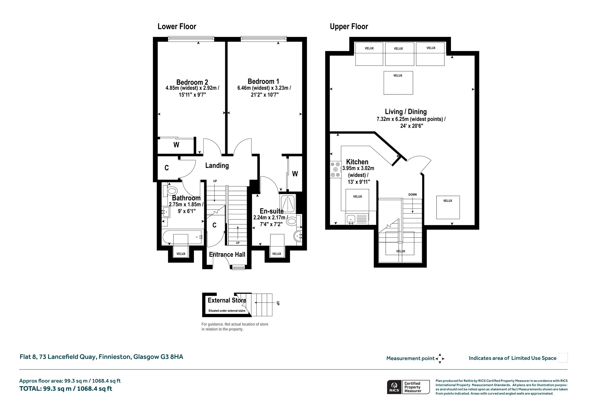
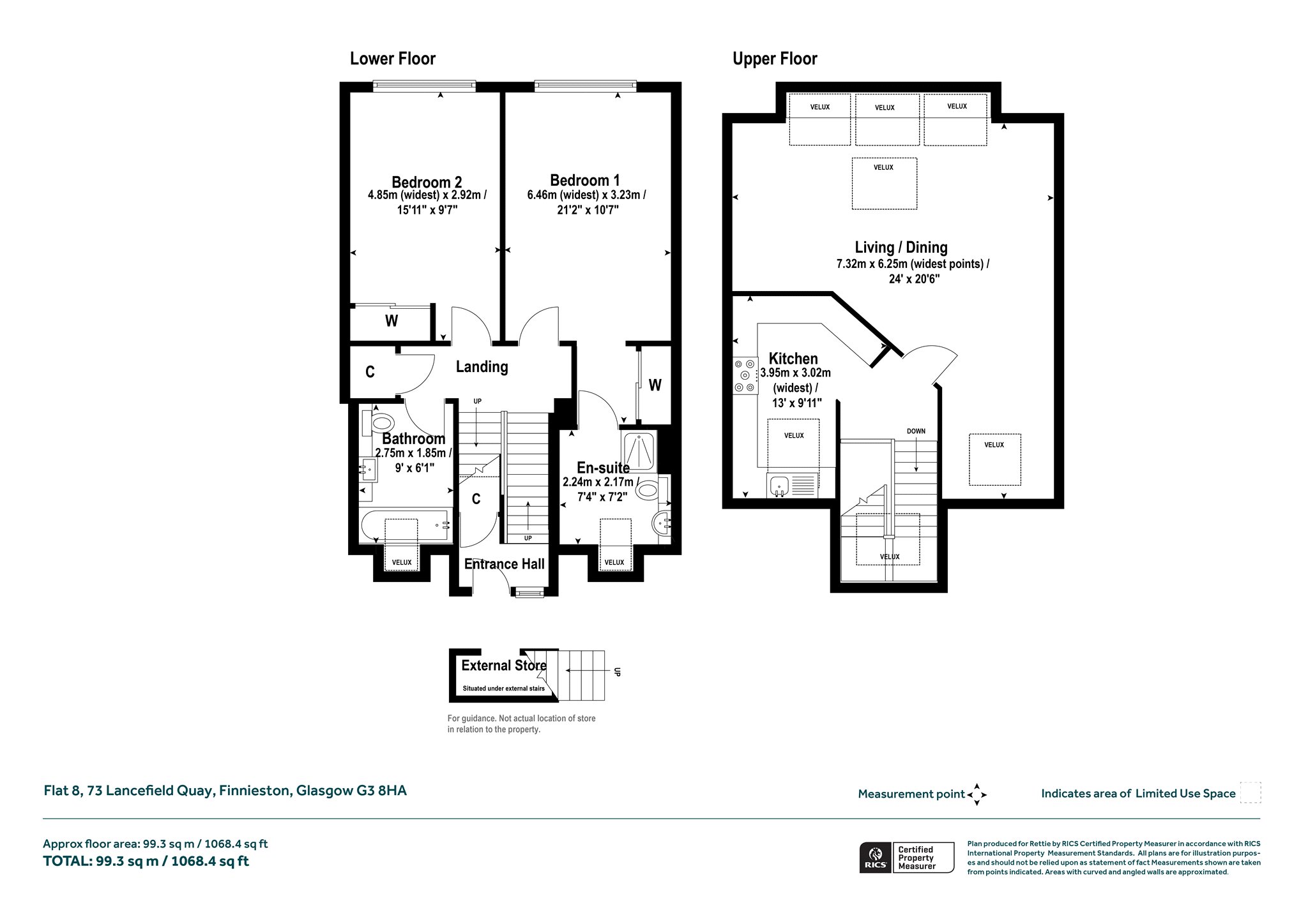
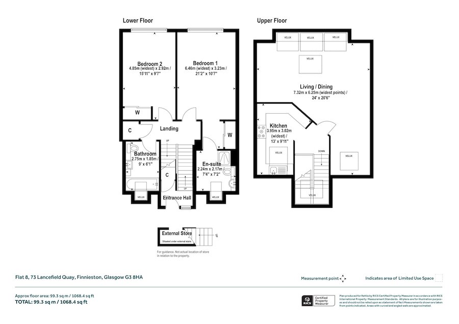
1,098 sq.ft
Secure Parking
Property Description
A striking duplex penthouse apartment forming part of the original Lancefield Quay development – one of Glasgow’s pioneering residential warehouse conversions. Perfectly positioned on the banks of the River Clyde, the property enjoys glorious, uninterrupted south-facing views across the water. This stylish apartment has been both comprehensively upgraded with quality fittings, and beautifully maintained. Offering generous, light-filled accommodation throughout. A standout feature is the expansive living/dining room that spans over 20ft and overlooks the river. There’s also the convenience of an allocated space in the secure ground floor residents' car park. The location is exceptional – ideal for access to the City Centre, the International Financial Services District, and vibrant Finnieston, with an array of shops, bars, and restaurants along nearby Argyle Street, plus excellent transport connections.
Accessed via a secure entry system and communal stairwell to each level, the accommodation comprises: lower level with welcoming reception hallway with handy storage cupboards; two spacious double bedrooms both enjoying a south-facing outlook over Lancefield Quay and having with ample fitted wardrobes and bedroom one with modern en suit shower room with crisp white suite and tiled floor and there is a main bathroom with white three-piece suite an over bath shower and thermostatically controlled underfloor heating. Upstairs, a contemporary kitchen re-fitted with a range of wall and base units, an Instant hot water tap, integrated appliances, and tiled floor and the impressive main living/dining space with ample space for dining and added light from two Velux ceiling windows. Additional features include quality floorcoverings from luxury carpeting on the lower level to wooden flooring in the main living space excellent storage with a shelved Boiler cupboard, which is used as a drying cupboard and an external extra storage cupboard to the right of the front door. The property has EPC Band C a Nest heating thermostat controlling the gas central heating and double glazing and further benefits the private parking space in a secured, undercover area on the ground floor of the block
Please note furniture may be available by separate negotiation..
Situation:
Lancefield Quay is situated on the edge of the City Centre and offers easy access to the central business district and a superb choice of wine bars, many highly acclaimed restaurants and wealth of amenities including both general and specialist shopping. In addition, being ideally located mid-way between Glasgow City Centre and the trendy West End’s vibrant neighbourhood of Finnieston, a prominent and widely renowned social location; there is within a short distance a myriad choice of exhibition and conference venues, shopping, culture and several fitness clubs. In close proximity, is Glasgow’s media centre, the Universities of Glasgow, Strathclyde and Caledonian. Excellent road links, including M8, M74 and M77 motorways, are all easily accessible as are Exhibition Centre Train Station for access to Glasgow Central Railway Stations. Glasgow, Edinburgh and Prestwick airports can all be reached within less than an hour’s drive.
Travel Directions
Driving from our branch on Bath Street, proceed west on Bath Street towards Charing Cross, at the junction with Newton Street turn left and proceed south on A804 towards Anderston Quay, at the junction turn right onto Lancefield Quay where the building can be found on the left-hand side. No. 73 is the second entrance on the left-hand side opposite the opening to Hydepark Street.
More Details
EPC: B
Council Tax Band: G
Tenure: Freehold
Your home may be repossessed if you do not keep up repayments on your mortgage. There may be a fee for mortgage advice. The actual amount you pay will depend upon your circumstances.
Similar Properties
Looking To Sell Or Let?
Rettie is one of the most trusted and well-respected names in property. Our unrivalled market knowledge helps people from around the world buy, sell, let and develop property in Scotland and the North East of England - from city apartments and rural cottages to large townhouses and prime country homes, farms and estates. We deal with some of the most prestigious properties on the market, but provide the same exceptional standards of service and value for money to all our clients.
