Flat 1/7 Old Sheriff Court Building, 149 Ingram Street, Merchant City, Glasgow, G1 1DW
Property Description
A truly exceptional home in a prestigious Merchant City setting. This generously proportioned and stylish two-bedroom duplex apartment offers a superb blend of space, elegance, and contemporary living. Positioned on the first floor of a striking Merchant City development, the property is part of the iconic B-listed former Glasgow Sheriff Court Building, a stunning neo-classical landmark dating back to 1844, which was converted into luxury apartments in 2005. Parking space available for sale at 95 Candleriggs for an additional cost.
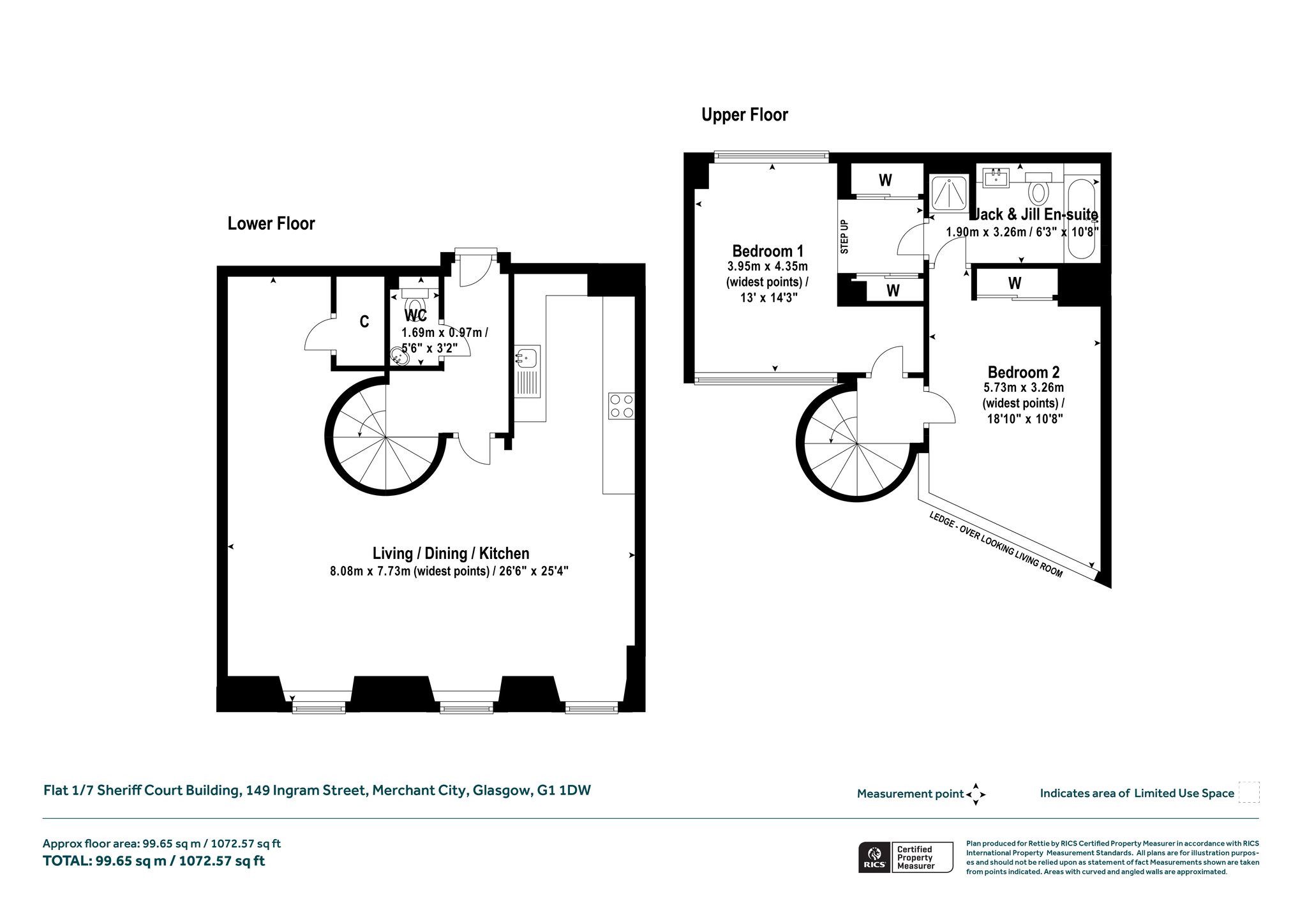
Spanning over 1,100 sq ft, this larger-style duplex boasts impressive features, including soaring ceilings, a building concierge, private terraced gardens, and a residents’ gym room. Natural light floods the living space through three grand sash and case windows, with the main living and dining area stretching to a remarkable 16’8” ceiling height. Additional highlights include a stylishly refitted cloakroom W.C., a mezzanine-level principal bedroom, a refitted Jack and Jill bathroom connecting to the second double bedroom which featuring a sleek glass partition wall, offering an open aspect over the living area and a spacious walk-through wardrobe completes the package. The property has double glazing and gas central heating from an individually metered communal boiler.
The property benefits from having a parking space available for sale in nearby Candleriggs gated carpark. Persimmon Homes have provided a Letter of Undertaking for the cladding remediation works.
Situation
Located on Ingram Street in the Merchant City, this location offers unquestionably one of the most envied and prominent social locations Glasgow has to offer with a wealth of amenities including both general and specialist shopping, wine bars and many highly acclaimed restaurants. This destination neighbourhood, within Glasgow’s City Centre has benefitted from significant redevelopment in the last few decades with a mix of both residential and commercial redevelopment. The property is adjacent to the Merchant City’s Social Hub offering Co-working spaces, it is in good proximity to Glasgow’s Style Mile, Glasgow’s International Financial Services District, Strathclyde & Caledonian Universities, the Glasgow School of Art and Royal Conservatoire, the SEC and The Clyde Auditorium. The area benefits from frequent public transport with easy access to Queen Street and Central Train Stations, and both Buchanan St and St Enoch subway stations. Public transport and road links are exceptional.
Travel Directions
Walking from George Square continue South onto South Frederick Street. At the lights turn left onto Ingram Street passing by the Italian Centre on the left. Crossing at the pedestrian lights on the Glassford Street Junction, continue heading east on Ingram Street, cross over Hutchison Street. where you will find The Sheriff Court Building entrance at No. 149 almost immediately on the right-hand side.
CTax G
EPC B
Tenure: Freehold
More Details
Situation: Contact branch
Council Tax Band: G
Tenure: Contact Branch
Your home may be repossessed if you do not keep up repayments on your mortgage. There may be a fee for mortgage advice. The actual amount you pay will depend upon your circumstances.
Similar Properties
Looking To Sell Or Let?
Rettie is one of the most trusted and well-respected names in property. Our unrivalled market knowledge helps people from around the world buy, sell, let and develop property in Scotland and the North East of England - from city apartments and rural cottages to large townhouses and prime country homes, farms and estates. We deal with some of the most prestigious properties on the market, but provide the same exceptional standards of service and value for money to all our clients.
