Flat 4/6, Headline Building, 205 Albion Street, Merchant City, Glasgow City, G1 1RU
Property Description
Stylish one-bedroom apartment in the heart of Glasgow’s vibrant Merchant City with a modern interior and with excellent accessibility to city amenities and transport links.
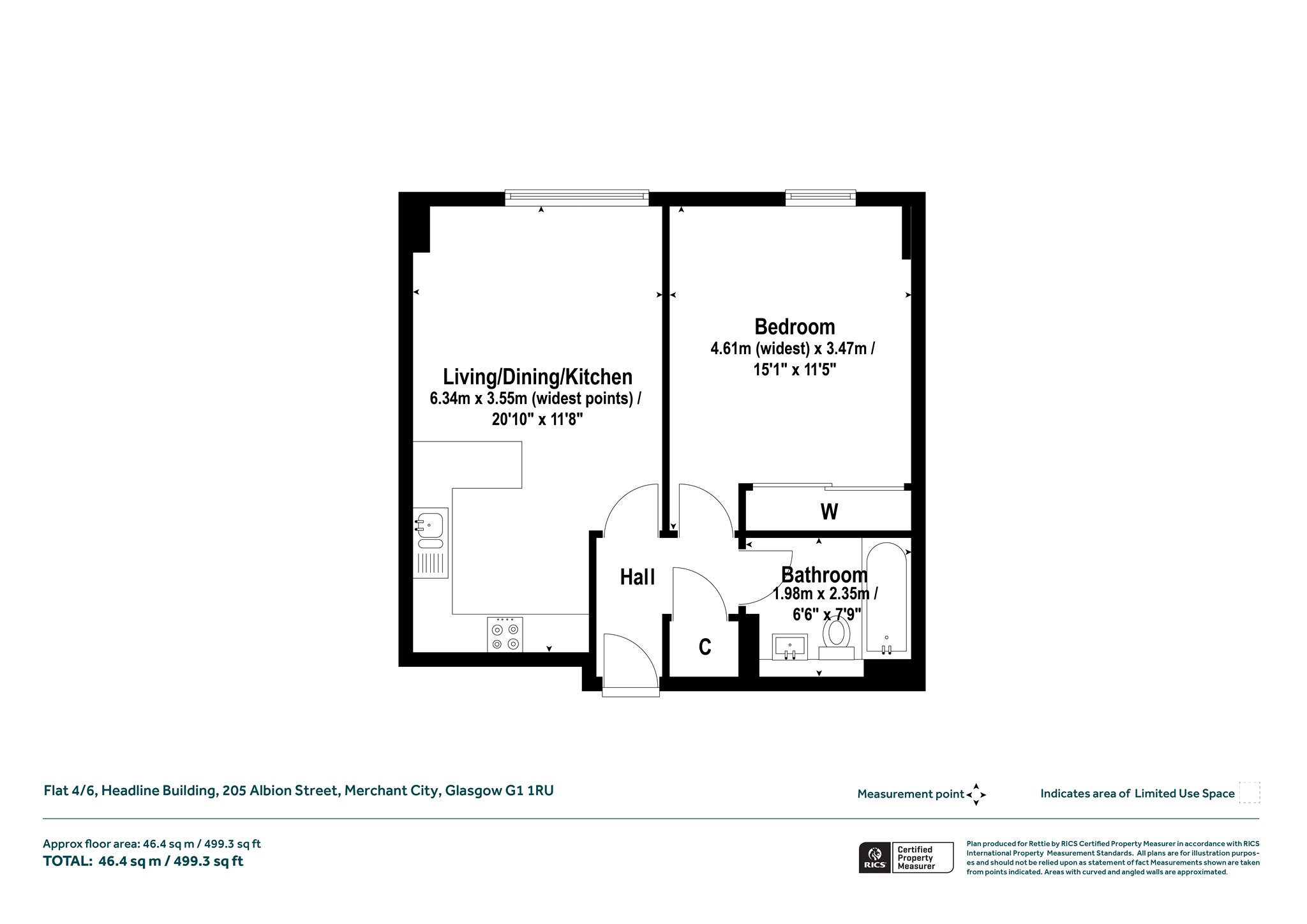
Set within the popular Headline Building in the Merchant City, this impressive one-bedroom, fourth-floor apartment enjoys a prime central location and is perfectly placed to take full advantage of the area's renowned bars, restaurants, cultural venues, shopping, and transport links. Overlooking Albion Street, the property offers bright and well-balanced accommodation with a fresh contemporary feel with an open plan living and dining space, stretching over 20’10" into modern kitchen area complete with a dining peninsula separating it from the living space and with integrated appliances.
Entered via a security entry system to communal entrance, there is both lift and stair access to each level; a welcoming reception hall with laminate wood flooring, useful double storage cupboard, with shelving and a washing machine; generous main living space with two section, full height window to Albion Street and laminate wood flooring; impressive open plan modern kitchen with breakfasting peninsula and a range of white gloss base and wall units and integrated appliances to include dishwasher, oven, gas hob & extractor hood; the double bedroom is a generous room with laminate floor coverings, two section full height window to Albion Street, fitted wardrobes and there is a three piece bathroom with tiled flooring and comprising bath, over bath shower, toilet and wash hand basin. The property has gas central heating and double glazing providing EPC Band B.
Situation
This stylish apartment is situated in the heart of the Merchant City where there is a Sainsbury’s local store on the ground floor of the building and an outstanding selection of shops nearby in the Style Mile of Ingram Street, Buchannan Street and Argyle Street together with a wonderful choice of highly acclaimed restaurants and bars. Transport links are on the doorstep via bus and by rail at Glasgow Queen Street, High Street and Central Station are all within a few minutes’ walk. Strathclyde University and Research Centres are on the doorstep and the Royal Infirmary hospital is nearby on High Street. The property is exceptionally well placed for road links including the M8 motorway network.
Travel Directions
On foot from George Square head south onto South Frederick Street towards Ingram Street. At the traffic lights turn left onto Ingram Street. Continue on Ingram Street taking the sixth left into Albion Street. Number 205 is along on the left-hand side.
More Details
EPC: B
Council Tax Band: D
Tenure: Freehold
Your home may be repossessed if you do not keep up repayments on your mortgage. There may be a fee for mortgage advice. The actual amount you pay will depend upon your circumstances.
Similar Properties
Looking To Sell Or Let?
Rettie is one of the most trusted and well-respected names in property. Our unrivalled market knowledge helps people from around the world buy, sell, let and develop property in Scotland and the North East of England - from city apartments and rural cottages to large townhouses and prime country homes, farms and estates. We deal with some of the most prestigious properties on the market, but provide the same exceptional standards of service and value for money to all our clients.
