Flat 4, 17 Athole Gardens, Dowanhill, Glasgow, G12 9BA
Property Description
An extremely bright, well-appointed two-bedroom second floor conversion which benefits from a highly central yet peaceful situation in the sought after West End district of Dowanhill – overlooking spectacular central leisure gardens into which the owner of home for sale has access.
Athole Gardens is a superb address in the extremely sought-after West End district of Dowanhill. For those not familiar with the area, it is home to some of the finest traditional homes in Glasgow and is known by residents as “the leafy village,” just off Byres Road. Private and extremely pretty, the streets of Dowanhill are lined with mature trees, and some addresses are fortunate enough to enjoy access to beautiful central gardens. This is an incredibly tranquil neighbourhood, yet all the amenities of Byres Road are within immediate reach. As such, this location appeals to everyone from students and academics seeking proximity to the University, to professional couples and downsizers. Athole Gardens is particularly special, as you will quickly appreciate during a viewing.
The home for sale is set within an elegant blonde sandstone townhouse at number 17, occupying an enviable position on the preferred curving section of Athole Gardens and facing south-east over the stunning, tree-lined central residents’ gardens. Number 17 has been thoughtfully subdivided into five private dwellings, all of which share access to a beautifully landscaped rear garden. Designed for ease of maintenance, this communal outdoor space features a generous timber deck – a perfect spot for residents to relax and enjoy the peaceful ambiance of Dowanhill when the weather allows.
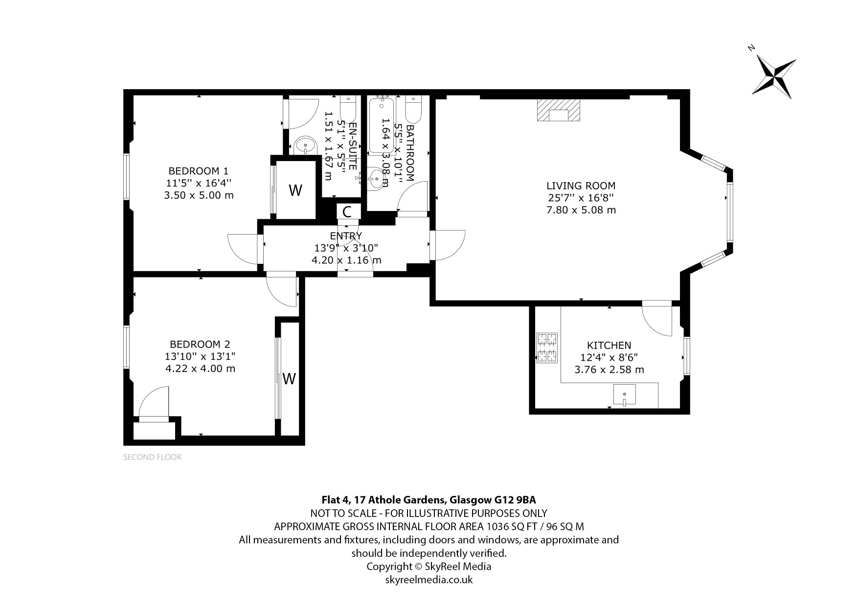
The property benefits from a charming second floor position and thanks to its superb elevation, enjoys fantastic levels of natural light. As you will see from the attached photographs, HD video and Matterport tour this is a particularly bright, beautifully appointed two-bedroom conversion which offers surprisingly roomy accommodation with good levels of purpose-built storage space. In brief the accommodation extends to; entrance hall, beautiful bay window living room with central fireplace - offering lots of space for a three-piece suite and dining area in bay window. The kitchen is just off the living room and has just been re-fitted to an extremely high standard including new units, appliances and fixtures. A lovely, airy kitchen which is flooded with natural light during the early part of the day. The bedrooms are of lovely proportions and comfortably accommodate king-sized beds and have in-built fitted wardrobes. The principal bedroom has an en-suite shower room which is tiled and the main bathroom has a white three-piece suite with shower over bath. Completing the interior is a handy hall cupboard.
Attributes
- Prime position on a highly sought-after, tree-lined West End address
- Situated within a handsome blonde sandstone townhouse on the preferred curving section of Athole Gardens
- Stunning south-east outlook over private residents’ gardens
- Shared, landscaped rear garden with generous timber decking
- Bright and airy second-floor position with superb natural light
- Spacious bay-window living room with feature fireplace and dining space
- Recently re-fitted, stylish kitchen with quality appliances
- Two generous double bedrooms with fitted wardrobes
- Principal bedroom with modern en-suite shower room
- Contemporary main bathroom with shower over bath
- Excellent built-in storage, including hall cupboard
- Located in the heart of Dowanhill, moments from Byres Road and Glasgow University
More Details
EPC: D
Council Tax: E
Tenure: Freehold
Your home may be repossessed if you do not keep up repayments on your mortgage. There may be a fee for mortgage advice. The actual amount you pay will depend upon your circumstances.
Similar Properties
Looking To Sell Or Let?
Rettie is one of the most trusted and well-respected names in property. Our unrivalled market knowledge helps people from around the world buy, sell, let and develop property in Scotland and the North East of England - from city apartments and rural cottages to large townhouses and prime country homes, farms and estates. We deal with some of the most prestigious properties on the market, but provide the same exceptional standards of service and value for money to all our clients.
