Flat 2/2, 38 Errol Gardens, New Gorbals, Glasgow, G5 0RR
Property Description
Under offer at Closing Date - Thursday 26th February 2026.
Extending across two levels, this impressively proportioned one bedroom apartment presents a fabulous opportunity to acquire a walk in ready duplex home in an exciting part of the New Gorbals.
Set within a modern development constructed around the turn of the Millenium, this seldom available duplex apartment enjoys a bright outlook and is neatly presented and well maintained. The property offers comfortable and flexible accommodation that will undoubtedly suit first time buyers, professionals or those seeking a smart buy to let proposition close to the City Centre, with the added advantage of a private parking space.
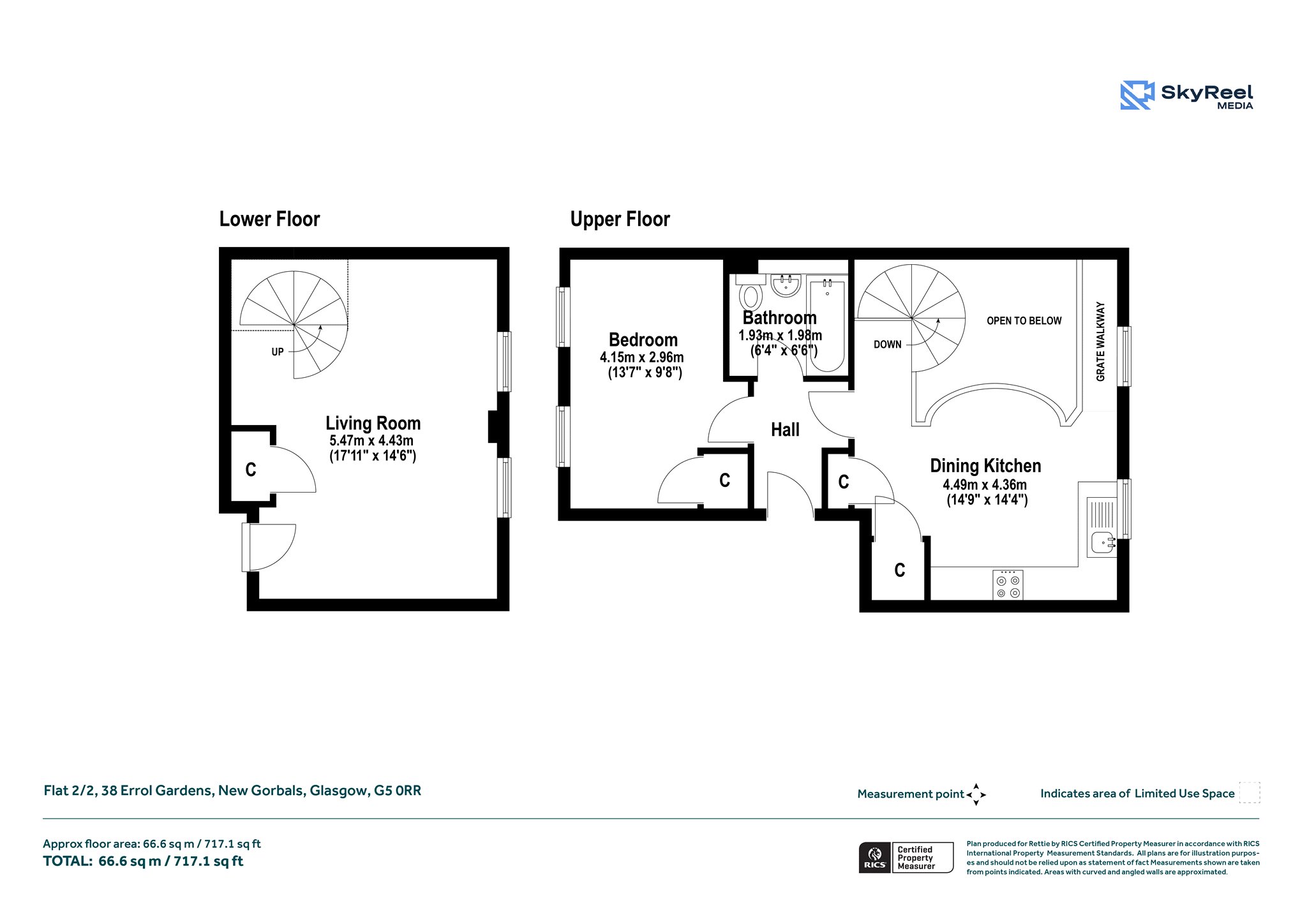
The layout is arranged over the second and third (top) floors and makes the most of the home’s striking double-height living space, where several windows draw in excellent natural light and along with the vaulted ceilings create a wonderful sense of volume. A spiral staircase leads to the upper level where a modern mezzanine dining kitchen peers over the lounge below, forming a sociable flow for day to day living and entertaining. The bedroom is a good double with fitted storage, while a neatly appointed bathroom completes the accommodation. Practical storage is provided on both levels, including an attic hatch off the upper hallway, while the unusual benefit of access/egress from each floor adds a layer of day-to-day convenience that’s rarely found.
New Gorbals has become one of the City Centre’s most appealing residential quarters, offering an easy balance of neighbourhood feel and urban convenience. A short journey or brisk walk brings you to the heart of town, while nearby green space at Glasgow Green and along the riverside provides excellent options for running, walking and cycling. A wide selection of amenities are close at hand, and the area is superbly placed for commuting, with strong transport links connecting quickly across Glasgow and beyond.
Accommodation
- Secure entry to communal hall with stair access.
- Impressive double height living room with two windows to the front, storage off, and spiral staircase to upper level.
- Modern dining kitchen, overlooking the living space below from the balconied dining area. The kitchen is modern with sleek white cabinetry contrasting dark tiled backsplash, butcher block counter tops, gas hob, electric oven, integrated fridge, two windows to the front, and two storage cupboards off.
- Hallway with door back to communal area and attic storage hatch.
- Double bedroom with fitted storage cupboard and two windows to the rear.
- Three piece bathroom with shower over bath.
- Gas central heating.
- Double glazing.
- Private parking space.
- Communal attractive resident’s pleasure gardens to rear.
More Details
EPC: C
Council Tax: C
Tenure: Freehold
Your home may be repossessed if you do not keep up repayments on your mortgage.
There may be a fee for mortgage advice. The actual amount you pay will depend upon your circumstances. The fee is up to 1% but a typical fee is 0.3% of the amount borrowed.
Similar Properties
Looking To Sell Or Let?
Rettie is one of the most trusted and well-respected names in property. Our unrivalled market knowledge helps people from around the world buy, sell, let and develop property in Scotland and the North East of England - from city apartments and rural cottages to large townhouses and prime country homes, farms and estates. We deal with some of the most prestigious properties on the market, but provide the same exceptional standards of service and value for money to all our clients.
