Offers Over £270,000
Upper Floor Apartment
2 Bedrooms
2 Bathrooms
1 Reception Room
Secure Parking
Property Description
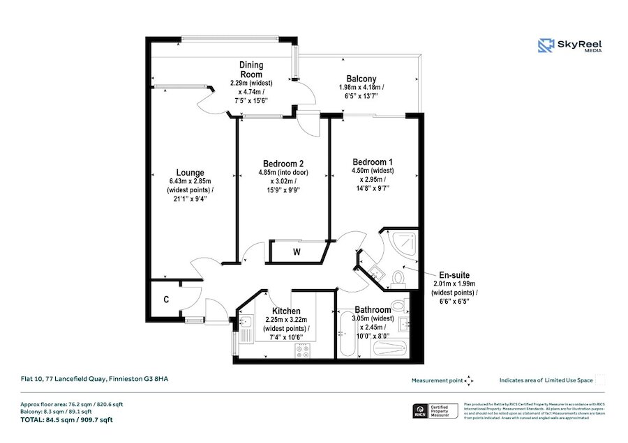
A superbly presented waterfront apartment set on the second floor of the iconic original Lancefield Quay warehouse conversion. One of Glasgow’s earliest warehouse redevelopments, the building occupies a prime position on the banks of the River Clyde, and this apartment enjoys uninterrupted south-facing views across the water from both its bright, contemporary ‘river room’ conservatory and its private balcony. The property also benefits from a secure residents’ parking space within the building’s car park. This two-bedroom home features a sleek and ultra modern refitted kitchen, alongside a luxurious main bathroom complete with a walk in shower and a large jacuzzi bath and is perfectly placed for city living, Lancefield Quay offers excellent transport connections via the nearby M8 motorway and Kingston Bridge, and is within walking distance of the vibrant Finnieston district, the Barclays Campus and Glasgow City Centre.
Accessed via security entry to a communal hallway with stair access to each secure floor, the accommodation comprises: reception hall with wooden flooring and a large storage cupboard off; living/dining room with wooden flooring and leading into a south facing conservatory that offers access to the private balcony; double bedroom two with wooden flooring, full height patio doors to the balcony and a double fitted wardrobe; double bedroom one also has patio door to the balcony, fitted wardrobe unit, wooden flooring and a stylish en suite shower room; beautifully re-fitted modern and luxurious bathroom with feature tiled walls, freestanding shower and jacuzzi bath; the sleek and modern kitchen is re-fitted and complete with a range of base and wall units with integrated appliances including an induction hob and a window overlooking the entrance courtyard area. The property has gas central heating, double glazing and an allocated parking space within the building’s residents’ car park.
Situation:
Lancefield Quay is situated between the City Centre and Glasgow's thriving West End. Benefiting from recently opened Sainsbury’s Local Supermarket and located on the edge of the International Financial Services District (IFSD) and offers a superb choice of wine bars, many highly acclaimed restaurants and wealth of amenities including both general and specialist shopping within the City Centre itself or the vibrant neighbourhood of Finnieston, a prominent and widely renowned social location; there is within a short distance a myriad choice of exhibition and conference venues, shopping, culture, and several fitness clubs. In close proximity, is Glasgow’s media centre, the Universities of Glasgow, Strathclyde and Caledonian. Excellent road links, including M8, M74 and M77 motorways, are all easily accessible as are Exhibition Centre Train Station for access to Glasgow Central Railway Stations. Glasgow, Edinburgh and Prestwick airports can all be reached within less than an hour’s drive.
Travel Directions
Driving from our City branch on Bath Street, proceed west on Bath Street towards Charing Cross, at the junction with Newton Street turn left and proceed south on A804 towards Anderston Quay, at the junction turn right onto Lancefield Quay where the building can be found on the left-hand side. No. 77 is the 4th stairwell almost halfway along the building.
More Details
Situation: Balcony
Council Tax Band: G
Tenure: Contact Branch
Your home may be repossessed if you do not keep up repayments on your mortgage.
There may be a fee for mortgage advice. The actual amount you pay will depend upon your circumstances. The fee is up to 1% but a typical fee is 0.3% of the amount borrowed.
Similar Properties
Looking To Sell Or Let?
Rettie is one of the most trusted and well-respected names in property. Our unrivalled market knowledge helps people from around the world buy, sell, let and develop property in Scotland and the North East of England - from city apartments and rural cottages to large townhouses and prime country homes, farms and estates. We deal with some of the most prestigious properties on the market, but provide the same exceptional standards of service and value for money to all our clients.
