Property Description
Enjoying a pleasant setting with views over lush green gardens and playpark, this attractive one-bedroom second floor apartment offers bright accommodation in the heart of Yorkhill - a vibrant West End district known for its excellent amenities and proximity to key institutions.
The property will appeal to a wide spectrum of buyers but is likely to be of particular interest to students or academics, given its easy access to Glasgow University (approx. 0.7 miles) and Kelvingrove Park.
The home is held within a low-rise modern brick apartment block, surrounded by neat communal lawns. A secure entry system provides access to clean and tidy communal hallways, and residents will also benefit from on-street permit parking (available via Glasgow City Council). This section of Overnewton Square enjoys a particularly enjoyable aspect across open lawns which creates a calm and peaceful atmosphere, while still being just moments from the vibrancy of Finnieston.
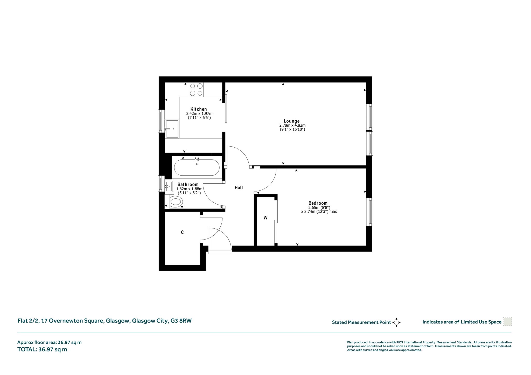
Internally, the apartment is presented in neutral condition with double glazing throughout and offers a practical layout that will suit a variety of purchasers — whether as a first-time buy, investment, or city base. The accommodation comprises an entrance hallway with storage cupboard, a bright living room with space for lounge and dining furniture, a fitted kitchen, a double bedroom, and a fresh bathroom with white suite and shower over bath.
The kitchen is a particular highlight, presented in very good condition with a clean, modern finish. Fitted with integrated appliances and sleek cabinetry, it provides a bright and pleasant space that is both practical and inviting.
Situated close to bars, restaurants, coffee shops and excellent transport links, the property is also within easy walking distance of the University and Kelvingrove Park, making it a superb West End home in a highly desirable location.
________________________________________
Key Attributes
- Attractive second floor one-bedroom apartment.
- Peaceful setting overlooking green space and playpark.
- Just 0.7 miles from Glasgow University.
- Moments from Kelvingrove Park & Finnieston.
- Surrounded by restaurants, cafes, bars & local shops.
- Located in vibrant Yorkhill with excellent transport links.
- Secure entry to building with well-kept communal halls.
- Neat communal lawns surrounding the block.
- On-street permit parking available via Glasgow City Council.
- Bright living room with double window to the front and separate fitted kitchen.
- Double bedroom with space for wardrobes.
- Modern bathroom with white suite and shower over bath.
- Double glazing.
- Ideal for students, first-time buyers, or investors.
More Details
EPC: C
Council Tax: C
Tenure: Freehold
Your home may be repossessed if you do not keep up repayments on your mortgage. There may be a fee for mortgage advice. The actual amount you pay will depend upon your circumstances.
Similar Properties
Looking To Sell Or Let?
Rettie is one of the most trusted and well-respected names in property. Our unrivalled market knowledge helps people from around the world buy, sell, let and develop property in Scotland and the North East of England - from city apartments and rural cottages to large townhouses and prime country homes, farms and estates. We deal with some of the most prestigious properties on the market, but provide the same exceptional standards of service and value for money to all our clients.
