0/2, 13 Queensborough Gardens, Hyndland, Glasgow, G12 9PP

Hyndland, Glasgow, G12 9PP
Sold
Pin View on map

Offers Over £445,000

House

Ground Floor Apartment

Bed

3 Bedrooms

Bathroom

2 Bathrooms

Reception

1 Reception Room

Size

1,412 sq.ft

Parking

On Street/Permit

Telephone

Property Description

A Stunning three-bedroom traditional tenement flat enjoying an elevated position overlooking Queensborough Gardens.

Occupying a prominent position at the junction of Queensborough Gardens and Falkland Street, this exceptional three-bedroom tenement flat forms part of a handsome red sandstone building and offers a rare opportunity to acquire a beautifully reconfigured and immaculately presented home in one of the West End’s most sought-after locations.

Elevated above the leafy expanse of Queensborough Gardens, the flat enjoys open outlooks and an enviable sense of space. Internally, the property has been meticulously redesigned to combine traditional charm with modern functionality. A particular highlight is the substantial open-plan dining kitchen and living space, cleverly situated at the front of the flat to maximise light and views. This stunning area provides a perfect setting for everyday living and entertaining alike.

Throughout, the property is finished to an outstanding standard, with notable features including striking herringbone flooring, high ceilings, and a blend of period detailing and contemporary design. The layout includes three well-proportioned bedrooms, a beautifully refitted bathroom, and a luxurious en-suite shower room within the principal bedroom, styled with a high level of finesse. The entire interior was renovated during 2023, and the re-configuration has made this an extremely special home.

Queensborough Gardens is one of Hyndland’s finest addresses and is so convenient for local shops, bars, restaurants, Hyndland School and Hyndland Station. Local hospitals include Gartnavel General and the Queen Elizabeth Hospital (via the Clyde Tunnel).

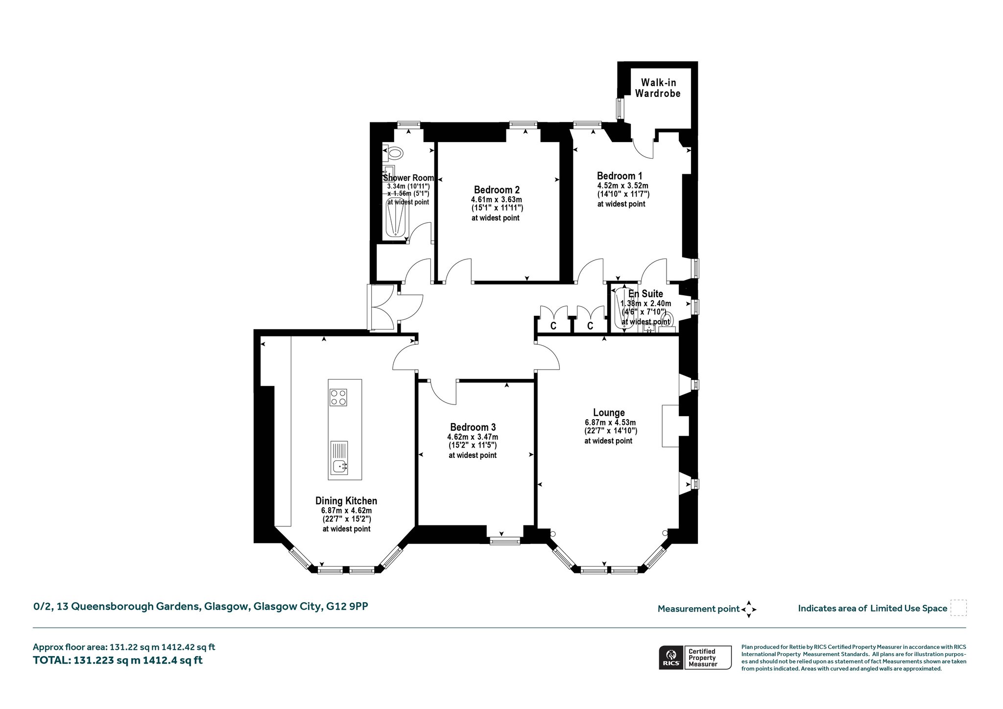
Accommodation:

  • Security entry system to communal entrance close.
  • Entrance vestibule with storm doors.
  • Spacious, welcoming reception hall, herringbone flooring and original storage cupboards.
  • Beautifully presented main lounge with four section bay window to the front, two gable windows with stained/leaded glass, focal point fire surround, herringbone flooring and ornate cornicing.
  • Outstanding, re-fitted dining kitchen with four section bay window to the front, generous units, quality worktops, central island, fitted appliances, herringbone flooring and ornate cornicing.
  • Bedroom one (principal) with window to the rear, walk-in wardrobe/storage, additional gable window and door to the en suite.
  • Superb en suite shower room with gable window, three piece white suite and Porcelanosa tiling.
  • Bedroom two with window to the rear.
  • Bedroom three with window to the front.
  • Inner hallway/storage area leading to the bathroom.
  • Stylish re-fitted shower room with three piece white suite, window to the rear and Porcelanosa tiling.
  • Gas central heating.
  • Mature gardens to the front of the building and communal gardens to the rear.

More Details

EPC: D
Council Tax: E
Tenure: Freehold

Contact Us

Lyndsey Mercer

Lyndsey Mercer

Sales Negotiator
Craig Roberts

Craig Roberts

Mortgage & Protection Advisor
Mortgage Calculator
Monthly payments
Please set an interest rate.

Your home may be repossessed if you do not keep up repayments on your mortgage. There may be a fee for mortgage advice. The actual amount you pay will depend upon your circumstances.

Tax Calculator
LBTT calculator for properties purchased in Scotland. Stamp Duty calculator for properties purchased in England.
Land & buildings transaction tax (LBTT)
= £0
New build house with stone and timber cladding

Looking To Sell Or Let?

Rettie is one of the most trusted and well-respected names in property. Our unrivalled market knowledge helps people from around the world buy, sell, let and develop property in Scotland and the North East of England - from city apartments and rural cottages to large townhouses and prime country homes, farms and estates. We deal with some of the most prestigious properties on the market, but provide the same exceptional standards of service and value for money to all our clients.