Property Description
This beautifully appointed two-bedroom ground floor apartment enjoys an enviable position within a highly desirable modern development in the ever-popular Broomhill area. Set in a fabulous corner position, the flat benefits from excellent natural light throughout and pleasant open outlooks over mature communal grounds.
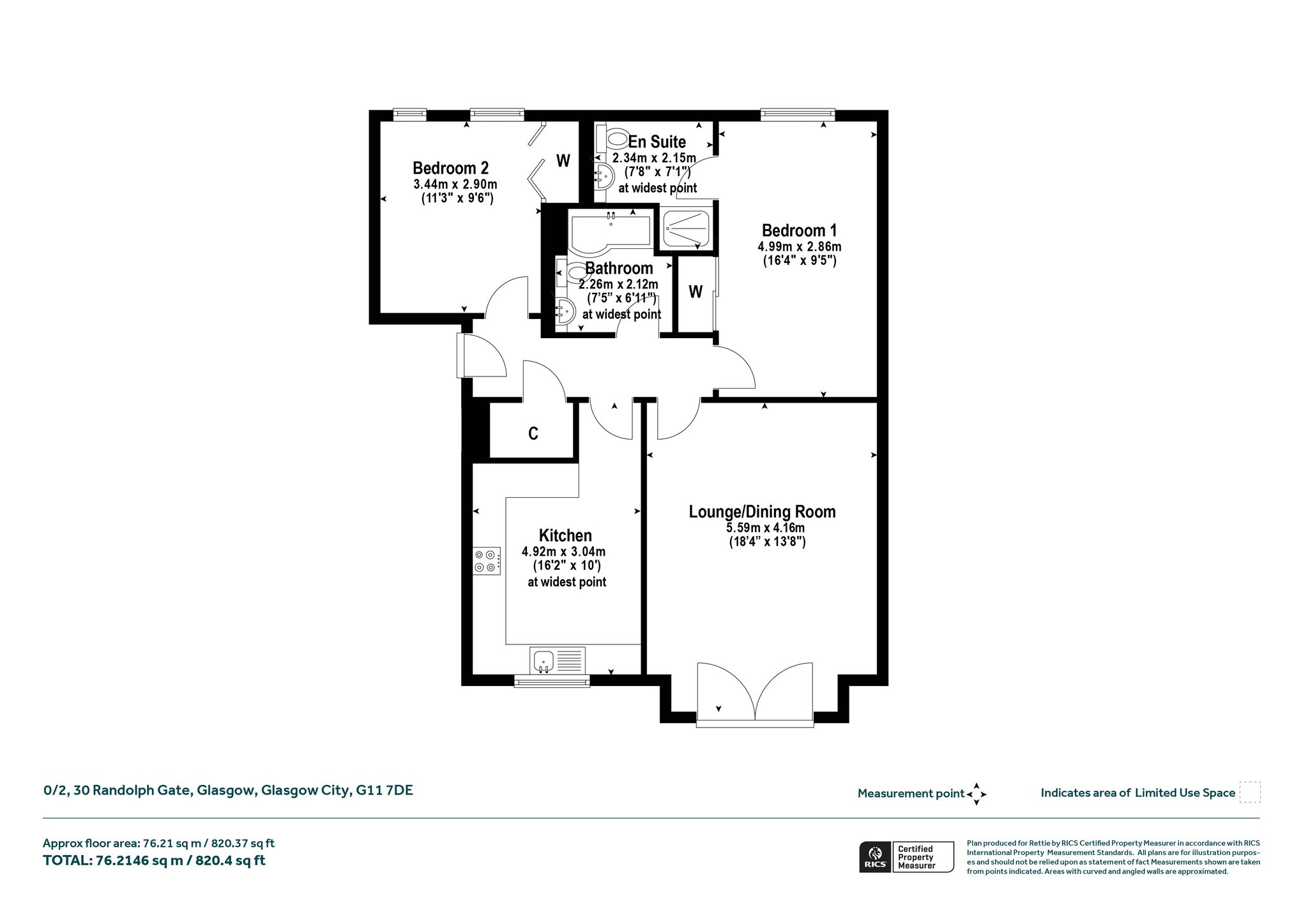
The accommodation is thoughtfully laid out and features a bright, front-facing lounge with Juliet balcony doors opening onto landscaped residents’ gardens. The dining-sized kitchen is well fitted with a full range of integrated appliances and ample space for dining. The property is further comprised of two double bedrooms; the principal having been fitted with integrated wardrobes and with access to an ensuite shower room. The interior has been well maintained and is decorated in fresh, neutral tones with carpeting throughout and also has a well-presented three-piece contemporary bathroom for added convenience.
The location is excellent for everyday amenities with shops, schooling, and transport links all close at hand. Jordanhill Railway Station is within easy reach, while nearby road connections provide quick access to the Clyde Tunnel, Clydeside Expressway, and Glasgow City Centre. The heart of the West End, with its wide selection of restaurants, cafés, and boutique shops, is only a short distance away.
Accommodation
- Secure entry system to a well-kept communal hallway with lift and stair access.
- Welcoming reception hallway with storage off.
- Bright and spacious lounge with Juliet balcony overlooking green gardens to the front.
- Dining kitchen fitted with a modern range of wall and base units, integrated oven, gas hob and extractor fan, dishwasher and washing machine, with window to the front.
- Bedroom one is double room with fitted wardrobes and access to ensuite shower room.
- Three piece ensuite shower room with window to the rear.
- Bedroom two is also of double proportions with fitted wardrobes window to the rear.
- Main three piece bathroom with electric shower over bath.
- Gas central heating.
- Double Glazing.
- Allocated residents’ and visitor parking.
- Free standing furniture and wall mounted television available by separate negotiation.
More Details
EPC: C
Council Tax: D
Tenure: Freehold
Your home may be repossessed if you do not keep up repayments on your mortgage.
There may be a fee for mortgage advice. The actual amount you pay will depend upon your circumstances. The fee is up to 1% but a typical fee is 0.3% of the amount borrowed.
Similar Properties
Looking To Sell Or Let?
Rettie is one of the most trusted and well-respected names in property. Our unrivalled market knowledge helps people from around the world buy, sell, let and develop property in Scotland and the North East of England - from city apartments and rural cottages to large townhouses and prime country homes, farms and estates. We deal with some of the most prestigious properties on the market, but provide the same exceptional standards of service and value for money to all our clients.
