Offers Over £199,000
Upper Floor Apartment
1 Bedroom
1 Bathroom
1 Reception Room
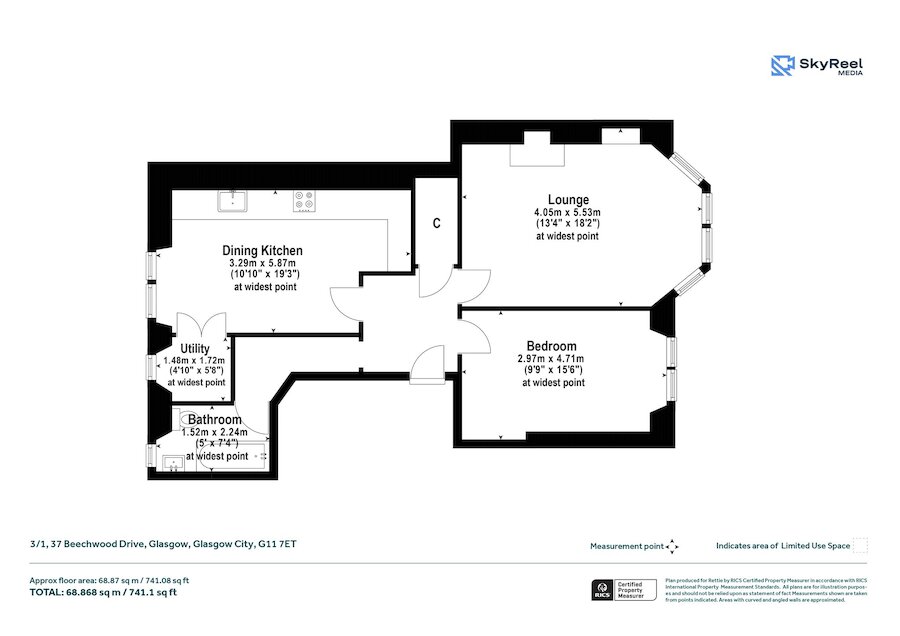
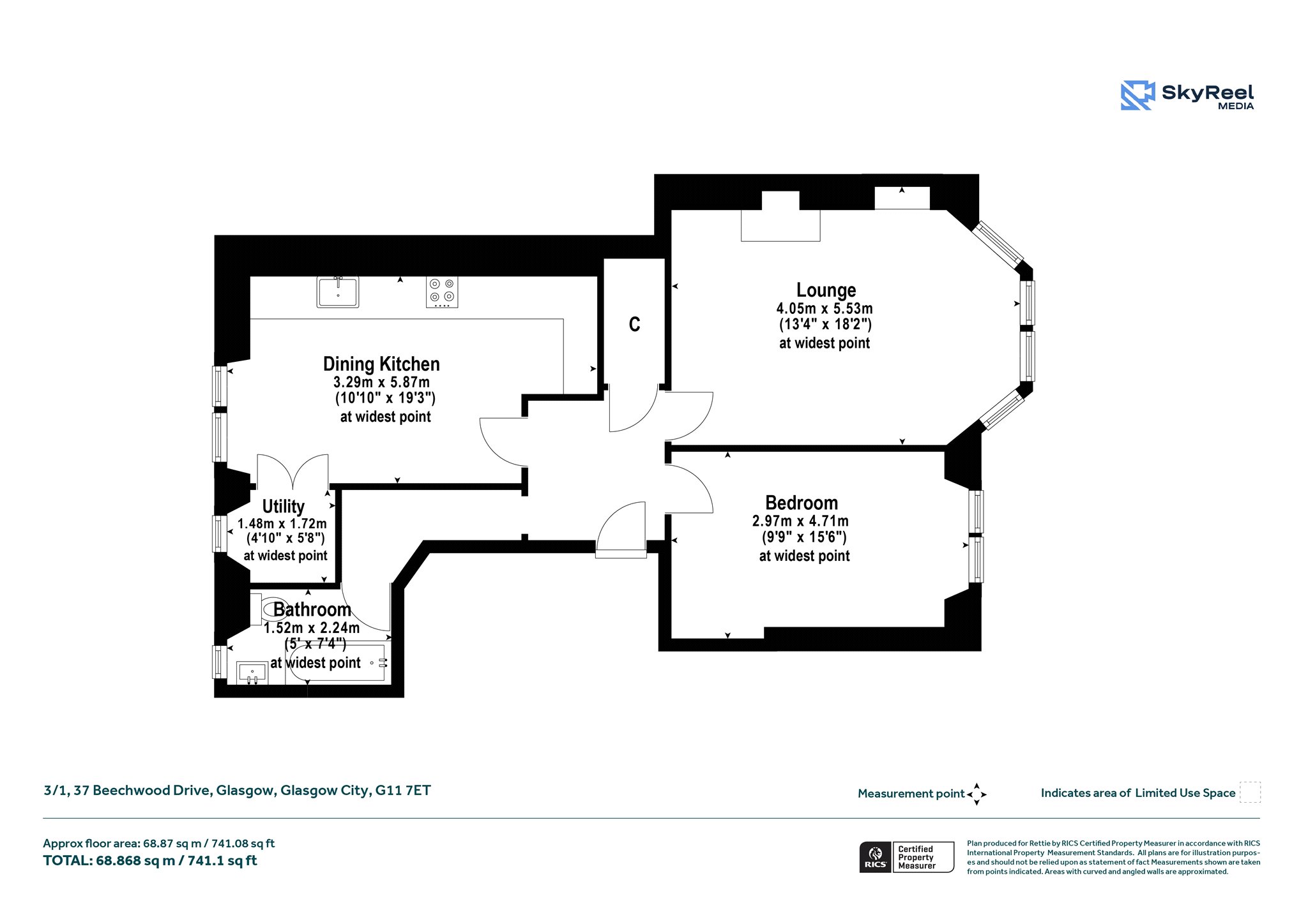
841 sq.ft
Communal Garden
On Street/Permit
Property Description
Occupying a third floor (top) position within a handsome red sandstone tenement, this generously proportioned one bedroom apartment relishes its quiet yet convenient setting in the popular Broomhill Area.
The apartment is beautifully finished and offers bright, well-balanced accommodation enhanced by period proportions and tasteful décor. The heart of the home is a stunning four section bay-windowed lounge with a traditional focal point fireplace and a gorgeous outlook. To the rear, there is a dining kitchen fitted with a comprehensive range of turquoise contemporary units, ample worktop space and room for a dining table, complemented by an invaluable separate utility area that houses a clothes drying “pulley”. The double bedroom is a particularly generous size with plenty of space for free-standing furniture, and the beautifully appointed bathroom features a modern three-piece suite with over-bath shower and stylish tiling completing the accommodation.
37 Beechwood Drive is ideally located for an excellent selection of local shops, cafés and restaurants on Crow Road, while Hyndland Railway Station and regular bus services offer easy access across the city. Clarence Drive and Hyndland Road are also within comfortable walking distance, with the University of Glasgow just beyond.
Accommodation
- Secure door entry to communal stairwell.
- Large welcoming reception hall with storage off.
- Impressive bay-windowed lounge with feature fireplace and traditional floorboards.
- Contemporary dining kitchen with extensive fitted units, integrated appliances and space for dining.
- Separate utility room off the kitchen.
- Generous double bedroom with two section window to the front.
- Modern three piece bathroom with shower over bath accessed via connecting hallway.
- Gas central heating.
- Double glazing.
- Attractive shared rear garden.
More Details
EPC: D
Council Tax: D
Tenure: Freehold
Your home may be repossessed if you do not keep up repayments on your mortgage. There may be a fee for mortgage advice. The actual amount you pay will depend upon your circumstances.
Similar Properties
Looking To Sell Or Let?
Rettie is one of the most trusted and well-respected names in property. Our unrivalled market knowledge helps people from around the world buy, sell, let and develop property in Scotland and the North East of England - from city apartments and rural cottages to large townhouses and prime country homes, farms and estates. We deal with some of the most prestigious properties on the market, but provide the same exceptional standards of service and value for money to all our clients.
