Property Description
Located within half a mile of both Glasgow University and The Glasgow School of Art, this particularly spacious three-bedroom second floor tenement apartment occupies a prime corner position within a handsome blonde sandstone building in the ever-popular Woodlands district of the West End. The location is especially attractive for professionals and students alike, with excellent public transport options and a vibrant local culture right on the doorstep.
St George’s Cross Underground Station is just a short stroll away, providing quick and easy access to the city centre, while motorists benefit from superb access to the M8 motorway (approximately 0.6 miles away), making this a convenient base for those who regularly commute throughout West Central Scotland. The immediate area offers an eclectic and dynamic mix of independent coffee shops, stylish boutiques, buzzing bars, and excellent restaurants, all contributing to a lively and highly sought-after neighbourhood atmosphere.
The property itself is held within a well-maintained tenement with secure entry and tidy common hallways. Situated at the second floor and accessed via the right-hand door on the landing, the apartment enjoys the unique benefit of its corner position, which significantly enhances its internal footprint and allows for an abundance of natural light through multiple front-facing windows.
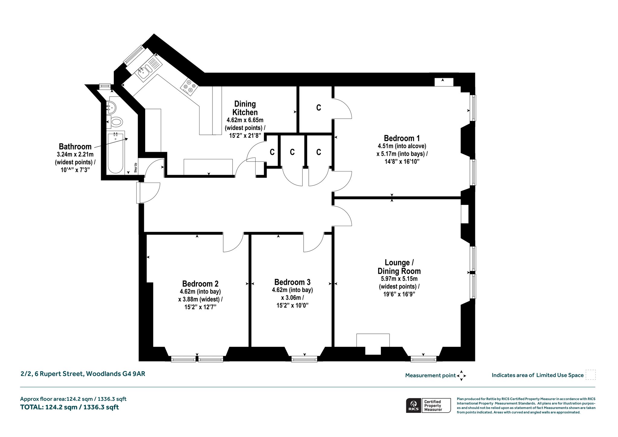
Internally, the accommodation comprises a broad reception hallway with excellent storage, a generous corner-aspect living room with twin windows, three impressively sized double bedrooms—each easily accommodating a full suite of bedroom furniture and study space—and a dining-sized kitchen with in-built appliances and an open outlook to the rear courtyards of neighbouring buildings. The bathroom has been modernised and features white three-piece suite, shower over bath and elegant tiling.
Attributes
- Particularly spacious three-bedroom apartment
- Second floor position with corner aspect for exceptional natural light
- Prime Woodlands location, approx. 0.4 miles to both Glasgow University & Glasgow School of Art
- Moments from St George’s Cross Underground for fast city centre access
- Just 0.6 miles to M8 motorway for convenient regional commuting
- Situated in a well-kept blonde sandstone tenement with secure entry
- Bright and expansive corner-aspect living room
- Three large double bedrooms with space for study/work areas
- Dining-sized kitchen with pleasant open rear views
- Eclectic local amenities including bars, cafés, boutiques, and restaurants
- Ideal for students, professionals, or those seeking a vibrant West End lifestyle
More Details
EPC: C
Council Tax: D
Tenure: Freehold
Your home may be repossessed if you do not keep up repayments on your mortgage. There may be a fee for mortgage advice. The actual amount you pay will depend upon your circumstances.
Similar Properties
Looking To Sell Or Let?
Rettie is one of the most trusted and well-respected names in property. Our unrivalled market knowledge helps people from around the world buy, sell, let and develop property in Scotland and the North East of England - from city apartments and rural cottages to large townhouses and prime country homes, farms and estates. We deal with some of the most prestigious properties on the market, but provide the same exceptional standards of service and value for money to all our clients.
