The Mews, 4 Claremont Place, Park, Glasgow, G3 7YR

Park, Glasgow, G3 7YR
Sold
Pin View on map

Offers Over £385,000

House

Terraced House

Bed

3 Bedrooms

Bathroom

5 Bathrooms

Reception

2 Reception Rooms

Info-circle

Investment

Parking

On Street/Permit

Telephone

Property Description

A superb opportunity for an experienced developer or savvy buy to let investor to acquire a handsome and surprisingly substantial blonde sandstone mews house which benefits from an extremely sought after position within Glasgow’s renowned Park district – with full planning permission for conversion into two self-contained dwellings, both with main door entrances.

‘The Mews’ has an extremely central yet tranquil position at the corner of Claremont Place and Woodside Terrace Lane, in Glasgow’s distinguished Park district between the West End and City centre. Known for its beautiful classical architecture and stunning tree-lined addresses which are formed near the boundaries of Kelvingrove Park – this fabulous residential area appeals to a broad spectrum of buyers and is commonly known as one of the city’s most popular, high value locations.

Thanks to this extremely convenient setting, The Mews offers easy access to a wide array of local amenities, including popular cafés, bars, restaurants, shops, and excellent public transport options. The Park area is especially sought-after among professionals, particularly those affiliated with the University of Glasgow or commuting across West Central Scotland, thanks to its convenient proximity to major transport routes—most notably, junction 18 of the M8 is just minutes from the doorstep. Finnieston, which is regarded as the city’s most vibrant location in terms of restaurants, bars and coffee shops is just 0.5 miles or a 10-minute walk from the property’s front door. This of course places The Mews within 1 mile of the Hydro entertainment venue. Considering that planning permission has been granted for two main door conversions and the potential of a main door dwelling for short let rentals in Glasgow, along with the property’s proximity to the Hydro and so many other local attractions – this opportunity is certain to appeal to any investor that specialises in the short let accommodation business.

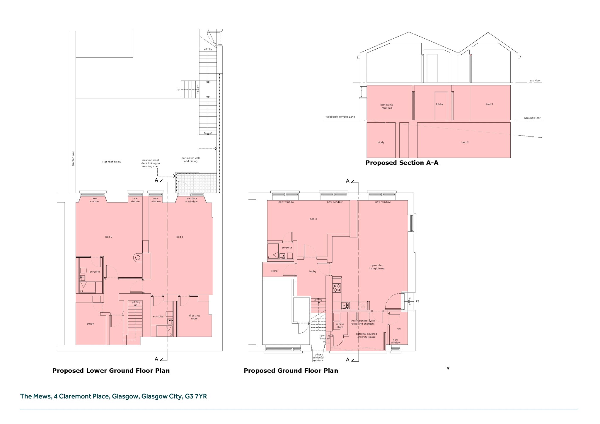
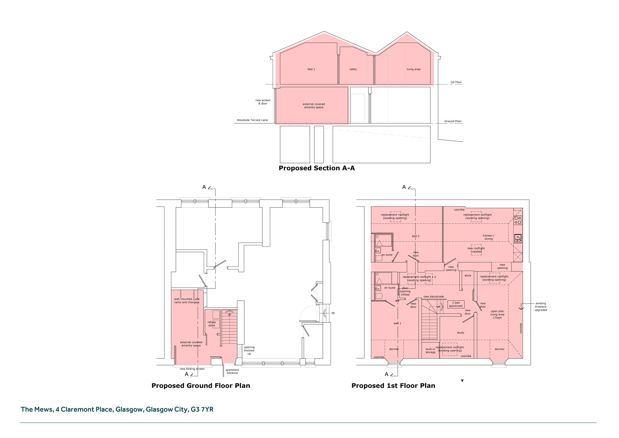
The building itself is an elegant blonde sandstone mews house which is held beneath a pitched & slated M-shaped roof. The primary entrance into the building is on Claremont Place with a further door at the rear on Woodside Terrace Lane. Internally the property extends to three levels including elevated ground floor, lower ground floor and first floor. The planning permission allows for the formation of two separate dwellings within the existing building, through careful and considerate conversion of the building. The attached floorplans provide an idea of the proposed and approved layouts and viewers are encouraged to visit the property in person to fully appreciate the fabulous potential that the building offers.

Proposed Ground & Lower Ground Conversion

  • Main door entrance.
  • Substantial double aspect open plan kitchen, dining and living room.
  • Hallway with stairway to lower level.
  • Guest WC.
  • Third bedroom on ground (entrance level) with en-suite shower room.
  • Two spacious lower bedrooms, both with en-suite shower rooms.
  • Principal bedroom of beautiful proportions with dressing room.
  • Home office/study area.
  • External covered amenity space for bicycle storage, refuse stores etc.

Proposed Upper Conversion

  • Main door entrance.
  • Ground level covered amenity space for refuse storage, bicycle storage and charging points.
  • Private stairway to main landing/hall with Velux.
  • Corner living room with dormer window and skylight.
  • Spacious dining kitchen with skylights.
  • Two bedrooms, both with en-suite shower rooms.
  • Home office/study with Velux window and large cupboard.

Rettie & Co West End LLP can provide prospective purchasers with a guide to values for each unit upon completion.

More Details

Situation: Contact branch
Council Tax Band: Contact branch
Tenure: Freehold

Contact Us

Jennifer Ward

Jennifer Ward

Senior Sales Negotiator
Craig Roberts

Craig Roberts

Mortgage & Protection Advisor
Mortgage Calculator
Monthly payments
Please set an interest rate.

Your home may be repossessed if you do not keep up repayments on your mortgage.

There may be a fee for mortgage advice. The actual amount you pay will depend upon your circumstances. The fee is up to 1% but a typical fee is 0.3% of the amount borrowed.

Tax Calculator
LBTT calculator for properties purchased in Scotland. Stamp Duty calculator for properties purchased in England.
Land & buildings transaction tax (LBTT)
= £0
New build house with stone and timber cladding

Looking To Sell Or Let?

Rettie is one of the most trusted and well-respected names in property. Our unrivalled market knowledge helps people from around the world buy, sell, let and develop property in Scotland and the North East of England - from city apartments and rural cottages to large townhouses and prime country homes, farms and estates. We deal with some of the most prestigious properties on the market, but provide the same exceptional standards of service and value for money to all our clients.