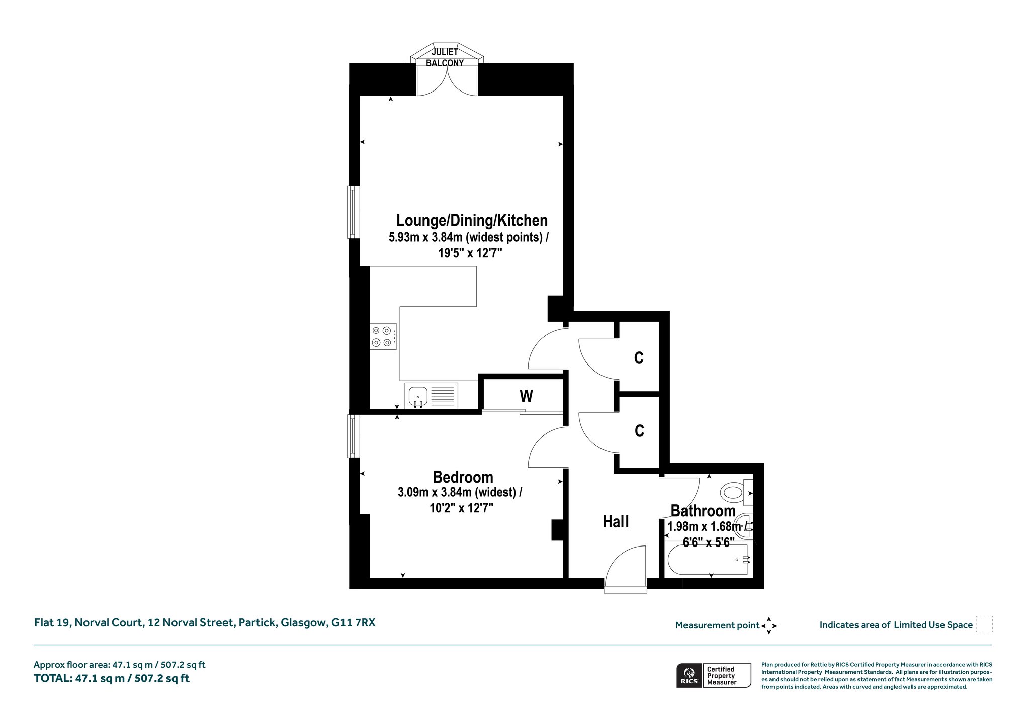
Flat 19, Norval Court, 12 Norval Street, Partick, Glasgow, G11 7RX
Property Description
Positioned within the popular Norval Court development in the heart of Partick, this immaculately refurbished one-bedroom flat offers stylish living with a bright double aspect lounge, and a peaceful west facing Juliet balcony. The apartment has been newly refurbished throughout, blending modern design with practicality and a well-proportioned layout.
The living space is open plan to a new contemporary kitchen and enjoys plenty of light throughout the day due to the double aspect outlook to the South and West. The kitchen is nicely finished with white gloss cabinetry, grey countertops, metallic splashback, and a breakfast bar ideal for casual dining or entertaining. French doors also give access to a charming private Juliet balcony that brightens up the space.
The bedroom is spacious and has been freshly decorated with new carpets while enjoying a bright south-facing outlook and ample built in wardrobe space. The three piece bathroom has been recently upgraded to include a modern tiled finish and an electric shower over the bath. The property further benefits from new electric radiators and immersion water heating system, new flooring throughout and double glazing. The building also provides lift access to all levels and features Norval Court’s signature internal atrium, bringing light and character to a pleasant communal area.
This is fantastic opportunity for first-time buyers, investors or those looking to downsize to a property that is ready to live in. The building is set in a quiet yet convenient West End location, perfectly placed for the abundance of local shops, cafes, bars and restaurants on offer. Norval Street is quietly tucked away in the heart of Glasgow’s West End and is superbly positioned for access to Dumbarton Road, the Clydeside Expressway, the Clyde Tunnel, Partick Train Station and The University of Glasgow.
Accommodation
- Security entry system.
- Well presented communal Atrium and stairway.
- Elevator to each level.
- Reception hall with two storage cupboards off.
- Lounge/dining room with window to the side and glazed door to Juliet balcony.
- Modern, fitted open plan kitchen with storage units, worktops, oven, hob, extractor, freestanding washing machine and freestanding fridge.
- Double bedroom with window to the rear and fitted wardrobe.
- Modern fitted bathroom with three piece white suite and electric shower over the bath.
- Electric heating.
- Double glazing.
- On Street Parking.
More Details
EPC: C
Council Tax: C
Tenure: Freehold
Your home may be repossessed if you do not keep up repayments on your mortgage. There may be a fee for mortgage advice. The actual amount you pay will depend upon your circumstances.
Similar Properties
Looking To Sell Or Let?
Rettie is one of the most trusted and well-respected names in property. Our unrivalled market knowledge helps people from around the world buy, sell, let and develop property in Scotland and the North East of England - from city apartments and rural cottages to large townhouses and prime country homes, farms and estates. We deal with some of the most prestigious properties on the market, but provide the same exceptional standards of service and value for money to all our clients.
