Property Description
Located in the highly popular and incredibly convenient Partick area of Glasgow’s West End, this charming two-bedroom flat occupies the prominent third floor within a traditional red sandstone tenement building on the corner of Purdon Street and Dumbarton Road.
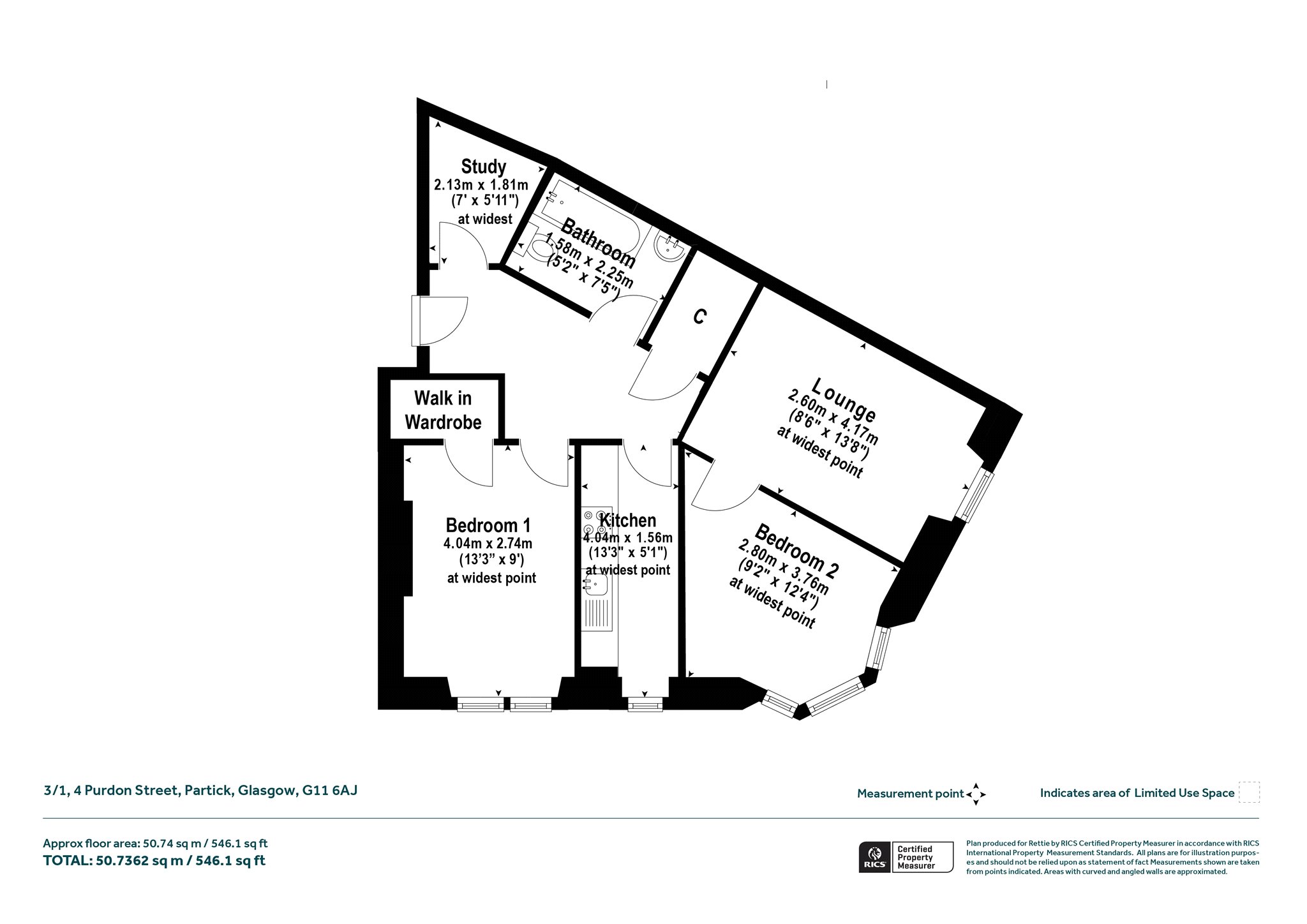
The internal accommodation is immaculately presented throughout, has a comfortable feel and benefits from excellent natural light. Notable highlights include a delighted main lounge/dining room, an impressive galley style kitchen, two spacious double bedrooms and a contemporary three-piece bathroom. In addition, there is an invaluable home office/study off the reception hall, and we would also highlight the generous storage cupboard off the reception hall together with a large walk-in wardrobe off bedroom one.
Purdon Street is ideally positioned just moments from Dumbarton Road, offering excellent access to a wide range of local amenities including independent cafés, restaurants, supermarkets, and specialist food shops. Partick Station — providing train, subway, and bus services — is only a short walk away, making commuting across Glasgow simple and efficient. Nearby, you’ll find the vibrant Finnieston district, the University of Glasgow, and the picturesque Riverside Museum and Kelvingrove Park, offering ample opportunities for leisure and cultural activities. The area also benefits from excellent schooling and healthcare services.
This property is perfect for first-time buyers, professionals, or investors seeking a strong rental location in one of Glasgow’s most dynamic and well-connected neighbourhoods.
Accommodation:
- Security entry system
- Communal entrance close
- Broad and welcoming reception hall with useful storage cupboard off
- Useful study/home office off the reception hall
- Charming main lounge/dining room with window to the side
- Impressive galley kitchen complete with a range of base and wall units, appliances and window to the front
- Bedroom one with two section window to the front and large walk in cupboard
- Bedroom two with three section bay window
- Gas central heating
- Double glazing
- Availability of on street residents’ parking permit
More Details
EPC: C
Council Tax: B
Tenure: Freehold
Your home may be repossessed if you do not keep up repayments on your mortgage. There may be a fee for mortgage advice. The actual amount you pay will depend upon your circumstances.
Similar Properties
Looking To Sell Or Let?
Rettie is one of the most trusted and well-respected names in property. Our unrivalled market knowledge helps people from around the world buy, sell, let and develop property in Scotland and the North East of England - from city apartments and rural cottages to large townhouses and prime country homes, farms and estates. We deal with some of the most prestigious properties on the market, but provide the same exceptional standards of service and value for money to all our clients.
