2/2, 68 Kelvinhaugh Street, Yorkhill, Glasgow, G3 8PW
Property Description
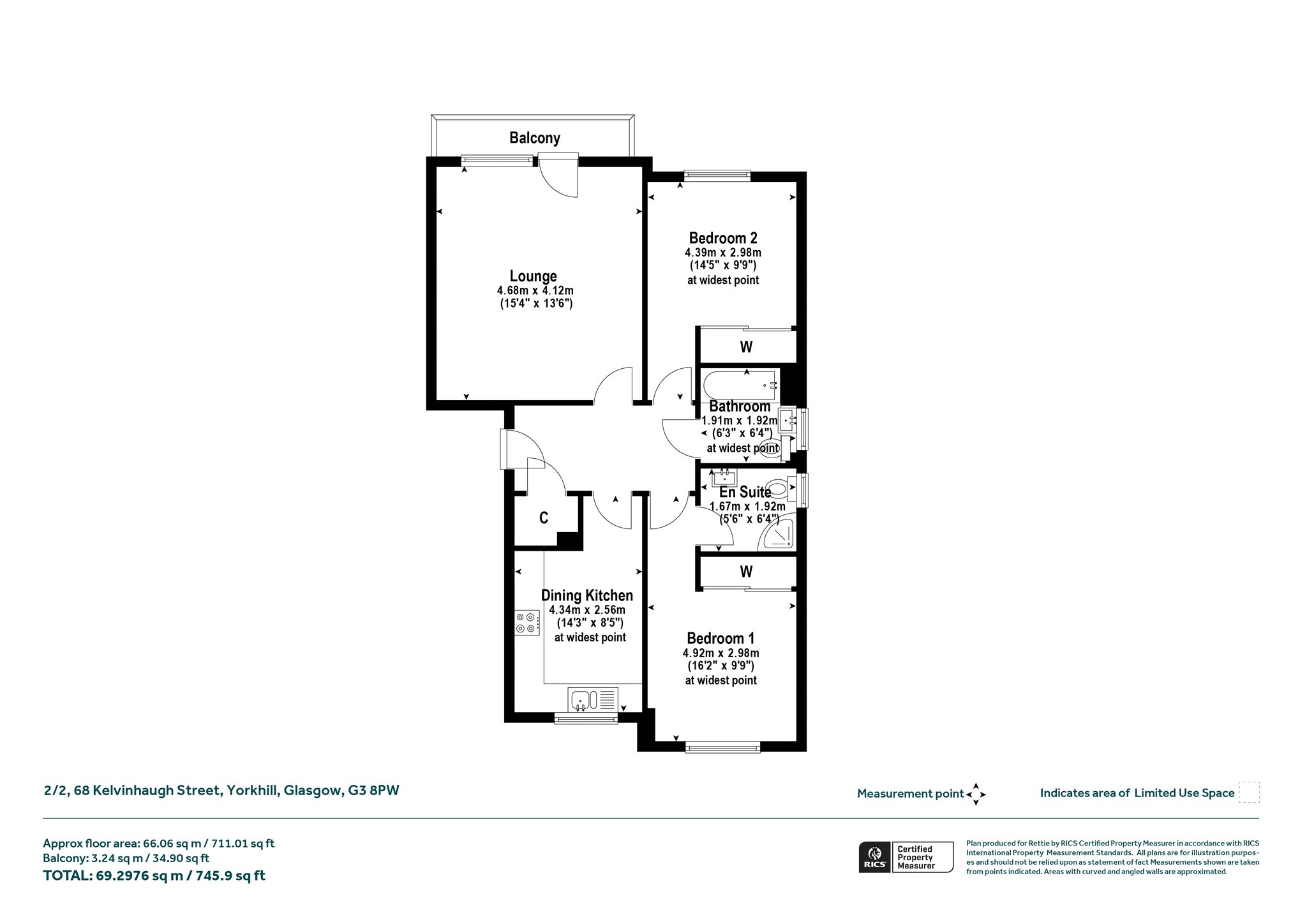
Situated in the vibrant and sought-after neighbourhood of Yorkhill, this well-presented modern two-bedroom apartment occupies a prominent second floor position within an attractive development.
The internal accommodation is presented in walk in condition throughout, is generously proportioned and benefits from excellent natural light. Notable highlights include a superb living/dining room, a separate modern kitchen, two spacious double bedrooms, an impressive en suite shower room and a stylish three-piece bathroom. There is ample storage including fitted wardrobes in both bedrooms and useful storage off the reception hall. We would also highlight the rare feature of a private balcony accessed from the living/dining room together with the added bonus of off-street parking within the residents’ car park.
Kelvinhaugh Street is ideally positioned between the cultural and commercial hubs of the West End and Finnieston, placing residents just minutes from some of Glasgow’s best cafes, bars, and restaurants. Whether you're after a morning coffee on Argyle Street or fine dining along Finnieston’s “foodie strip,” everything is on your doorstep. For those who love green space and culture, the nearby Kelvingrove Park and Kelvingrove Art Gallery and Museum provide a tranquil retreat and an inspiring backdrop for weekend strolls. The University of Glasgow is also within walking distance, making this location ideal for academics or professionals. Excellent public transport links, including frequent buses, train links (Exhibition Centre) and nearby subway stations, connect you easily to the city centre and beyond. The property also offers convenient access to the M8 motorway and is well-placed for cycle and walking routes along the River Clyde.
This is a perfect opportunity for first-time buyers, young professionals, or investors looking for a turnkey property in a prime West End location.
Accommodation:
- Security entry system
- Communal entrance close
- Broad and welcoming reception hall with useful storage cupboard off
- Outstanding main living/dining room with window to the front and door to private balcony
- Impressive kitchen complete with a range of base and wall units, integrated appliances and window to the rear
- Principal bedroom with two section window to the front and fitted wardrobes
- Stylish en suite shower room comprising three-piece suite
- Bedroom two with two section window to the rear and fitted wardrobes
- Contemporary three-piece bathroom comprising bath, over bath shower, toilet and wash hand basin. Window to the side
- Gas central heating
- Double glazing
- Private balcony
- Off street parking
- Well maintained communal garden grounds
More Details
EPC: C
Council Tax: D
Tenure: Freehold
Your home may be repossessed if you do not keep up repayments on your mortgage. There may be a fee for mortgage advice. The actual amount you pay will depend upon your circumstances.
Similar Properties
Looking To Sell Or Let?
Rettie is one of the most trusted and well-respected names in property. Our unrivalled market knowledge helps people from around the world buy, sell, let and develop property in Scotland and the North East of England - from city apartments and rural cottages to large townhouses and prime country homes, farms and estates. We deal with some of the most prestigious properties on the market, but provide the same exceptional standards of service and value for money to all our clients.
