2/3, 52 Thornwood Avenue, Thornwood, Glasgow, G11 7PG
Property Description
An immaculately presented one bedroom apartment occupying a prominent second floor position within a traditional red sandstone tenement building. Located just off Crow Road in the highly popular and incredibly convenient Thornwood area, 52 Thornwood Avenue is exceptionally well placed to take advantage of an enviable selection of local amenities on Crow Road including Crow Road Retail Park and further amenities on Dumbarton Road together with excellent transport links and easy access to The University of Glasgow.
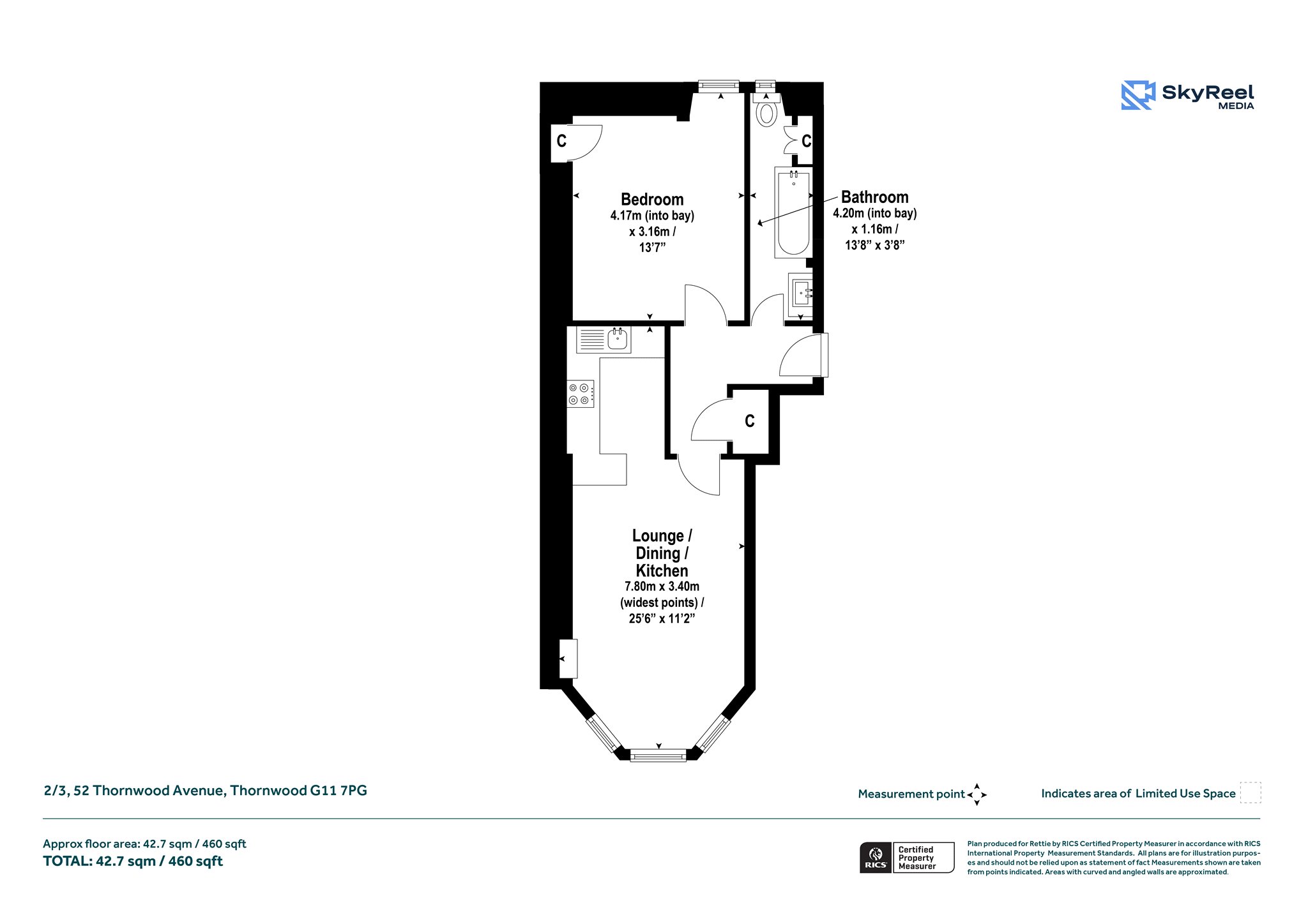
The internal accommodation benefits from excellent natural light, is generously proportioned and is presented in walk in condition throughout with notable highlights including a superb bay windowed lounge/dining room, a modern open plan kitchen, a generous double bedroom and a stylish three-piece bathroom.
Accommodation:
- Security entry system
- Communal entrance close
- Reception hall with useful storage cupboard off
- Superb lounge/dining room with three section bay window, shelved press and ceiling rose
- Open plan kitchen complete with a range of base and wall units, appliances and breakfasting bar
- Generous double bedroom with window to the rear
- Modern three-piece bathroom comprising bath, over bath shower, toilet and wash hand basin
- Gas central heating
- Double glazing
- Shared garden to the rear of the building
More Details
EPC: C
Council Tax: B
Tenure: Freehold
Your home may be repossessed if you do not keep up repayments on your mortgage. There may be a fee for mortgage advice. The actual amount you pay will depend upon your circumstances.
Similar Properties
Looking To Sell Or Let?
Rettie is one of the most trusted and well-respected names in property. Our unrivalled market knowledge helps people from around the world buy, sell, let and develop property in Scotland and the North East of England - from city apartments and rural cottages to large townhouses and prime country homes, farms and estates. We deal with some of the most prestigious properties on the market, but provide the same exceptional standards of service and value for money to all our clients.
