Offers Over £195,000
Ground Floor Apartment
2 Bedrooms
1 Bathroom
1 Reception Room
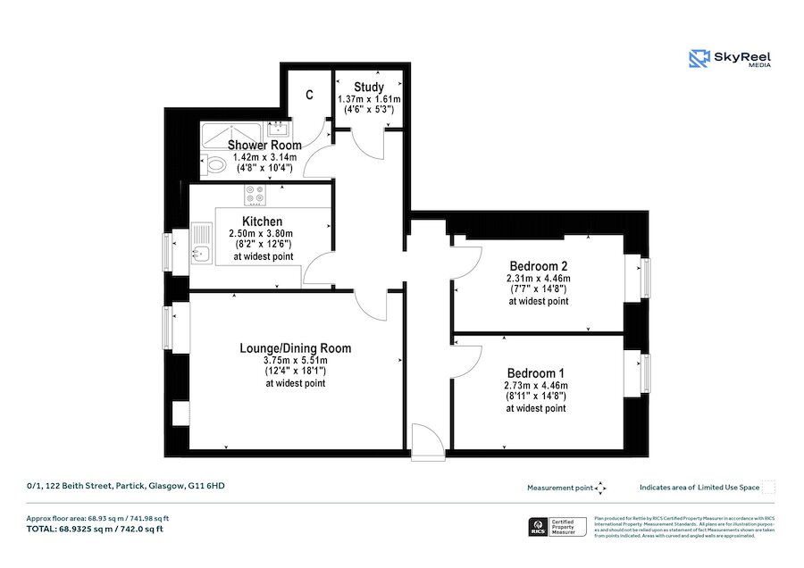
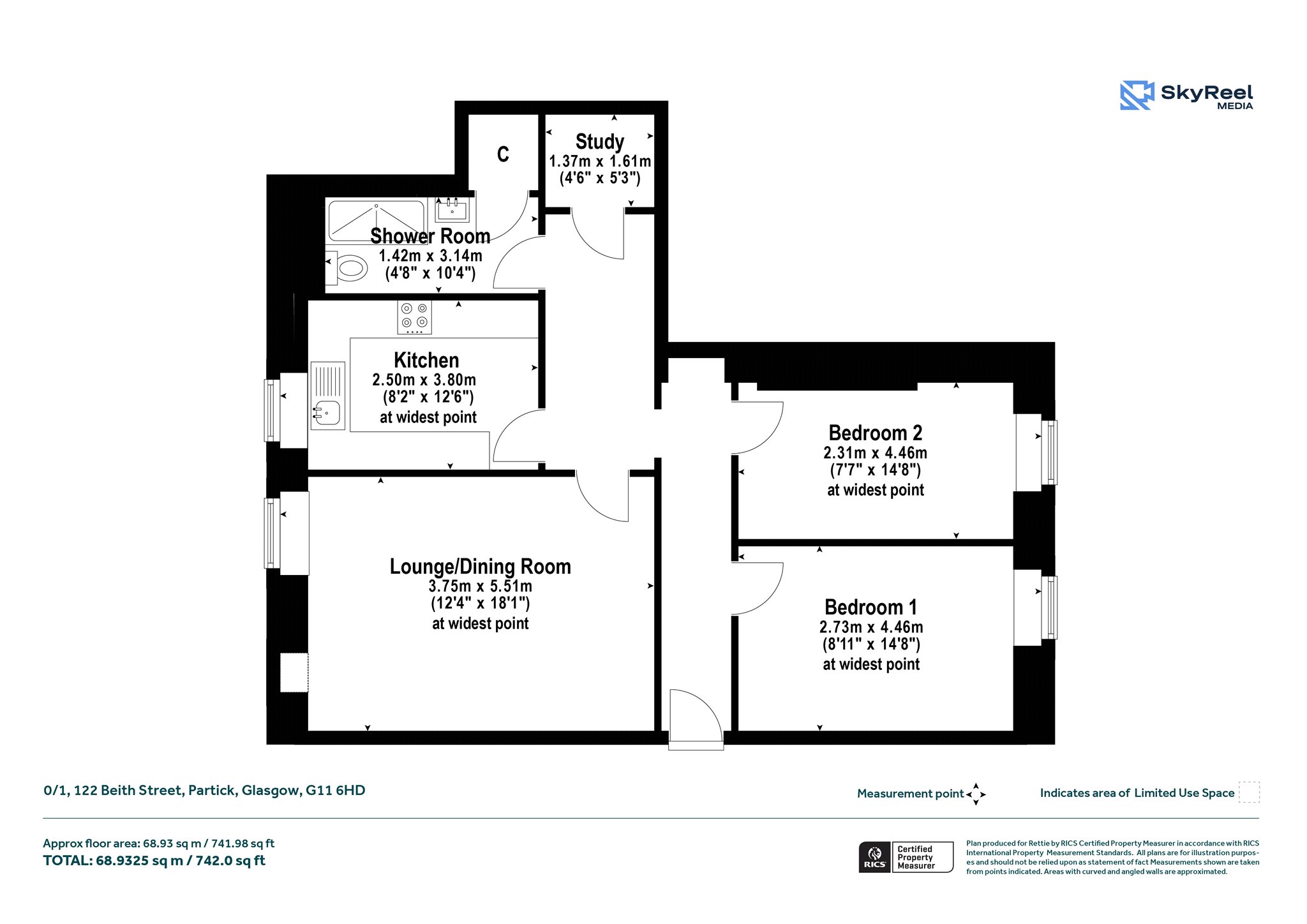
742 sq.ft
Communal Garden
On Street/Permit
Property Description
A particularly stylish two bedroom ground floor apartment within the landmark Partick Fire Station, designed by James Miller in an Edwardian Queen Anne Revival style and constructed around 1906, enjoying a tucked away position within this distinctive West End conversion.
This impressive home marries original period proportions with contemporary finishes, including soaring ceiling height and towering windows, all combining to create a warm and distinctive living environment. The internal aspects are presented in walk in condition throughout and enjoy excellent natural light, with notable features including a superb main lounge, a stunning dining kitchen, two spacious double bedrooms, a dedicated study space, and a stylish shower room with utility provision.
Occupying a quiet yet exceptionally convenient West End position, this appealing property is located within the ever-popular Partick district and is perfectly placed for an excellent selection of cafés, restaurants and local shops. Superb transport links are close at hand, including Partick Railway Station and Partick Subway Station, together with swift access to the Clydeside Expressway. Further amenities can be found nearby on Byres Road, while The University of Glasgow and Kelvingrove Park are also within easy reach.
Accommodation
- Security entry system and communal hallway.
- Welcoming reception hall.
- Superb main lounge with wooden flooring complementing a timber mantle, ample space for dining and large window to the rear.
- Impressive fitted kitchen complete with an array of base and wall units, integrated appliances and window to the rear.
- Principal (main) bedroom is of double proportions, is freshly decorated with dual tone colours and a large window to the front.
- Bedroom two with single window to the front, currently utilised as an office and dressing room, easily repurposed to a good sized dedicated double bedroom.
- Stunning contemporary three piece shower room with utiltiy/storage off.
- Large private storage cupboard located in the close.
- Gas central heating.
- Double glazing.
- Well maintained shared garden to the rear of the building.
- Availability of on street resident’s parking.
More Details
EPC: C
Council Tax: D
Tenure: Freehold
Your home may be repossessed if you do not keep up repayments on your mortgage. There may be a fee for mortgage advice. The actual amount you pay will depend upon your circumstances.
Similar Properties
Looking To Sell Or Let?
Rettie is one of the most trusted and well-respected names in property. Our unrivalled market knowledge helps people from around the world buy, sell, let and develop property in Scotland and the North East of England - from city apartments and rural cottages to large townhouses and prime country homes, farms and estates. We deal with some of the most prestigious properties on the market, but provide the same exceptional standards of service and value for money to all our clients.
