Property Description
A naturally bright and appealing one bedroom apartment occupying a preferred first floor position within a traditional red sandstone tenement building. Located just off Crow Road in the highly popular and incredibly convenient Thornwood area, 62 Thornwood Avenue is exceptionally well placed to take advantage of an enviable selection of local amenities on Crow Road including Crow Road Retail Park and further amenities on Dumbarton Road together with excellent transport links and easy access to The University of Glasgow.
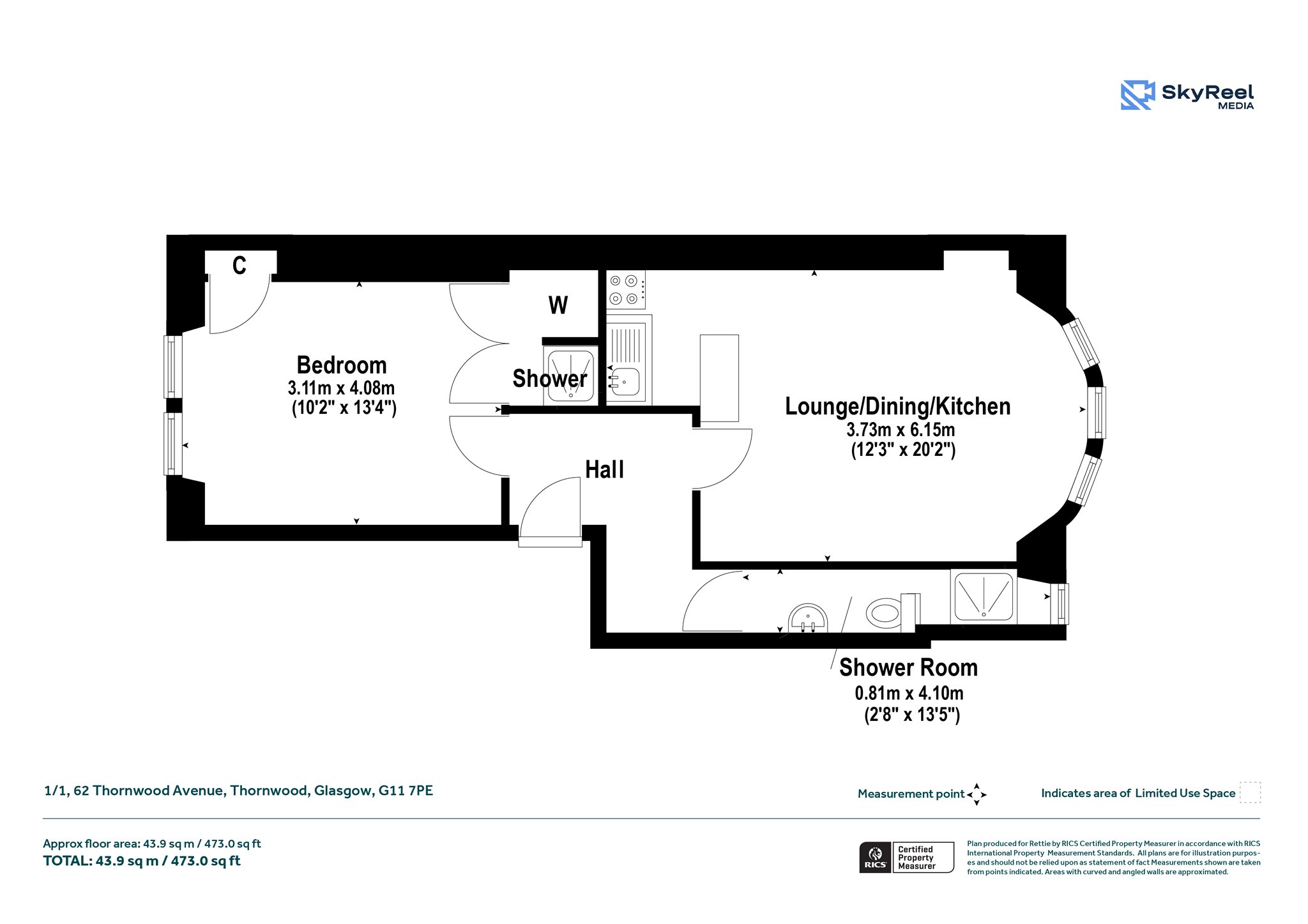
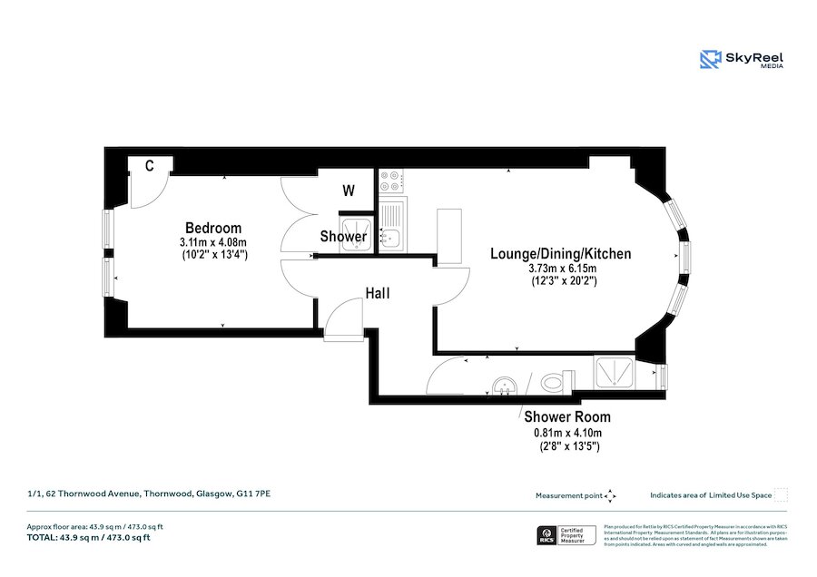
The internal accommodation benefits from excellent natural light, is generously proportioned and includes a spacious bay windowed lounge/dining room, an open plan kitchen, a generous double bedroom with generous storage/shower enclosure and a three piece shower room off the reception hall.
Accommodation:
- Security entry system
- Communal entrance close
- Reception hall
- Bright and spacious lounge/dining room with three section bay window
- Open plan kitchen
- Generous double bedroom with two section window to the rear
- Three-piece shower room. Window to the front.
- Gas central heating
- Double glazing
- Shared garden to the rear of the building
More Details
Situation: Contact branch
Council Tax Band: B
Tenure: Freehold
Your home may be repossessed if you do not keep up repayments on your mortgage.
There may be a fee for mortgage advice. The actual amount you pay will depend upon your circumstances. The fee is up to 1% but a typical fee is 0.3% of the amount borrowed.
Similar Properties
Looking To Sell Or Let?
Rettie is one of the most trusted and well-respected names in property. Our unrivalled market knowledge helps people from around the world buy, sell, let and develop property in Scotland and the North East of England - from city apartments and rural cottages to large townhouses and prime country homes, farms and estates. We deal with some of the most prestigious properties on the market, but provide the same exceptional standards of service and value for money to all our clients.
