4/4, 187 Dorchester Avenue, Kelvindale, Glasgow, G12 0DN
Property Description
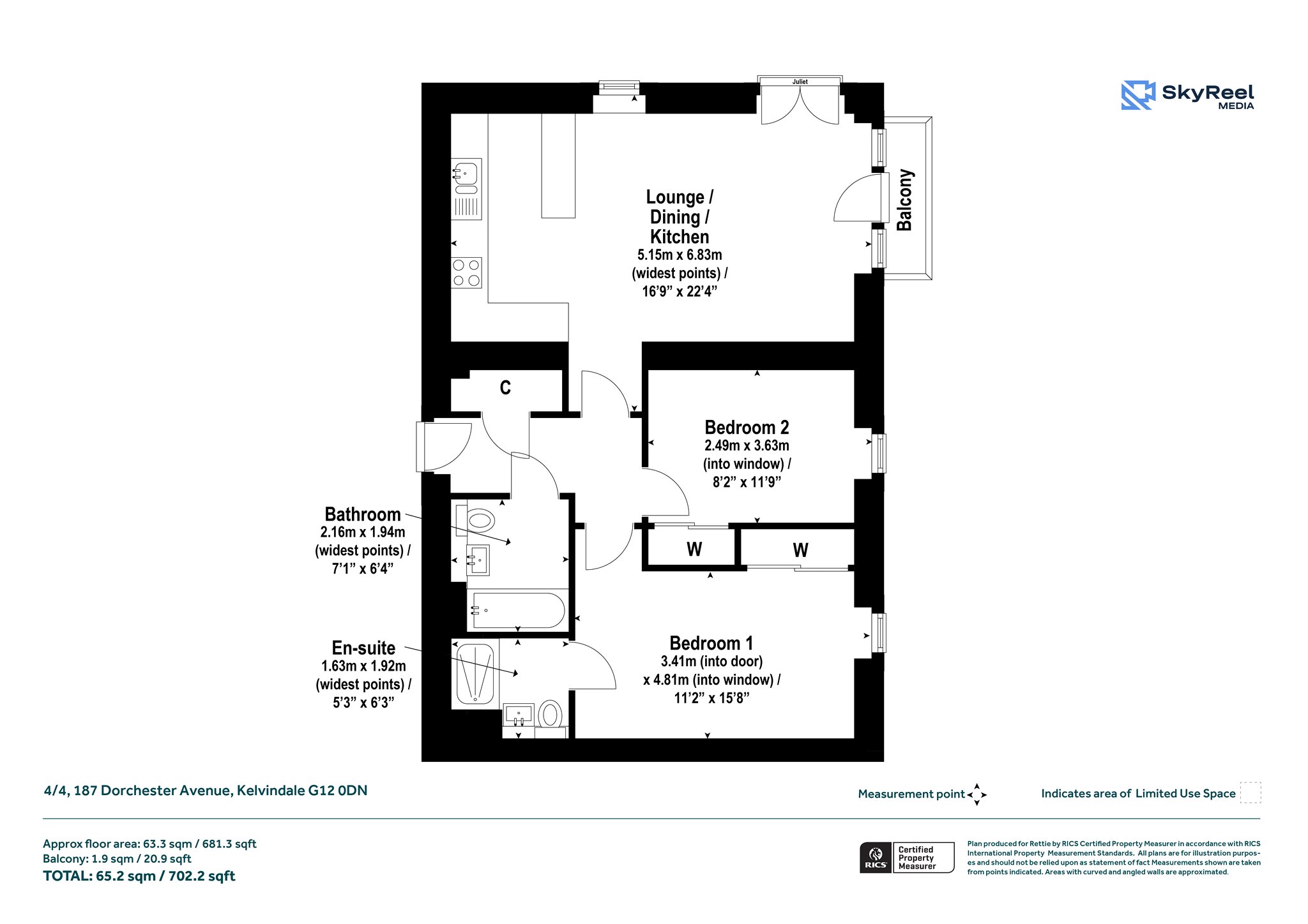
An attractive fourth floor, two-bedroom apartment forming part of a desirable and exclusive modern development built by Bellway Homes and completed in 2021. This immediately impressive fourth floor flat occupies a prominent corner position and benefits from excellent natural light throughout. The internal accommodation is immaculately presented and has a comfortable fell with notable highlights including a fabulous main lounge/dining room and an impressive open plan kitchen with breakfasting bar and integrated appliances. There are two spacious bedrooms, an en suite shower room and a stylish three-piece bathroom. Additional features include an east facing balcony accessed from the lounge/dining room, ample storage off both bedrooms and the reception hall, lift access to each level and we would also highlight the notable advantage of an allocated parking space within the off-street residents’ car park.
187 Dorchester Avenue occupies a quiet yet convenient West End location and is exceptionally well placed to take advantage of a wide selection of local amenities on Cleveden Road along with excellent transport links at Anniesland Cross and Hyndland Railway Station. In addition, there is a fantastic selection of shops, bars and restaurants nearby on Byres Road, Great Western Road and Hyndland Road together with easy access to The University of Glasgow and The Botanic Gardens
Accommodation:
- Security entry system
- Immaculately presented communal entrance hall with lift and stair access to each level
- Welcoming reception hall with useful storage cupboard off
- Superb lounge/dining room with door to private balcony, separate double door to Juliet style balcony and two windows to the side
- Open plan kitchen complete with a range of base and wall units, integrated appliances, breakfasting bar and picture window to the side
- Bedroom one with picture window to the rear and fitted wardrobes
- En suite shower room comprising three-piece suite
- Bedroom two with picture window to the rear and fitted wardrobes
- Stylish three-piece bathroom comprising bath, over bath shower, toilet and wash hand basin
- Gas central heating
- Double glazing
- Allocated parking space within the residents’ car park
- Communal secure bike store
- Well-tended communal garden grounds and children’s play area
More Details
EPC: B
Council Tax: E
Tenure: Freehold
Your home may be repossessed if you do not keep up repayments on your mortgage.
There may be a fee for mortgage advice. The actual amount you pay will depend upon your circumstances. The fee is up to 1% but a typical fee is 0.3% of the amount borrowed.
Similar Properties
Looking To Sell Or Let?
Rettie is one of the most trusted and well-respected names in property. Our unrivalled market knowledge helps people from around the world buy, sell, let and develop property in Scotland and the North East of England - from city apartments and rural cottages to large townhouses and prime country homes, farms and estates. We deal with some of the most prestigious properties on the market, but provide the same exceptional standards of service and value for money to all our clients.
