Property Description
Occupying a prominent third-floor position within an elegant red sandstone tenement, this absolutely stunning one-bedroom apartment offers a perfect blend of period charm and contemporary style in one of Glasgow’s most sought-after residential districts.
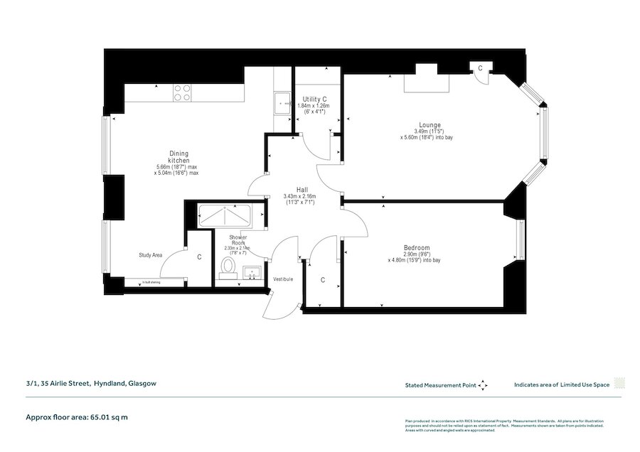
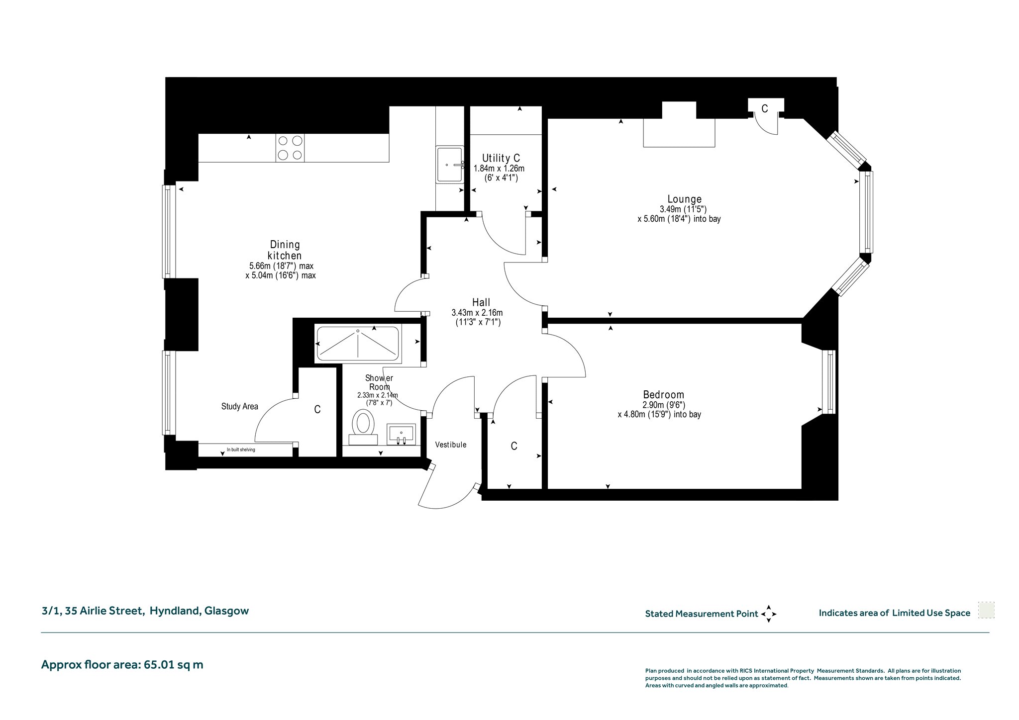
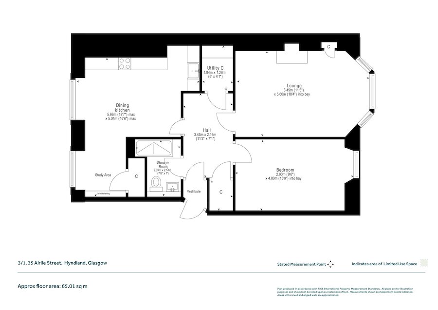
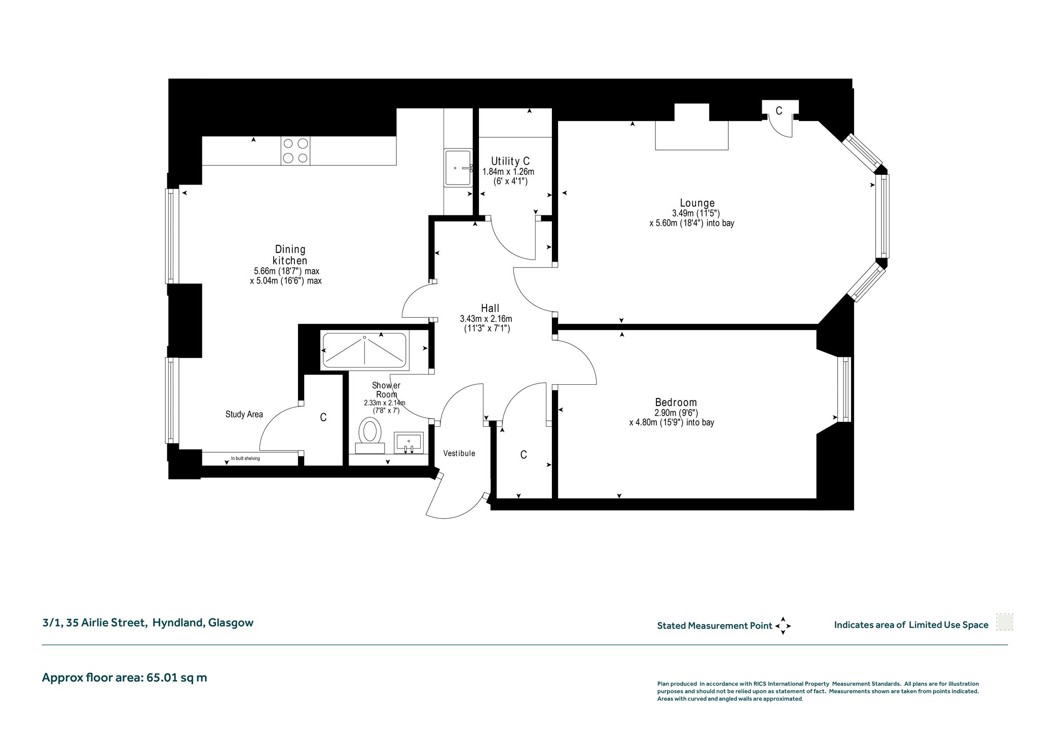
The accommodation is naturally bright, comfortably proportioned and beautifully presented throughout with notable highlights includes a fabulous bay-windowed lounge and an immediately impressive dining kitchen with an adaptable study area. The kitchen also has the unique feature of four windows to the rear which flood the room with light. In addition, there is a generous double bedroom, a contemporary three-piece bathroom and an invaluable utility cupboard off the reception hall.
Located in the sought-after Hyndland area, 35 Airlie Street enjoys a prime position close to an enviable selection of amenities. A superb selection of cafés, bars, and restaurants can be found nearby on Hyndland Road, Byres Road, and Dumbarton Road, alongside independent shops, supermarkets, and boutiques. Excellent public transport links are available via Hyndland and Partick train stations and numerous bus routes, while the Clyde Tunnel and M8 motorway network are easily accessible for those commuting by car. The property is also well placed for the University of Glasgow, Botanic Gardens, and Kelvingrove Park, offering green open spaces and cultural attractions right on the doorstep.
Accommodation:
- Security entry system
- Communal entrance close
- Storm door entrance vestibule
- Welcoming reception hall with useful storage cupboard off
- Invaluable utility cupboard off the reception hall
- Superb lounge with three section bay window
- Stunning dining kitchen complete with a range of base units, shelving, integrated appliances, a versatile study area and four windows to the rear
- Generous double bedroom with window to the front
- Stylish three-piece bathroom comprising bath, over bath shower, toilet and wash hand basin
- Gas central heating
- Double glazing
- Shared garden to the rear of the building
- Availability of on street residents’ parking permit
Sale Related too a Member of staff who is a director of the company selling -
In accordance with Section 21 of the Estate Agent Act 1979, we declare that there is a personal interest in the sale of this property/development. The property is being sold by a company where 1 of the directors is related to a member of staff within the Rettie Group.
More Details
Situation: Communal Garden
Council Tax Band: D
Tenure: Freehold
Your home may be repossessed if you do not keep up repayments on your mortgage. There may be a fee for mortgage advice. The actual amount you pay will depend upon your circumstances.
Similar Properties
Looking To Sell Or Let?
Rettie is one of the most trusted and well-respected names in property. Our unrivalled market knowledge helps people from around the world buy, sell, let and develop property in Scotland and the North East of England - from city apartments and rural cottages to large townhouses and prime country homes, farms and estates. We deal with some of the most prestigious properties on the market, but provide the same exceptional standards of service and value for money to all our clients.
