Flat 1/1, 49 Crow Road, Broomhill, Glasgow, G11 7SH
Property Description
An extremely rare opportunity to acquire a beautifully appointed two-bedroom first floor apartment, distinguished by the remarkable advantage of not one, but two substantial private terraces and a private parking space- an exceptional and highly unusual feature in such a central West End location, within walking distance of Byres Road & Glasgow University.
Positioned on Crow Road, in the heart of the West End, the property enjoys a setting that perfectly balances lifestyle and convenience. The West End is celebrated for its architectural character, thriving café culture, and proximity to the University of Glasgow, and this address places you right at the centre of it all. From artisan coffee shops and acclaimed restaurants to independent boutiques and everyday amenities, everything is quite literally on the doorstep.
The location is as practical as it is lively. West End Retail Park is just across the road, providing a range of supermarkets and larger stores, while Partick Railway Station, Underground and Bus Interchange are all within easy reach, offering excellent public transport links throughout Glasgow and beyond. For those commuting by car, swift access to the Clydeside Expressway, Clyde Tunnel and M8 motorway network ensures seamless travel across the city. Gartnavel General Hospital and the Queen Elizabeth University Hospital are both easily accessible, further enhancing the appeal for medical professionals seeking a stylish and well-connected base.
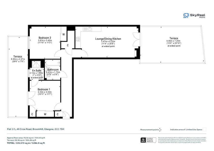
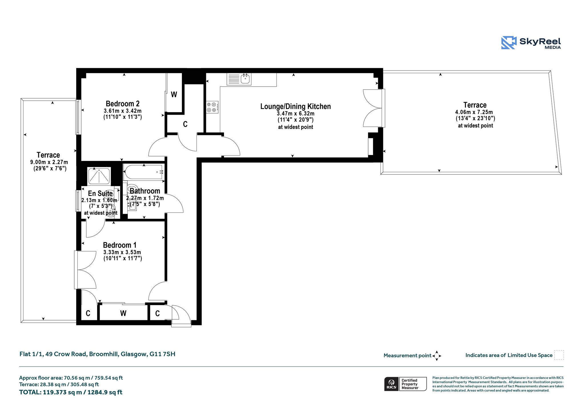
The apartment itself combines generous outdoor space with bright, contemporary interiors to create a home of real distinction. The accommodation is well-balanced and thoughtfully arranged, extending to a welcoming entrance hall which provides access to each of the principal apartments. The front-facing open plan kitchen, dining and living area is undoubtedly the heart of the home - a superb, sociable space with French doors opening directly onto a south-east facing private terrace. During the warmer months, the doors can be thrown open to seamlessly blend indoor and outdoor living, creating an ideal setting for entertaining or relaxing in the sun.
There are two comfortable and well-proportioned double bedrooms, including a principal bedroom with contemporary en-suite shower room and French doors that lead onto the rear terrace. A stylish main bathroom, complete with white suite and elegant tiling, completes the internal accommodation. The overall specification and presentation are of a high standard throughout, resulting in a home that feels both modern and welcoming.
The attached photographs and HD video provide an indication of the size, style and specification of the property. However, early in-person viewing is strongly encouraged in order to fully appreciate the superb presentation, bright and comfortable accommodation, and - most notably - the exceptional private outdoor spaces which set this apartment apart from the ordinary.
Attributes
. Preferred first-floor position within a modern and well-maintained development
. Exceptionally rare provision of two substantial private roof terraces
. South-east facing terrace accessed directly from the living space
. Bright open plan kitchen, dining and living area with French doors
. Two well-proportioned double bedrooms
. Principal bedroom with contemporary en-suite shower room
. Stylish main bathroom with white suite and elegant tiling
. Highly central West End location on Crow Road
. Within easy reach of Glasgow University, Byres Road and Partick
. Excellent public transport links including rail, underground and bus services
. Convenient access to Clydeside Expressway, Clyde Tunnel and M8 motorway network
. Close to Gartnavel General Hospital and Queen Elizabeth University Hospital'
More Details
Situation: Contact branch
Council Tax Band: E
Tenure: Freehold
Your home may be repossessed if you do not keep up repayments on your mortgage.
There may be a fee for mortgage advice. The actual amount you pay will depend upon your circumstances. The fee is up to 1% but a typical fee is 0.3% of the amount borrowed.
Similar Properties
Looking To Sell Or Let?
Rettie is one of the most trusted and well-respected names in property. Our unrivalled market knowledge helps people from around the world buy, sell, let and develop property in Scotland and the North East of England - from city apartments and rural cottages to large townhouses and prime country homes, farms and estates. We deal with some of the most prestigious properties on the market, but provide the same exceptional standards of service and value for money to all our clients.
