1/4, 353 Glasgow Harbour Terraces, Glasgow Harbour, Glasgow, G11 6DJ
Property Description
Occupying a prime position within the landmark Glasgow Harbour development, this immediately impressive first floor flat offers stylish, contemporary living in one of the city’s most sought-after waterfront locations. The accommodation has been comprehensively upgraded and is finished to an excellent standard throughout.
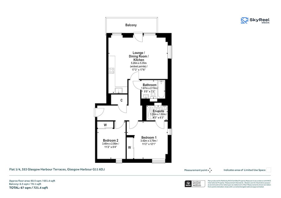
The accommodation is well balanced and thoughtfully arranged, featuring a superb corner lounge with dual aspects that creates a bright and welcoming living space. This flows seamlessly into an upgraded open-plan kitchen, ideal for both everyday living and entertaining. There are two well-proportioned double bedrooms, including a principal bedroom with a modern en suite shower room, while a contemporary three-piece bathroom completes the internal accommodation.
Further benefits include a private, south facing balcony, lift access to each level, and the significant advantage of an allocated parking space.
Glasgow Harbour is renowned for its attractive riverside setting and excellent connectivity. The property is ideally placed for access to a wide range of local amenities, including riverside walkways and cycle paths, as well as nearby cafés, bars and restaurants. The vibrant areas of Finnieston and the West End are easily accessible, offering an extensive selection of dining, leisure and cultural attractions. Excellent transport links are available nearby, with rail, bus and road connections providing easy access to Glasgow city centre and beyond, making this an outstanding home for modern urban living.
Accommodation:
- Security entry system
- Communal entrance hall with lift and stair access to each level
- Welcoming reception hall with useful storage cupboard
- Impressive main lounge/dining room with two picture windows to the rear, picture window to the side and door to private, south facing balcony
- Stylish modern kitchen complete with a range of base and wall units and integrated appliances
- Bedroom one with window to the front, window to the side and fitted wardrobes
- Contemporary en suite shower room comprising three-piece suite
- Bedroom two with window to the front and fitted wardrobes
- Three-piece bathroom comprising bath, over bath shower, toilet and wash hand basin
- Electric heating
- Double glazing
- Allocated parking space within the secure residents’ car park
- Lift access to each level including residents’ car park
More Details
Situation: Contact branch
Council Tax Band: C
Tenure: Contact Branch
Your home may be repossessed if you do not keep up repayments on your mortgage. There may be a fee for mortgage advice. The actual amount you pay will depend upon your circumstances.
Similar Properties
Looking To Sell Or Let?
Rettie is one of the most trusted and well-respected names in property. Our unrivalled market knowledge helps people from around the world buy, sell, let and develop property in Scotland and the North East of England - from city apartments and rural cottages to large townhouses and prime country homes, farms and estates. We deal with some of the most prestigious properties on the market, but provide the same exceptional standards of service and value for money to all our clients.
















































