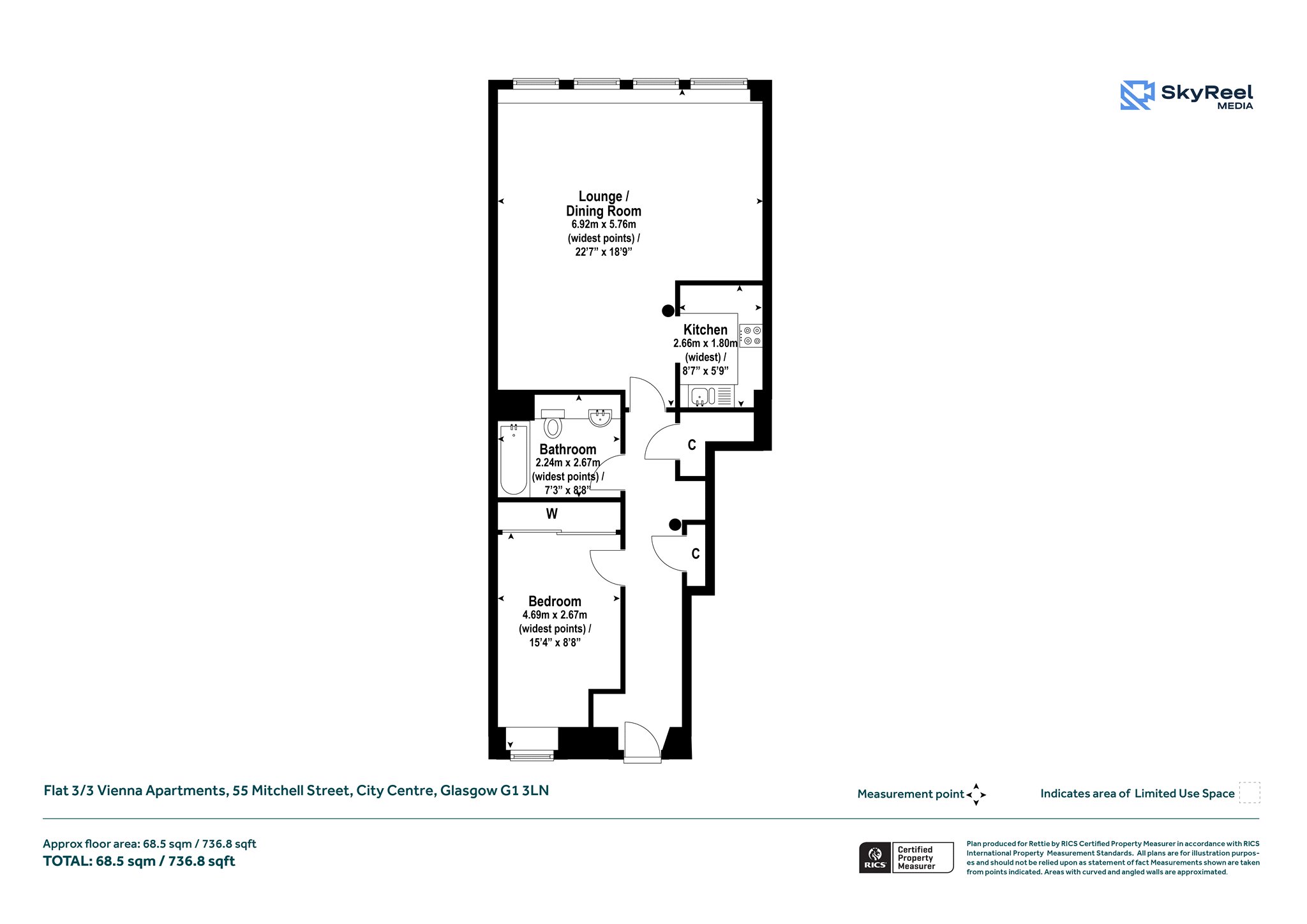
Flat 3/3 Vienna Apartments, 55 Mitchell Street, City Centre, Glasgow, G1 3LN
Fixed Price £175,000
Apartment
1 Bedroom
1 Bathroom
1 Reception Room
753 sq.ft
Communal Garden
Property Description
New Fixed Price £5,000 below Home Report Valuation.
Experience loft apartment living in the heart of Glasgow City Centre. A lovely and very spacious one bedroom property offering a Manhattan loft feel, extending to over 750 sq ft and featuring an open plan layout, a west-facing wall of 9ft sash-and-case windows, exposed brick detail and original warehouse pillars.
Situated within the Vienna Apartments, this former warehouse converted by Burrell Homes in 2009 is known for some of the city’s most generous floorplans. Notable highlights include a bright living area with so much space it is easy to zone off dining and a dedicated home-working space, off set, there is a modern kitchen with herringbone tiling, good storage with a laundry cupboard and an impressive 23ft hallway. The double bedroom overlooks a quiet central courtyard, offering a peaceful and welcome retreat from city life.
Secure entrance to communal hallway, with lift and stair access to all levels. The property comprises generous and welcoming reception hallway over 23ft with quality wood flooring and shelved alcoves; a spacious hall cupboard with hanging space, boiler and offering a warm space for laundry drying; generous open plan living/dining room with quality engineered wood flooring and four, 9ft high, double glazed sash and case windows offering natural light and views west; the kitchen is open plan however set back from the living and dining space and is complete with a range of base and wall mounted units, integrated Bosch appliances and has stylish herringbone tiled splash back and with quality engineered wood flooring; modern three-piece bathroom complete with tiled floor and wall coverings and over bath shower; double bedroom with large fitted wardrobe and a double glazed sash and case windows window to rear of the building; the property has double glazing, an electric heating system, a heated water tank and fresh décor throughout. There is a communal bike store in the basement.
Situation
Mitchell Street is located in the Heart of Glasgow City Centre running parallel to Buchanan Street, part of Glasgow’s Style Mile. It is an area of Glasgow which has benefitted from significant redevelopment in the last few decades with both commercial developments and exclusive residential buildings. This setting offers one of the most prominent social locations Glasgow has to offer with wealth of amenities including both general and specialist shopping, wine bars and many highly acclaimed restaurants and is also conveniently located for access to the Merchant City. The property is in close proximity to Strathclyde & Caledonian Universities, the Glasgow School of Art, the SEC and The Clyde Auditorium. The area benefits from frequent public transport with easy access to Central and Queen Street Train Stations, and St Enoch subway stations. Public transport and road links are exceptional. Parking permits are available on subscription with next door NCP or Jamaica Street’s Q-Park.
Travel Directions
On foot from our office on Bath Street continue East down Bath Street, turning 5th right onto West Nile Street. Proceed South eventually crossing over Gordon Street onto Mitchell Street. No. 55 can be found halfway down on the right-hand side. Buzzer entry is 33 CALL
More Details
Situation: Communal Garden
Council Tax Band: E
Tenure: Contact Branch
Your home may be repossessed if you do not keep up repayments on your mortgage.
There may be a fee for mortgage advice. The actual amount you pay will depend upon your circumstances. The fee is up to 1% but a typical fee is 0.3% of the amount borrowed.
Similar Properties
Looking To Sell Or Let?
Rettie is one of the most trusted and well-respected names in property. Our unrivalled market knowledge helps people from around the world buy, sell, let and develop property in Scotland and the North East of England - from city apartments and rural cottages to large townhouses and prime country homes, farms and estates. We deal with some of the most prestigious properties on the market, but provide the same exceptional standards of service and value for money to all our clients.
