Flat 0/1, 1 Elie Street, Dowanhill, Glasgow, G11 5HL
Property Description
Benefitting from an extremely central situation in the West End of Glasgow, just minutes’ walk from Byres Road and the University of Glasgow, this carefully maintained and well-appointed three-bedroom elevated ground floor apartment would be ideal for a young professional couple, students, or those seeking a high-quality West End home.
The property for sale is held within a factored corner building on Elie Street at the junction with Chancellor Street in Partick and is therefore perfectly placed for taking full advantage of everything the West End has to offer. From brilliant bars and restaurants to quirky coffee shops and welcoming cafés, the immediate vicinity is loaded with amenities that combine to create the vibrant local culture synonymous with the West End of Glasgow. As mentioned, the main campus of the University of Glasgow lies just a few hundred metres away, making the area particularly popular with students and academics. The local area is also well served by public transport links, with Kelvinhall Underground Station just around the corner, making this an excellent option for anyone who works or studies in the city centre but prefers the quieter residential feel and café culture of the West End.
Externally, the attractive corner building is presented in a combination of blonde facing brick and blonde sandstone block. Access is via a secure entrance door with intercom system, and the communal hall is maintained to an extremely high standard by the appointed factor. To the rear of the building there is a neatly maintained courtyard area with refuse stores.
Internally, the apartment is bright, modern and has been carefully looked after throughout. As shown in the accompanying photographs and HD video, the accommodation is decorated in bright neutral tones, complemented by a selection of fitted floor coverings. As such, this is a comfortable home that is ready to be moved into and enjoyed immediately, with the current owners open to selling the property with furnishings by separate negotiation.
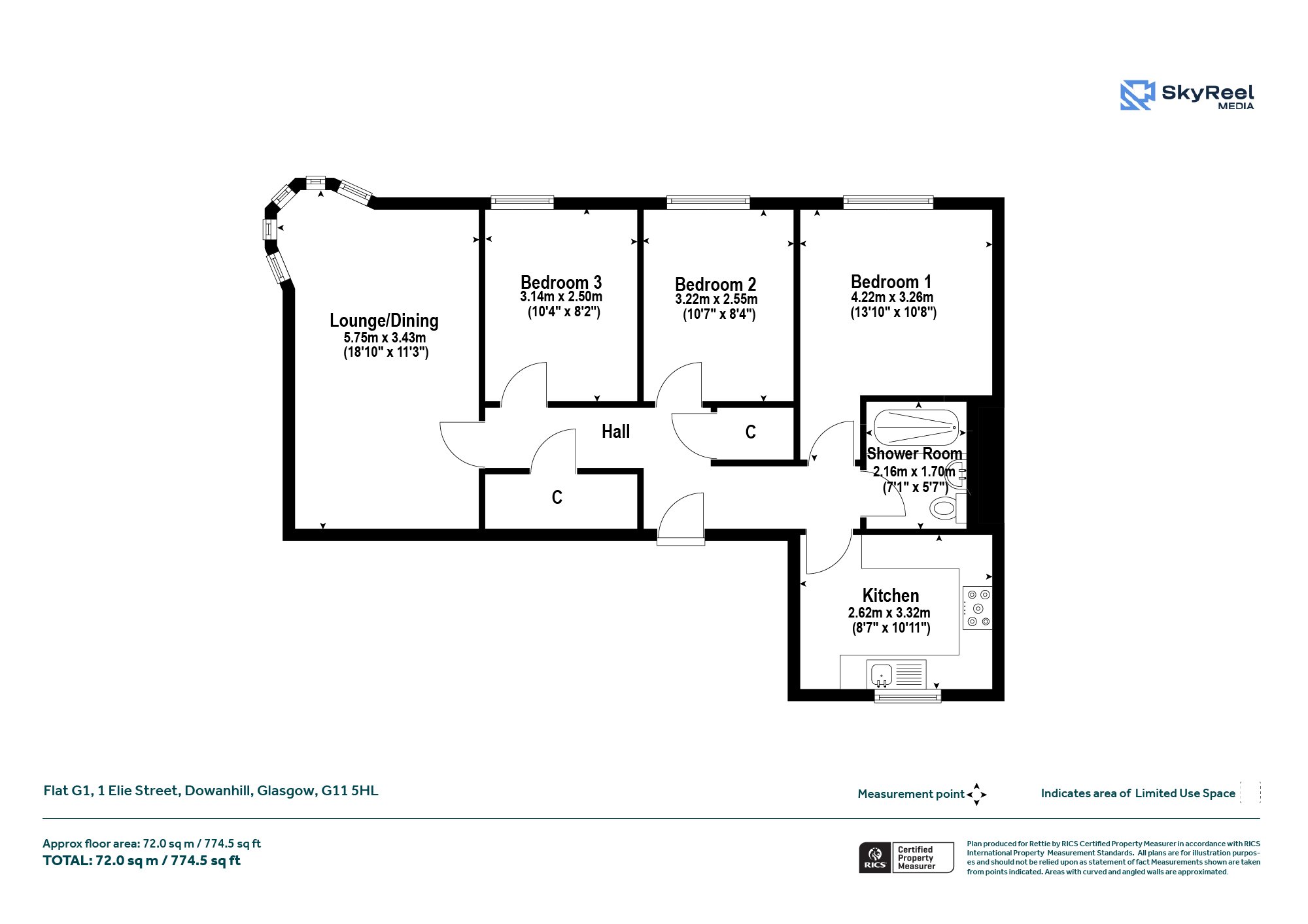
In brief, the accommodation comprises an entrance hall with two useful storage cupboards, a corner living room offering space for dining and featuring an elegant bow-shaped corner window, and three well-proportioned bedrooms, all capable of accommodating double beds, wardrobes and desk space. The kitchen is positioned to the rear of the property, overlooking the courtyard, and is fitted with a range of wall and base units along with integrated appliances. Completing the accommodation is a shower room with white three-piece suite.
Attributes
Extremely central West End location near Byres Road
Minutes’ walk from the University of Glasgow main campus
Three-bedroom elevated ground floor apartment
Ideal for young professionals, students or investors
Attractive factored corner tenement building
Secure entry system and immaculately maintained communal areas
Bright, modern interior in walk-in condition
Corner lounge with dining space and bow-shaped window
Three generous double bedrooms
Kitchen overlooking rear courtyard with fitted units and appliances
Shower room with white three-piece suite
Excellent public transport links including Kelvinhall Underground Station nearby
Furnishings available by separate negotiation
More Details
Situation: Communal Garden
Council Tax Band: C
Tenure: Freehold
Your home may be repossessed if you do not keep up repayments on your mortgage.
There may be a fee for mortgage advice. The actual amount you pay will depend upon your circumstances. The fee is up to 1% but a typical fee is 0.3% of the amount borrowed.
Similar Properties
Looking To Sell Or Let?
Rettie is one of the most trusted and well-respected names in property. Our unrivalled market knowledge helps people from around the world buy, sell, let and develop property in Scotland and the North East of England - from city apartments and rural cottages to large townhouses and prime country homes, farms and estates. We deal with some of the most prestigious properties on the market, but provide the same exceptional standards of service and value for money to all our clients.
