Offers Over £139,000
Ground Floor Apartment
1 Bedroom
1 Bathroom
1 Reception Room
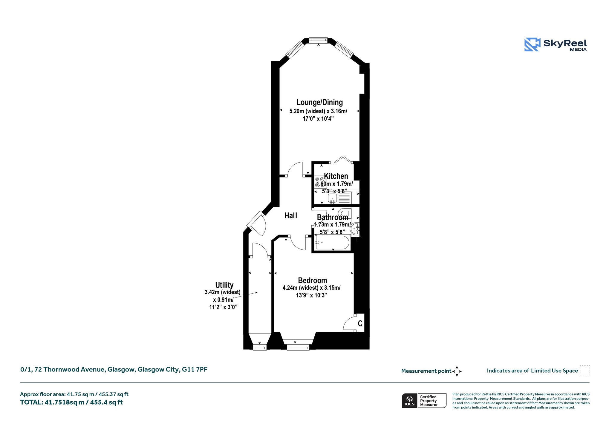
455 sq.ft
Private Garden
On Street/Permit
Property Description
An attractive one bedroom apartment occupying the ground floor position of a traditional red sandstone tenement, situated in the Thornwood neighbourhood and with the tremendous benefit of a private front garden space and utility room.
The property is presented in immaculate walk in condition, having been well maintained and recently refreshed, and thus offers comfortable accommodation in a quiet and exciting part of the West End. The internal layout is well balanced, comprised of a bay windowed lounge, a separate fitted kitchen, a double bedroom with integrated storage and a neatly appointed three-piece bathroom.
A particularly valuable feature is the dedicated utility room, a unique and highly useful addition for a property of this nature. This provides excellent additional storage and a laundry space to keep things tidy and compartmentalised. The property also benefits from a private front garden area, while a shared garden to the rear provides a pleasant outdoor retreat and washing line facilities.
Thornwood Avenue is superbly placed for a wide selection of shops, cafés and amenities in Thornwood and nearby Partick, with excellent public transport links close at hand including bus routes and railway connections. This will be an ideal home for first time buyers, professionals, or those seeking a smart, well connected West End base.
Accommodation
- Secure entry system.
- Communal entrance close.
- Reception hall.
- Lounge with broad bay window and ample space dining.
- Separate kitchen accessed via pocket door from lounge.
- Comfortable double bedroom with window to the rear.
- Three piece bathroom with electric shower over bath.
- Utility room with storage area, window to the rear and traditional clothes drying “pulley”.
- Gas central heating.
- Double glazing.
- Private front garden area.
- Shared residents’ garden to the rear of the building.
- On street parking.
More Details
Situation: Private Garden
Council Tax Band: E
Tenure: Freehold
Your home may be repossessed if you do not keep up repayments on your mortgage. There may be a fee for mortgage advice. The actual amount you pay will depend upon your circumstances.
Similar Properties
Looking To Sell Or Let?
Rettie is one of the most trusted and well-respected names in property. Our unrivalled market knowledge helps people from around the world buy, sell, let and develop property in Scotland and the North East of England - from city apartments and rural cottages to large townhouses and prime country homes, farms and estates. We deal with some of the most prestigious properties on the market, but provide the same exceptional standards of service and value for money to all our clients.
