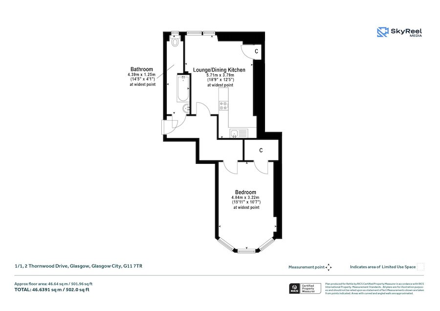
1/1, 2 Thornwood Drive, Thornwood, Glasgow, G11 7TR
Property Description
Contained within a traditional red sandstone tenement, this appealing one-bedroom apartment occupies a preferred first-floor position and is located in the popular Thornwood district. The property is presented in excellent condition throughout and offers well-proportioned accommodation filled with attractive natural light, creating a warm and welcoming home. The interior includes quietly positioned lounge/dining room, an open plan kitchen, a bright and spacious bay windowed bedroom with useful storage off while a well-appointed three-piece bathroom completes the accommodation.
Thornwood is a popular area within Glasgow’s West End, renowned for its strong community feel and outstanding local amenities. A wide selection of cafés, restaurants, bars and independent shops can be found nearby on Dumbarton Road and Byres Road, while larger supermarkets and retail facilities are also within easy reach. Excellent public transport links, including frequent bus services and nearby subway and rail options, provide quick access to the city centre and beyond. For outdoor space, residents can enjoy the proximity to Victoria Park and the open green spaces of Kelvingrove Park.
Accommodation:
- Security entry system
- Communal entrance close
- Reception hall
- Spacious main living/dining room with two section window to the rear
- Open plan kitchen complete with a range of base and wall units and appliances
- Generous double bedroom with three section bay window to the front and useful storage cupboard off
- Three-piece bathroom comprising bath, over bath shower, toilet and wash hand basin. Window to the rear
- Gas central heating
- Double glazing
More Details
Situation: Contact branch
Council Tax Band: B
Tenure: Freehold
Your home may be repossessed if you do not keep up repayments on your mortgage.
There may be a fee for mortgage advice. The actual amount you pay will depend upon your circumstances. The fee is up to 1% but a typical fee is 0.3% of the amount borrowed.
Similar Properties
Looking To Sell Or Let?
Rettie is one of the most trusted and well-respected names in property. Our unrivalled market knowledge helps people from around the world buy, sell, let and develop property in Scotland and the North East of England - from city apartments and rural cottages to large townhouses and prime country homes, farms and estates. We deal with some of the most prestigious properties on the market, but provide the same exceptional standards of service and value for money to all our clients.
