Garden Flat, 4a Bowmont Terrace, Dowanhill, Glasgow, G12 9LP
Offers Over £165,000
Lower Ground Apartment
2 Bedrooms
1 Bathroom
1 Reception Room
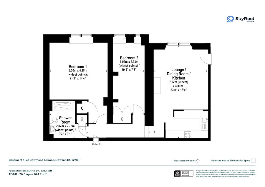
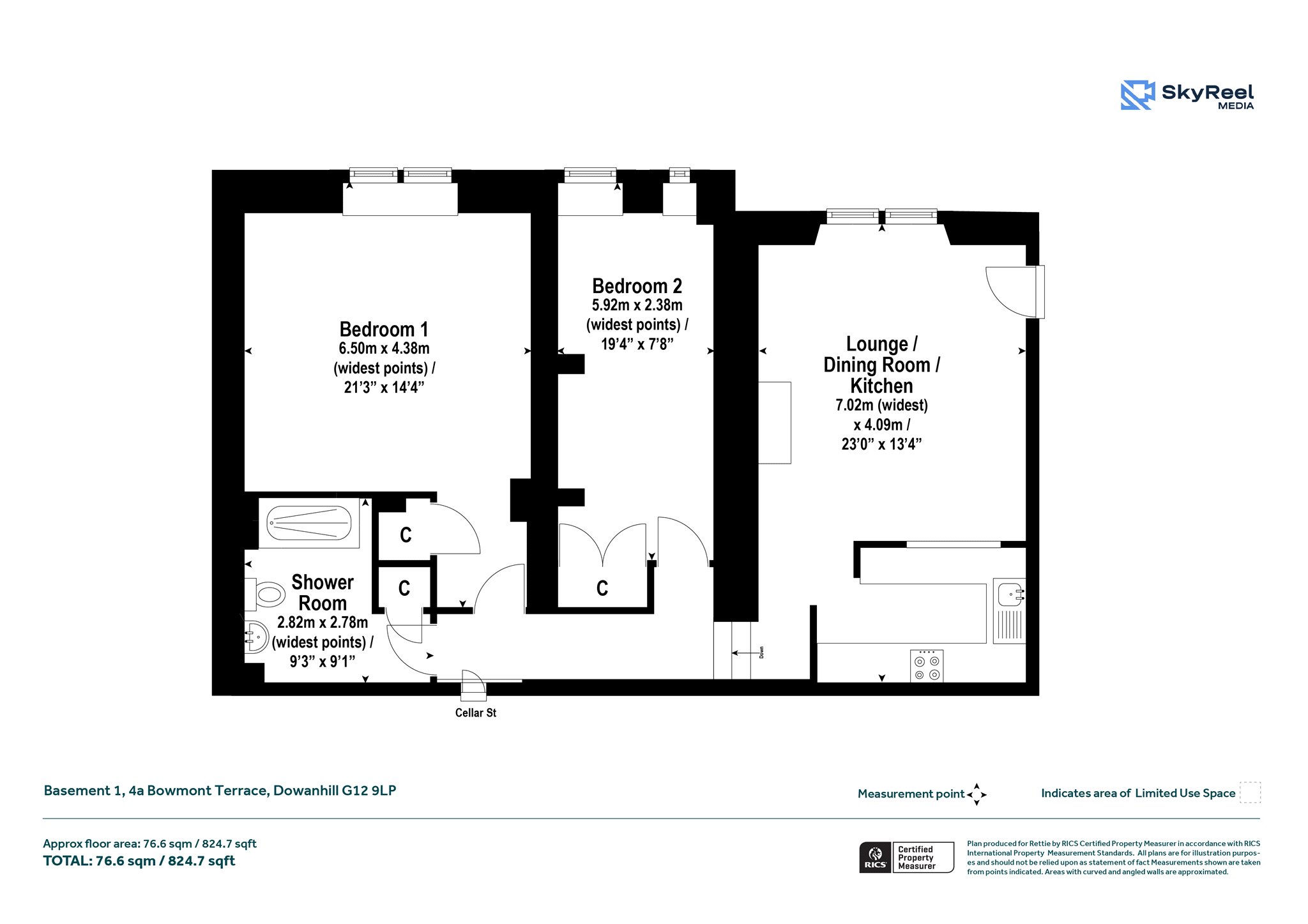
825 sq.ft
Communal Garden
On Street/Permit
Property Description
Enjoying a wonderfully convenient yet peaceful setting in the heart of Dowanhill, this well-proportioned two-bedroom lower basement apartment offers bright, south-facing accommodation with a particularly attractive outlook over maintained resident’s gardens to the rear. Positioned just around the corner from Byres Road, the property could not be better placed for gaining immediate access to an enviable selection of local amenities, transport links and leisure facilities, making it an appealing proposition for a broad range of buyers.
In terms of location, Bowmont Terrace is regarded as one of Dowanhill’s most desirable addresses – a quiet, leafy enclave formed around an elegant central green. Despite its tranquil atmosphere, the property is only a short walk from the vibrant heart of the West End, where Byres Road offers an exceptional variety of cafés, restaurants, bars and boutique shops. The property is also ideally situated for access to Glasgow University, Kelvingrove Park and excellent public transport links including Hillhead Underground Station, ensuring easy connectivity throughout the city and beyond. This balance of serenity and convenience continues to attract everyone from young professionals and first-time buyers to those seeking a well-located pied-à-terre or investment opportunity.
The apartment itself occupies a lower basement position, with all principal apartments enjoying a bright southerly aspect and open views across the communal gardens – a rare and highly desirable feature at this level. Internally, the property offers generous room proportions and a highly practical layout, although it would now benefit from a programme of modernisation and upgrading, presenting an excellent opportunity for the incoming purchaser to tailor the space to their own taste and requirements.
The accommodation extends to; welcoming reception hall, a spacious open plan kitchen, living and dining room which forms the heart of the home, two well-proportioned double bedrooms, and a large bathroom.
Attributes;
- Superb central position in Dowanhill, moments from Byres Road
- Peaceful, leafy setting with outlook over attractive communal gardens
- South-facing orientation to all principal apartments
- Generous room proportions throughout
- Open plan kitchen, living and dining space
- Two good sized double bedrooms
- Large bathroom
- Excellent transport links nearby including Hillhead Underground Station
- Walking distance to Glasgow University and Kelvingrove Park
- On street parking available with resident permit
- Significant potential for modernisation and value enhancement
More Details
EPC: D
Council Tax: D
Tenure: Freehold
Your home may be repossessed if you do not keep up repayments on your mortgage.
There may be a fee for mortgage advice. The actual amount you pay will depend upon your circumstances. The fee is up to 1% but a typical fee is 0.3% of the amount borrowed.
Similar Properties
Looking To Sell Or Let?
Rettie is one of the most trusted and well-respected names in property. Our unrivalled market knowledge helps people from around the world buy, sell, let and develop property in Scotland and the North East of England - from city apartments and rural cottages to large townhouses and prime country homes, farms and estates. We deal with some of the most prestigious properties on the market, but provide the same exceptional standards of service and value for money to all our clients.
