Ground Floor, 4 Crown Circus, Dowanhill, Glasgow, G12 9HB

Dowanhill, Glasgow, G12 9HB
New
Pin View on map
  • https://youtube.com/shorts/a2h-r9algFI?si=yBcv5TGrqKvIglOD

  • EPC Rating Graph

Offers Over £219,000

House

Ground Floor Apartment

Bed

1 Bedroom

Bathroom

1 Bathroom

Reception

1 Reception Room

Size

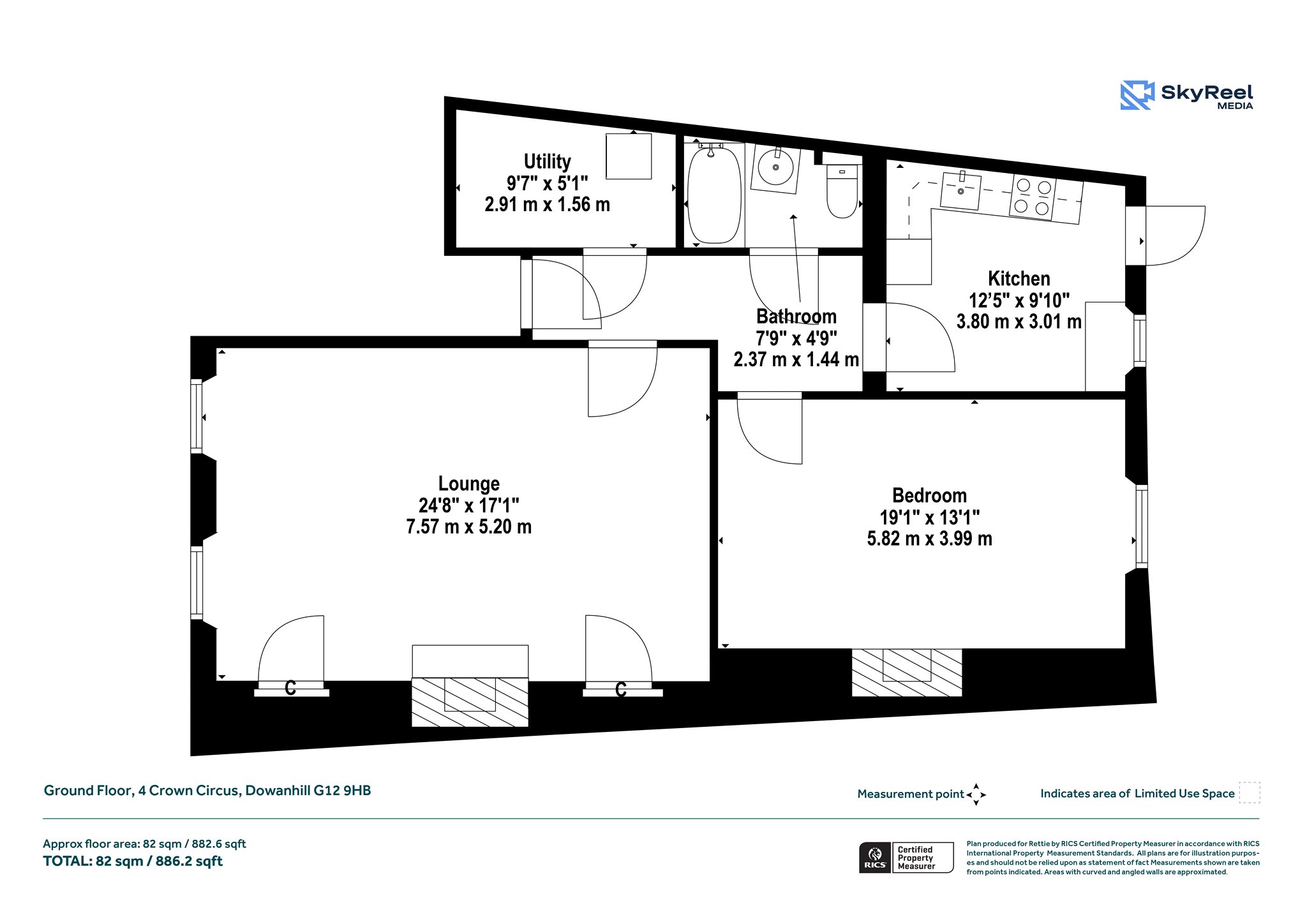
886 sq.ft

Tree

Communal Garden

Parking

On Street/Permit

Telephone

Property Description

CLOSING DATE THURSDAY 16 TH APRIL AT 11 AM

Situated on the elegant Crown Circus in the heart of Dowanhill, this beautifully proportioned one-bedroom conversion occupies an elevated ground floor position within a striking converted townhouse. Forming part of a distinguished ‘A’ listed terrace, the building dates from the mid-19th century and was designed by renowned Glasgow architect James Thomson, whose work continues to define much of the West End’s architectural character.

The apartment itself is naturally bright and generously proportioned, retaining a wealth of charming traditional features. Ornate ceiling cornicing, impressive ceiling heights, and natural wooden finishes enhance the sense of period charm, while focal point fireplaces in both the lounge and bedroom create warm and characterful living spaces.

The accommodation comprises a substantial and inviting lounge, ideal for both relaxing and entertaining, and a separate kitchen positioned to the rear, offering direct access to the shared garden - an attractive and practical outdoor space. The spacious double bedroom provides excellent proportions and further period detail, while a three-piece bathroom and an invaluable useful utility room add to the home’s functionality.

While the property would benefit from a degree of modernisation, it presents an outstanding opportunity for a purchaser to upgrade and personalise a home of genuine character within one of Glasgow’s most desirable districts.

Dowanhill itself is widely regarded as one of the West End’s premier residential areas offering a superb blend of leafy surroundings and vibrant local amenities. Crown Circus is ideally positioned for access to Byres Road, where an array of independent boutiques, cafés, bars, and restaurants can be found, alongside excellent transport links including Hillhead Underground station. The nearby Botanic Gardens provide a tranquil green escape, while the University of Glasgow and Kelvingrove Park are also within easy reach, further enhancing the area’s enduring appeal.

Accommodation:

  • Security entry system
  • Communal entrance hall
  • Reception hall with invaluable utility room off
  • Superb lounge with two windows to the front, ornate ceiling cornice, ceiling rose, shelved press and a focal point fireplace
  • Separate kitchen complete with a range of base and wall units, appliances, two windows to the rear and door providing direct access to the rear garden
  • Spacious double bedroom with window to the rear, ornate ceiling cornice and focal point fireplace
  • Three-piece bathroom comprising bath, over bath shower, toilet and wash hand basin
  • Gas central heating
  • Sash and case windows
  • Shared garden to the rear of the building
  • Availability of on street residents’ parking permit

More Details

Situation: Communal Garden
Council Tax Band: E
Tenure: Freehold

Request More Details

Lyndsey Mercer

Lyndsey Mercer

Sales Negotiator
Craig Roberts

Craig Roberts

Mortgage & Protection Advisor
Mortgage Calculator
Monthly payments
Please set an interest rate.

Your home may be repossessed if you do not keep up repayments on your mortgage.

There may be a fee for mortgage advice. The actual amount you pay will depend upon your circumstances. The fee is up to 1% but a typical fee is 0.3% of the amount borrowed.

Tax Calculator
LBTT calculator for properties purchased in Scotland. Stamp Duty calculator for properties purchased in England.
Land & buildings transaction tax (LBTT)
= £0
New build house with stone and timber cladding

Looking To Sell Or Let?

Rettie is one of the most trusted and well-respected names in property. Our unrivalled market knowledge helps people from around the world buy, sell, let and develop property in Scotland and the North East of England - from city apartments and rural cottages to large townhouses and prime country homes, farms and estates. We deal with some of the most prestigious properties on the market, but provide the same exceptional standards of service and value for money to all our clients.