Offers Over £149,000
Upper Floor Apartment
1 Bedroom
1 Bathroom
1 Reception Room
624 sq.ft
On Street/Permit
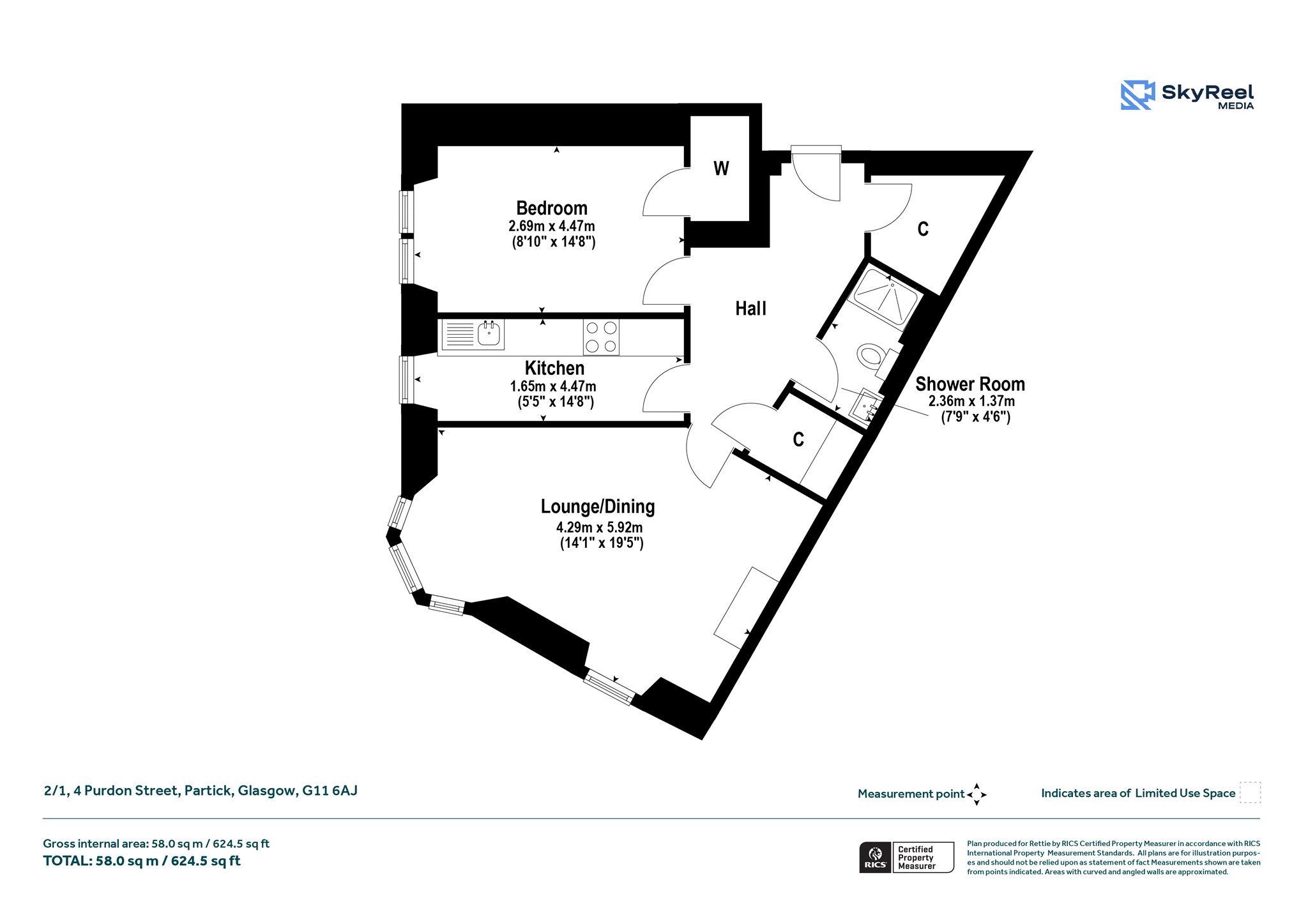
Property Description
Occupying a prominent second-floor position within a traditional red sandstone tenement building on the corner of Purdon Street and Dumbarton Road, this appealing one-bedroom apartment offers bright, comfortably proportioned accommodation in a particularly convenient West End location.
The heart of the home is the impressive corner bay windowed lounge/dining room — a wonderfully spacious and inviting living area with ample room for both relaxation and entertaining. The bay window further enhances the sense of volume and light. In addition, there is a galley style kitchen, an impressive double bedroom and a three-piece shower room. There is excellent storage within the property including fitted wardrobes in the bedroom and two storage cupboards off the reception hall.
The location is a particular highlight. Positioned on Dumbarton Road, the property is surrounded by an excellent selection of local amenities including independent cafés, restaurants, convenience stores and supermarkets. For more extensive shopping and leisure facilities, Partick is within easy reach, while excellent public transport links — including regular bus services along Dumbarton Road and nearby rail and underground connections providing swift access to the West End, the city centre and beyond. Green spaces and riverside walks along the Clyde are also close at hand, adding further appeal to this superbly situated home.
Accommodation:
- Security entry system
- Communal entrance close
- Welcoming reception hall with two useful storage cupboards
- Bright and spacious lounge with three section corner bay window, additional window to the side and focal point fireplace
- Separate galley style kitchen complete with a range of base and wall units, appliances and window to the front
- Generous double bedroom with window to the front and fitted wardrobes
- Three-piece shower room
- Gas central heating
- Double glazing
- Availability of on street residents’ parking permit
More Details
Situation: Contact branch
Council Tax Band: B
Tenure: Freehold
Your home may be repossessed if you do not keep up repayments on your mortgage. There may be a fee for mortgage advice. The actual amount you pay will depend upon your circumstances.
Similar Properties
Looking To Sell Or Let?
Rettie is one of the most trusted and well-respected names in property. Our unrivalled market knowledge helps people from around the world buy, sell, let and develop property in Scotland and the North East of England - from city apartments and rural cottages to large townhouses and prime country homes, farms and estates. We deal with some of the most prestigious properties on the market, but provide the same exceptional standards of service and value for money to all our clients.
