Offers Over £215,000
Upper Floor Apartment
2 Bedrooms
1 Bathroom
1 Reception Room
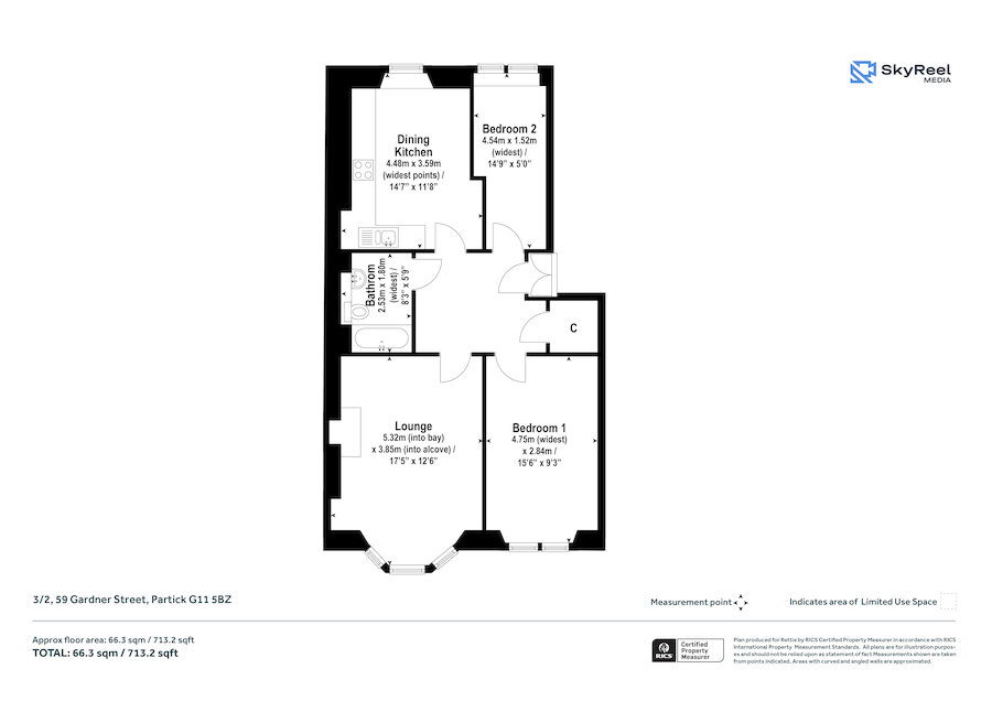
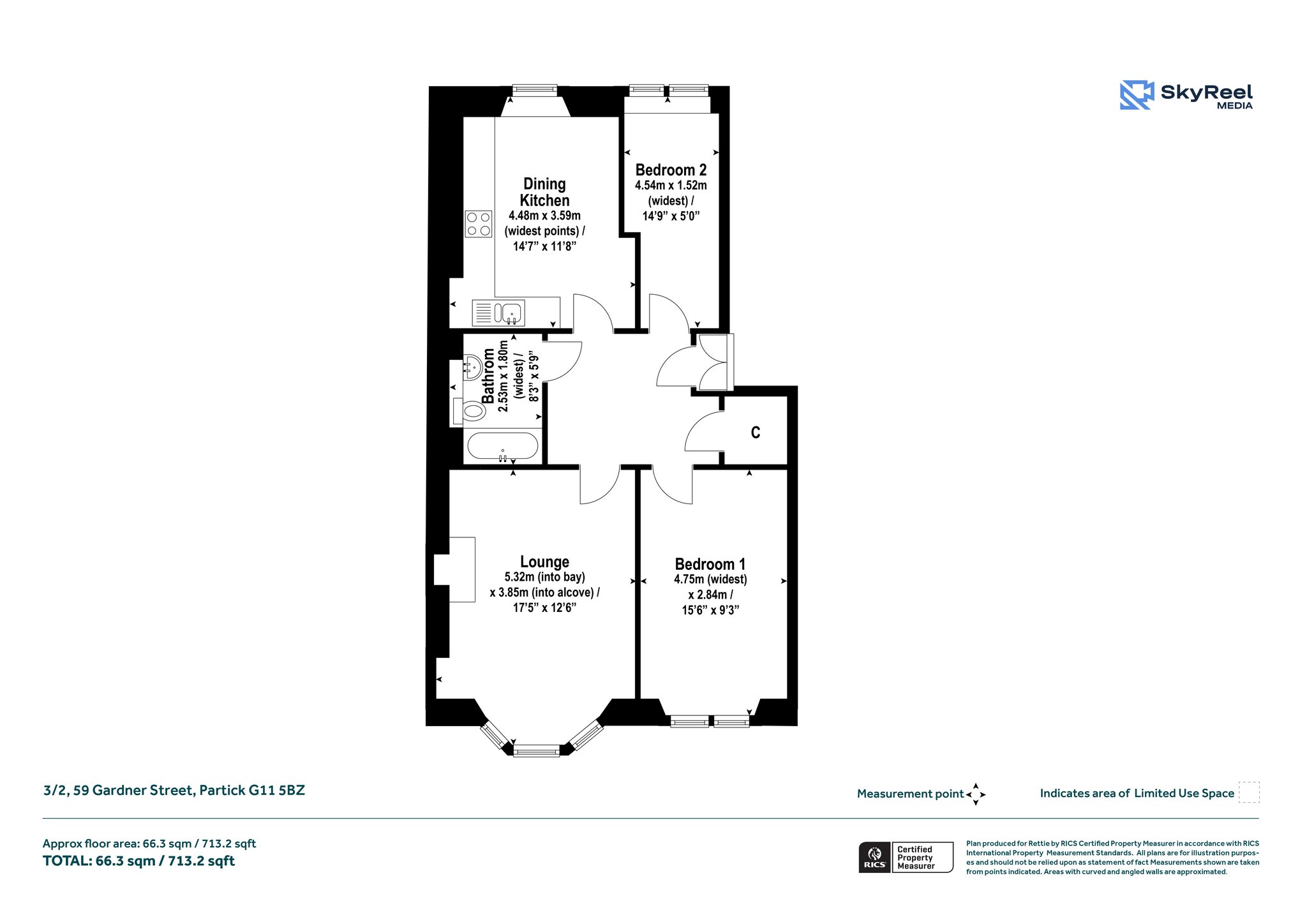
713 sq.ft
Communal Garden
On Street/Permit
Property Description
Enjoying a prominent third floor position within elegant red sandstone tenement, this appealing two-bedroom apartment enjoys a bright, elevated outlook in the heart of Glasgow’s ever-popular Partick district. Combining classic tenement character with comfortable, well-maintained interiors, the property offers spacious accommodation and excellent natural light throughout, creating a warm and welcoming home. We would also highlight the added bonus of extensive remedial works to the building which were carried out in 2021 and includes a new roof.
The accommodation is thoughtfully arranged and well-proportioned. A charming bay-windowed lounge and dining room forms the focal point of the home, with large windows allowing daylight to flood the space while offering attractive views along the street. The room provides ample space for both relaxing and entertaining, making it a versatile living area. To the rear, the dining kitchen offers generous workspace and room for a table and chairs, making it ideal for everyday meals or informal gatherings. The apartment also features two bedrooms and a well-appointed three-piece bathroom.
Partick is widely regarded as one of the West End’s most convenient and vibrant neighbourhoods. The property is ideally placed for a wide range of local amenities including independent cafés, restaurants, delicatessens and everyday shopping along Dumbarton Road and Byres Road. Residents also benefit from excellent transport connections, with both Partick Railway Station and Subway Station nearby, providing quick and easy access across the city. For leisure and outdoor space, the beautiful grounds of Kelvingrove Park and the renowned Kelvingrove Art Gallery and Museum are within easy reach, while the nearby campus of University of Glasgow adds to the lively cultural atmosphere of the West End.
Accommodation:
- Security entry system
- Communal entrance close
- Storm door entrance vestibule leading to welcoming reception hall with useful storage cupboard off
- Superb lounge with three section bay window, ceiling cornice, shelved press and focal point fireplace
- Dining kitchen complete with a range of base and wall units, appliances and window to the rear
- Bedroom one with two section window to the front
- Bedroom two with window to the rear
- Three-piece bathroom comprising bath, over bath shower, toilet and wash hand basin
- Gas central heating
- Double glazing
- Well-maintained shared garden to the rear of the building
- Availability of on street residents’ parking permit
More Details
Situation: Communal Garden
Council Tax Band: C
Tenure: Freehold
Your home may be repossessed if you do not keep up repayments on your mortgage. There may be a fee for mortgage advice. The actual amount you pay will depend upon your circumstances.
Similar Properties
Looking To Sell Or Let?
Rettie is one of the most trusted and well-respected names in property. Our unrivalled market knowledge helps people from around the world buy, sell, let and develop property in Scotland and the North East of England - from city apartments and rural cottages to large townhouses and prime country homes, farms and estates. We deal with some of the most prestigious properties on the market, but provide the same exceptional standards of service and value for money to all our clients.
