Flat 2, 58 Queensborough Gardens, Hyndland, Glasgow, G12 9TU
Offers Over £399,000
Upper Floor Apartment
3 Bedrooms
1 Bathroom
1 Reception Room
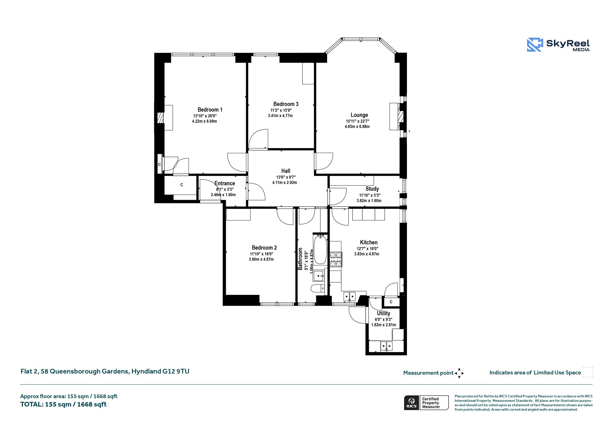
1,668 sq.ft
Communal Garden
On Street/Permit
Property Description
Forming part of an elegant red sandstone tenement building, this immediately impressive three-bedroom second floor apartment enjoys a quiet yet incredibly convenient setting in the heart of the highly desirable Hyndland area. The building itself offers a rare sense of privacy, with only one property per landing, while the apartment combines generous proportions, refined traditional character and an abundance of natural light throughout.
Extending to over 1600 square feet, the accommodation is both substantial and particularly comfortable. The welcoming reception hall, complete with beautiful wooden flooring and striking stained glass detailing, sets the tone for the rest of the home. To the front, a magnificent bay-windowed lounge provides a superb entertaining space, enhanced by excellent natural light, intricate period features and a focal point fireplace. The dining kitchen is equally impressive, offering ample space for both everyday living and hosting, with the added benefit of an invaluable utility room off. There are three spacious double bedrooms, all thoughtfully presented, with bedroom one further benefiting from wooden flooring, elegant wooden finishes and its own feature fireplace. A well-appointed three-piece bathroom serves the property, while a versatile study or home office positioned off the reception hall provides an ideal work-from-home solution.
The property is presented in excellent order throughout, with a harmonious blend of traditional charm and modern comfort, including natural wood finishes that add warmth and character to the interiors.
Hyndland is widely regarded as one of Glasgow’s most desirable residential areas, offering an exceptional range of local amenities. The area is home to an array of independent boutiques, artisan cafés, restaurants and delicatessens, while nearby Byres Road provides further choice including supermarkets, bars and leisure facilities. Excellent transport links are close at hand, with Hyndland railway station providing regular services across the city and beyond, as well as easy access to the Clyde Tunnel and M8 motorway network. The area is also well placed for access to the University of Glasgow and the open green spaces of the Botanic Gardens, making it an ideal location for a wide range of buyers.
Accommodation:
- Large entrance vestibule leading to welcoming reception hall with wooden flooring
- Outstanding main lounge with four section bay window to the front, wooden flooring, ceiling cornice, focal point fireplace, shelved press and two charming stained-glass windows to the side
- Dining kitchen complete with a range of base and wall units, window to the rear and window to the side
- Invaluable utility room off the kitchen providing excellent additional storage
- Study/home office off the reception hall with two windows to the side and wooden flooring
- Impressive principal bedroom with three section window to the front, wooden flooring, focal point fireplace and storage cupboard off
- Bedroom two with two section window to the rear
- Bedroom three with window to the front
- Modern three-piece bathroom comprising bath, over bath shower, toilet and wash hand basin. Window to the rear
- Gas central heating
- Sash and case windows
- Shared garden to the rear of the building
- Availability of on street residents’ parking permit
More Details
Situation: Communal Garden
Council Tax Band: E
Tenure: Freehold
Your home may be repossessed if you do not keep up repayments on your mortgage.
There may be a fee for mortgage advice. The actual amount you pay will depend upon your circumstances. The fee is up to 1% but a typical fee is 0.3% of the amount borrowed.
Similar Properties
Looking To Sell Or Let?
Rettie is one of the most trusted and well-respected names in property. Our unrivalled market knowledge helps people from around the world buy, sell, let and develop property in Scotland and the North East of England - from city apartments and rural cottages to large townhouses and prime country homes, farms and estates. We deal with some of the most prestigious properties on the market, but provide the same exceptional standards of service and value for money to all our clients.
