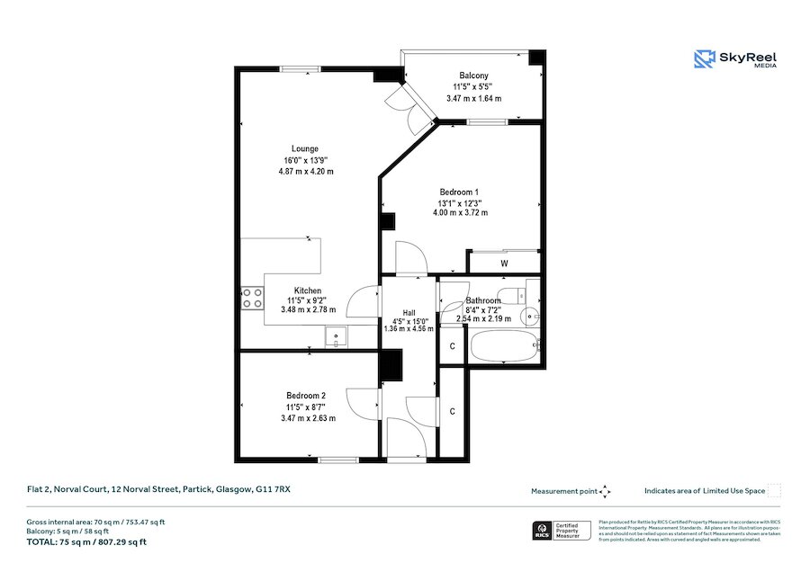
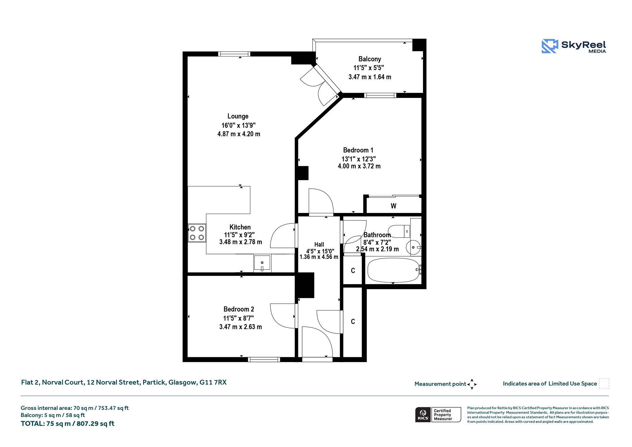
Flat 2, Norval Court, 12 Norval Street, Partick, Glasgow, G11 7RX
Offers Over £175,000
First Floor Apartment
2 Bedrooms
1 Bathroom
1 Reception Room
807 sq.ft
On Street/Permit
Property Description
A bright and well presented two bedroom apartment occupying a first floor position within the popular Norval Court development in the heart of Partick. This attractive home benefits from a peaceful setting with its own private balcony, while being just moments from the vibrant amenities of Glasgow’s West End.
The property offers a thoughtfully arranged interior with a modern open plan layout and excellent natural light throughout. The main living space is particularly appealing; an airy and comfortable lounge and dining area that opens directly onto a full balcony, providing valuable outdoor space and an ideal spot for relaxing or entertaining. The kitchen is seamlessly integrated, featuring contemporary white gloss units, contrasting worktops, a metallic splashback, and a breakfast bar that enhances the sociable feel of the space.
There are two well proportioned double bedrooms, both offering pleasant aspects. The principal bedroom benefits from a fitted mirrored wardrobe, while the second bedroom provides flexibility for use as a guest room, home office, or additional living space. A modern bathroom, finished in a clean, neutral style, includes a three-piece suite with an electric shower over the bath.
This appealing apartment will suit a wide range of buyers, including first-time purchasers, professionals, and investors seeking a low-maintenance home in a highly convenient location. Positioned close to Dumbarton Road, Crow Road and Byres Road, the property is ideally placed for an excellent selection of shops, cafés, bars and restaurants. Superb transport links are available nearby, including Partick Station, as well as easy access to the Clydeside Expressway and Clyde Tunnel.
Accommodation
- Secure door entry system
- Well maintained communal atrium and stairwell
- Lift access to all levels
- Reception hall with two useful storage cupboards
- Bright open plan lounge, dining and kitchen area with direct access to a full balcony
- Contemporary kitchen with oven, hob, extractor and space for appliances
- Two double bedrooms, principal with fitted mirrored wardrobe
- Modern bathroom with three-piece suite and electric shower over bath
- Electric heating
- Double glazing
- On-street parking
More Details
EPC: C
Council Tax: D
Tenure: Freehold
Your home may be repossessed if you do not keep up repayments on your mortgage.
There may be a fee for mortgage advice. The actual amount you pay will depend upon your circumstances. The fee is up to 1% but a typical fee is 0.3% of the amount borrowed.
Similar Properties
Looking To Sell Or Let?
Rettie is one of the most trusted and well-respected names in property. Our unrivalled market knowledge helps people from around the world buy, sell, let and develop property in Scotland and the North East of England - from city apartments and rural cottages to large townhouses and prime country homes, farms and estates. We deal with some of the most prestigious properties on the market, but provide the same exceptional standards of service and value for money to all our clients.
