5 Woodlands Park, Thornliebank, Glasgow, East Renfrewshire, G46 7RZ

Thornliebank, Glasgow, East Renfrewshire, G46 7RZ
Under Offer
Pin View on map

Offers Over £140,000

House

Upper Floor Apartment

Bed

2 Bedrooms

Bathroom

1 Bathroom

Reception

1 Reception Room

Parking

Off Street Parking

Telephone

Property Description

CLOSING DATE FRIDAY 1ST MAY AT 12 NOON

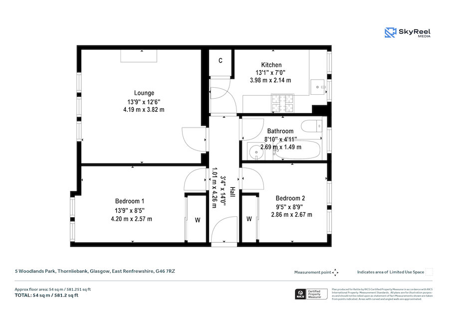
This well proportioned first floor two bedroom flat offers comfortable and practical accommodation, ideally suited to first-time buyers, downsizers or buy-to-let investors. The property is set within a popular residential pocket of Thornliebank, conveniently located for local amenities and transport links.

The accommodation comprises a welcoming entrance hall, leading to a bright and spacious lounge. The kitchen is fitted with a range of base and wall mounted units and offers good worktop space for everyday convenience.

There are two double bedrooms, both well sized and versatile, ideal for use as bedrooms, home office space or guest accommodation. The bathroom is fitted with a three-piece suite including a bath with overhead shower.

Further benefits include double glazing, secure-door entry and an allocated parking space.

Thornliebank offers excellent local amenities, with shops, supermarkets and cafés nearby, as well as regular transport links to Glasgow and surrounding areas. Early viewing is recommended to appreciate the space and location on offer.

More Details

Council Tax: D
EPC: C
Tenure: Freehold

Contact Us

Erica McFarlane

Erica McFarlane

Senior Sales Negotiator
Roland Brownlee

Roland Brownlee

Mortgage & Protection Advisor
Mortgage Calculator
Monthly payments
Please set an interest rate.

Your home may be repossessed if you do not keep up repayments on your mortgage.

There may be a fee for mortgage advice. The actual amount you pay will depend upon your circumstances. The fee is up to 1% but a typical fee is 0.3% of the amount borrowed.

Tax Calculator
LBTT calculator for properties purchased in Scotland. Stamp Duty calculator for properties purchased in England.
Land & buildings transaction tax (LBTT)
= £0
New build house with stone and timber cladding

Looking To Sell Or Let?

Rettie is one of the most trusted and well-respected names in property. Our unrivalled market knowledge helps people from around the world buy, sell, let and develop property in Scotland and the North East of England - from city apartments and rural cottages to large townhouses and prime country homes, farms and estates. We deal with some of the most prestigious properties on the market, but provide the same exceptional standards of service and value for money to all our clients.