116 Beechwood Avenue, Clarkston, Glasgow, East Renfrewshire, G76 7XG

Clarkston, Glasgow, East Renfrewshire, G76 7XG
Under Offer
Pin View on map

Offers Over £255,000

House

Terraced House

Bed

3 Bedrooms

Bathroom

3 Bathrooms

Reception

1 Reception Room

Tree

Private Garden

Telephone

Property Description

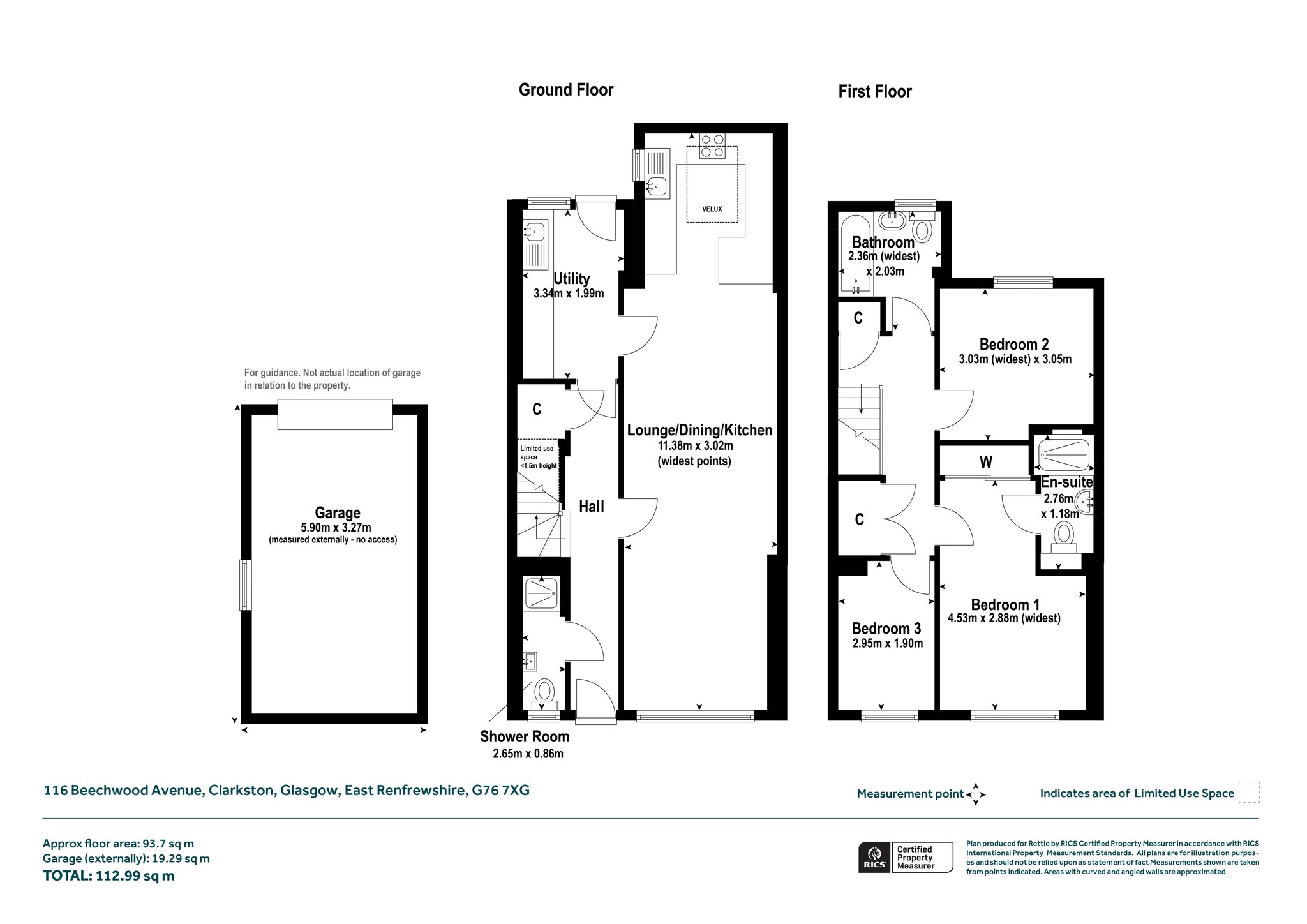
This stunning, fully renovated and extended three-bedroom mid-terraced villa is located in a prime position, close to local amenities, excellent transport links, and within a highly regarded school catchment area. The current owners have transformed and reconfigured the property to offer rarely available accommodation of this type in the area, making it an ideal home for modern family living.

On the ground floor, the welcoming entrance hallway gives access to all the principal rooms through stylish internal doors. There is a contemporary guest shower room and a beautifully designed open-plan lounge, dining, and kitchen area which extends from the front to the rear of the property. This layout maximizes natural light and creates a spacious, airy environment. The kitchen is fitted with a range of wall-mounted and floor-standing units, complemented by attractive worktop surfaces and a breakfasting bar, ideal for casual dining or entertaining. A separate utility room offers additional storage and workspace, with direct access to the rear garden and patio area.

Upstairs, the property offers three well-proportioned bedrooms. The principal bedroom benefits from fitted wardrobes and a luxurious en-suite shower room finished to a high standard. The family bathroom features a stylish three-piece suite and completes the internal layout.

Externally, the front garden has been thoughtfully landscaped with a paved terrace perfect for entertaining, a neat lawn area, and enjoys open views to the front. The rear garden includes a private patio area and access to a single garage, offering both outdoor space and practical storage.

Further features of this impressive home include gas central heating and double glazing throughout. This is a rare opportunity to purchase a truly turn-key property in one of the area's most desirable locations, and early viewing is highly recommended.

Freehold
EPC: C
Council Tax: D

More Details

Situation: Private Garden
Council Tax Band: D
Tenure: Contact Branch

Contact Us

Erica McFarlane

Erica McFarlane

Senior Sales Negotiator
Roland Brownlee

Roland Brownlee

Mortgage & Protection Advisor
Mortgage Calculator
Monthly payments
Please set an interest rate.

Your home may be repossessed if you do not keep up repayments on your mortgage. There may be a fee for mortgage advice. The actual amount you pay will depend upon your circumstances.

Tax Calculator
LBTT calculator for properties purchased in Scotland. Stamp Duty calculator for properties purchased in England.
Land & buildings transaction tax (LBTT)
= £0
New build house with stone and timber cladding

Looking To Sell Or Let?

Rettie is one of the most trusted and well-respected names in property. Our unrivalled market knowledge helps people from around the world buy, sell, let and develop property in Scotland and the North East of England - from city apartments and rural cottages to large townhouses and prime country homes, farms and estates. We deal with some of the most prestigious properties on the market, but provide the same exceptional standards of service and value for money to all our clients.