Offers Over £445,000
Semi Detached House
3 Bedrooms
3 Bathrooms
3 Reception Rooms
Private Garden
Off Street Parking
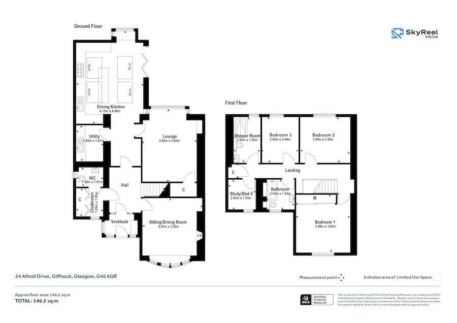
Property Description
A rare opportunity to acquire this beautifully extended semi-detached family home, perfectly combining style, space, and practicality. Situated on the highly desirable Atholl Drive in Giffnock, the property is close to local amenities and within the catchment of East Renfrewshire’s highly regarded schools.
The property is entered via a welcoming vestibule, opening to a bright and airy reception hall that sets the tone for the light-filled accommodation throughout.
The ground floor includes a cloakroom with WC, a front-facing lounge with a gas fire, a versatile family room or formal dining room, and a generously sized utility room. The heart of the home is the stunning open-plan dining kitchen with additional living space - ideal for modern family life. Featuring a vaulted ceiling with four Velux windows, a stylish fitted kitchen with integrated appliances, quartz worktops, and a central island breakfast bar, this exceptional room is filled with natural light. Bi-fold doors open onto a rear terrace, seamlessly connecting the interior with the low-maintenance garden.
Upstairs, the landing leads to three spacious bedrooms and a useful study or home office. The property also benefits from a contemporary family bathroom and an additional shower room, both finished to a high standard. A loft hatch with ladder provides access to a fully lined and floored attic, offering versatile additional space.
Finished to a high specification with double glazing and gas central heating, the home is presented in fresh, tasteful décor throughout. Externally, the property sits on landscaped garden grounds with a driveway for ample cars, a decked sun terrace, and an artificial lawn - perfect for year-round outdoor enjoyment.
Atholl Drive is ideally positioned within Giffnock, offering easy access to a wealth of amenities, excellent transport links, and, most importantly, East Renfrewshire’s highly regarded primary and secondary schools.
Freehold 
EPC D
More Details
Situation: Private Garden
Council Tax Band: E
Tenure: Contact Branch
Your home may be repossessed if you do not keep up repayments on your mortgage. There may be a fee for mortgage advice. The actual amount you pay will depend upon your circumstances.
Similar Properties
Looking To Sell Or Let?
Rettie is one of the most trusted and well-respected names in property. Our unrivalled market knowledge helps people from around the world buy, sell, let and develop property in Scotland and the North East of England - from city apartments and rural cottages to large townhouses and prime country homes, farms and estates. We deal with some of the most prestigious properties on the market, but provide the same exceptional standards of service and value for money to all our clients.

