1/3, 2 Aldton Court, Newton Mearns, Glasgow, G77 5UU

Newton Mearns, Glasgow, G77 5UU
Under Offer
Pin View on map

Offers Over £275,000

House

Apartment

Bed

2 Bedrooms

Reception

1 Reception Room

Tree

Communal Garden

Parking

Off Street Parking

Telephone

Property Description

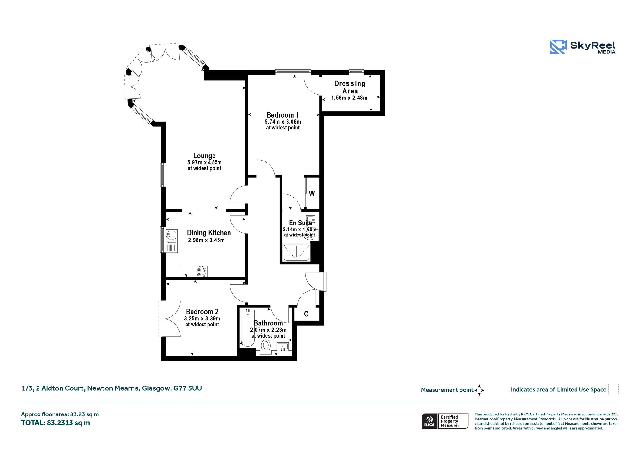
FIRST FLOOR WITH LIFT

Set within the ever-popular Aldton Court development in Newton Mearns, this beautifully presented apartment offers generous accommodation, distinctive architectural charm, and outstanding open views towards the nearby wind farm and surrounding countryside.

One of the home’s standout features is the striking turreted lounge, a bright and characterful space enhanced by curved windows that flood the room with natural light. The impressive outlook creates an ideal setting for both relaxation and entertaining.

The apartment is thoughtfully designed, with well-balanced proportions throughout. A welcoming reception hallway leads to the spacious lounge and a well-appointed dining kitchen, providing excellent space for everyday living and hosting guests.

There are two double bedrooms, including a principal suite complete with a private en-suite shower room and a separate dressing area, offering superb storage and a touch of luxury. The second bedroom is generously sized and served by a modern family bathroom. Additional storage cupboards further enhance the practicality of the home.

Situated in a highly desirable residential location, the property benefits from easy access to Newton Mearns’ excellent amenities, including shops, cafés, leisure facilities, and highly regarded schooling, as well as convenient transport links to Glasgow and beyond.

Combining space, style, and exceptional views, this unique apartment is perfectly suited to professionals, downsizers, or anyone seeking a home with something a little special.

Freehold
EPC B
Council Tax E

More Details

Situation: Communal Garden
Council Tax Band: E
Tenure: Freehold

Contact Us

Alison Anderson

Alison Anderson

Associate Director
Roland Brownlee

Roland Brownlee

Mortgage & Protection Advisor
Mortgage Calculator
Monthly payments
Please set an interest rate.

Your home may be repossessed if you do not keep up repayments on your mortgage.

There may be a fee for mortgage advice. The actual amount you pay will depend upon your circumstances. The fee is up to 1% but a typical fee is 0.3% of the amount borrowed.

Tax Calculator
LBTT calculator for properties purchased in Scotland. Stamp Duty calculator for properties purchased in England.
Land & buildings transaction tax (LBTT)
= £0
New build house with stone and timber cladding

Looking To Sell Or Let?

Rettie is one of the most trusted and well-respected names in property. Our unrivalled market knowledge helps people from around the world buy, sell, let and develop property in Scotland and the North East of England - from city apartments and rural cottages to large townhouses and prime country homes, farms and estates. We deal with some of the most prestigious properties on the market, but provide the same exceptional standards of service and value for money to all our clients.