8 Crathie Place, Newton Mearns, Glasgow, East Renfrewshire, G77 5UG
Offers Over £295,000
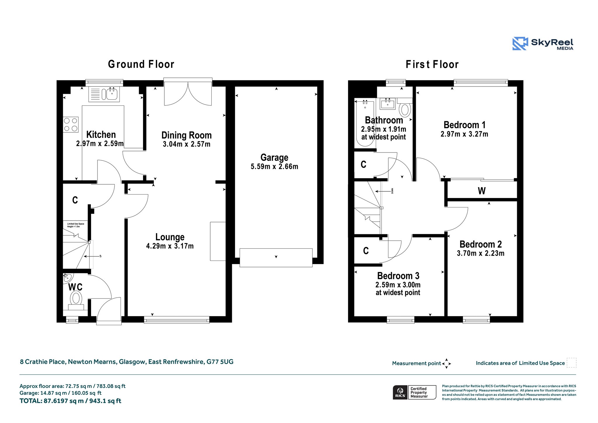
Semi Detached House
3 Bedrooms
2 Bathrooms
1 Reception Room
Private Garden
Garage
Property Description
Situated within the ever popular Castlefarm Estate, 8 Crathie Place is an appealing semidetached villa offering bright, well-proportioned accommodation in a quiet cul-de-sac setting. Ideally located for highly regarded local schools, excellent amenities and convenient transport links, this home will suit families and couples seeking comfort, space and a superb lifestyle in Newton Mearns.
A welcoming hallway leads into the spacious front lounge, an inviting room that sets the tone for the rest of the home. From here, the accommodation flows through to the rear dining room, where patio doors open directly onto the private garden, allowing natural light to enhance the sense of space. The dining room connects to a practical kitchen with further access to the garden, while a convenient WC and useful storage complete the ground floor.
There is newly laid Karndean flooring throughout the ground floor. The loft is partically floored to provide excellent storage.
Upstairs, the property features three well-proportioned bedrooms, each offering flexibility for family living, guests or home working. A modern family bathroom serves the upper level, and additional storage is thoughtfully provided.
Externally, the home benefits from driveway parking, an attached garage and an enclosed rear garden that offers a peaceful outdoor space for relaxation, play or gardening.
Newton Mearns is one of East Renfrewshire’s most sought-after residential areas, well known for its excellent quality of life and strong sense of community. The area offers an exceptional range of amenities, including popular cafés, restaurants and independent shops alongside larger retail destinations such as The Avenue Shopping Centre and Greenlaw Village. Outdoor enthusiasts can enjoy Rouken Glen Park, nearby golf clubs and a variety of scenic walking routes.
Families are particularly drawn to Newton Mearns for its outstanding schooling, with access to some of Scotland’s highest performing primary and secondary schools. The area also benefits from excellent transport connections, with convenient routes to Glasgow city centre and surrounding areas via road and nearby rail services, making commuting straightforward.
8 Crathie Place therefore offers not only a comfortable and well-proportioned home, but also the opportunity to enjoy the lifestyle and convenience that make Newton Mearns such a desirable place to live.
Freehold
More Details
Situation: Private Garden
Council Tax Band: F
Tenure: Freehold
Your home may be repossessed if you do not keep up repayments on your mortgage. There may be a fee for mortgage advice. The actual amount you pay will depend upon your circumstances.
Similar Properties
Looking To Sell Or Let?
Rettie is one of the most trusted and well-respected names in property. Our unrivalled market knowledge helps people from around the world buy, sell, let and develop property in Scotland and the North East of England - from city apartments and rural cottages to large townhouses and prime country homes, farms and estates. We deal with some of the most prestigious properties on the market, but provide the same exceptional standards of service and value for money to all our clients.
