7 Arnside Avenue, Giffnock, Glasgow, East Renfrewshire, G46 7QQ
Offers Over £345,000
Detached House
2 Bedrooms
1 Bathroom
2 Reception Rooms
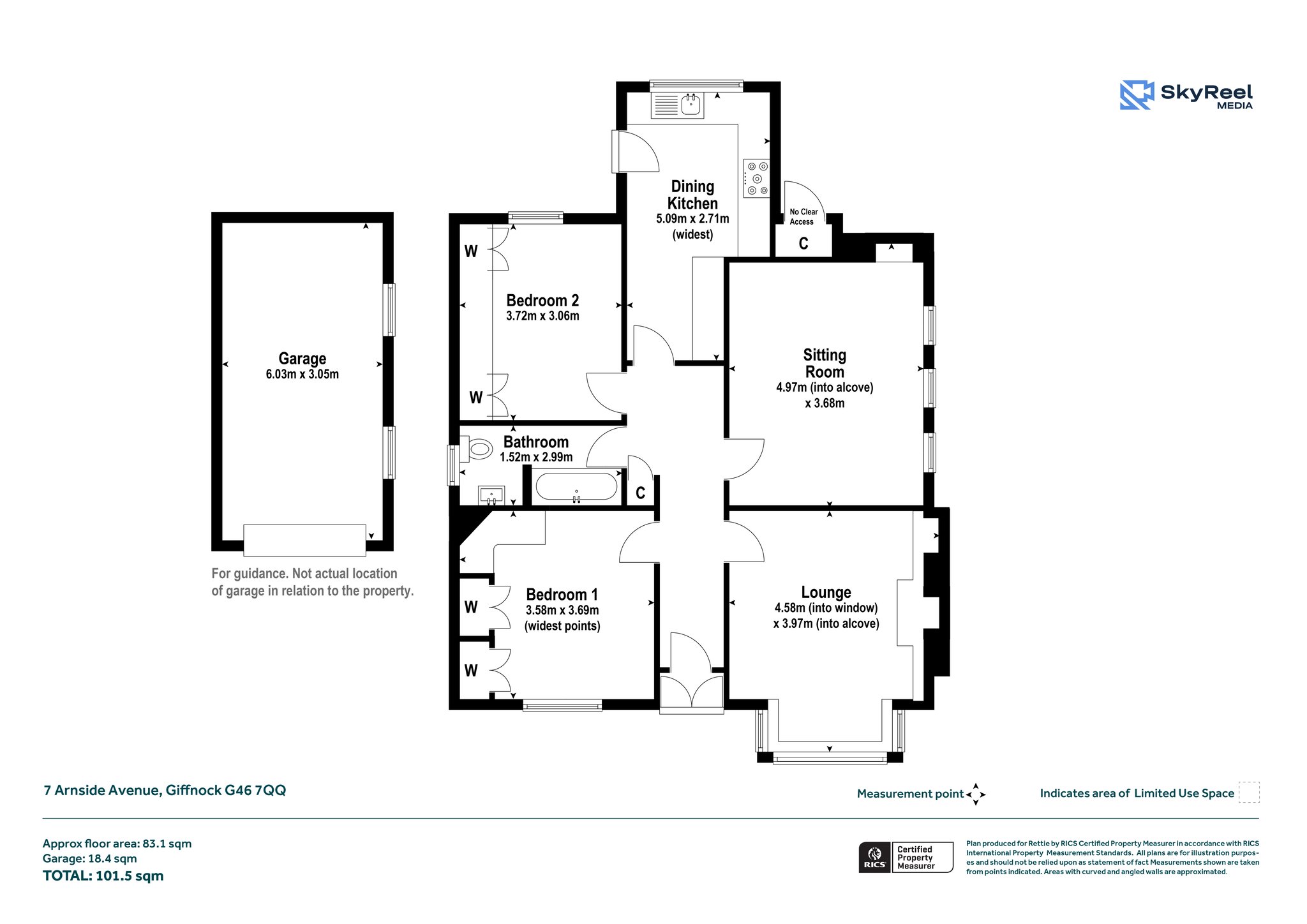
958 sq.ft
Private Garden
Garage
Property Description
Set within one of Giffnock’s most soughtafter residential pockets, this attractive red sandstone detached bungalow presents a genuinely rare opportunity to acquire an allonthelevel, undeveloped home in a prime East Renfrewshire location. Properties of this type and originality seldom come to market, making it an exceptional prospect for buyers seeking a versatile and wellpositioned bungalow with excellent scope to tailor to personal taste.
Perfectly placed for the wealth of amenities that define Giffnock’s enduring appeal, the property enjoys close proximity to highly regarded schooling, independent shops, cafés, restaurants, parks, and excellent transport links. The area is renowned for its strong community feel, leafy surroundings, and convenient access to both local services and Glasgow city centre. Its traditional exterior and good internal proportions create an immediately welcoming impression, while the singlestorey layout offers effortless daytoday living suited to a wide range of purchasers.
The accommodation comprises a bright lounge with bay window, a spacious sitting room, two wellsized double bedrooms, a dining kitchen, and a family bathroom. The layout provides comfortable living asis, while also offering exciting potential for reconfiguration or modernisation, subject to the necessary consents.
Externally, the home benefits from private gardens that offer both privacy and scope for landscaping or outdoor entertaining. A detached garage provides additional storage or workshop space, further enhancing the practicality of the property.
This is a rare chance to secure an original, undeveloped bungalow in one of East Renfrewshire’s most desirable neighbourhoods—an increasingly scarce opportunity for those seeking a home with character, convenience, and longterm potential.
Freehold
EPC D
Council tax F
More Details
Situation: Private Garden
Council Tax Band: F
Tenure: Freehold
Your home may be repossessed if you do not keep up repayments on your mortgage. There may be a fee for mortgage advice. The actual amount you pay will depend upon your circumstances.
Similar Properties
Looking To Sell Or Let?
Rettie is one of the most trusted and well-respected names in property. Our unrivalled market knowledge helps people from around the world buy, sell, let and develop property in Scotland and the North East of England - from city apartments and rural cottages to large townhouses and prime country homes, farms and estates. We deal with some of the most prestigious properties on the market, but provide the same exceptional standards of service and value for money to all our clients.
