63 Hillfield Drive, Newton Mearns, Glasgow, East Renfrewshire, G77 6GD
Offers Over £675,000
Detached House
5 Bedrooms
4 Bathrooms
3 Reception Rooms
Private Garden
Double Garage
Property Description
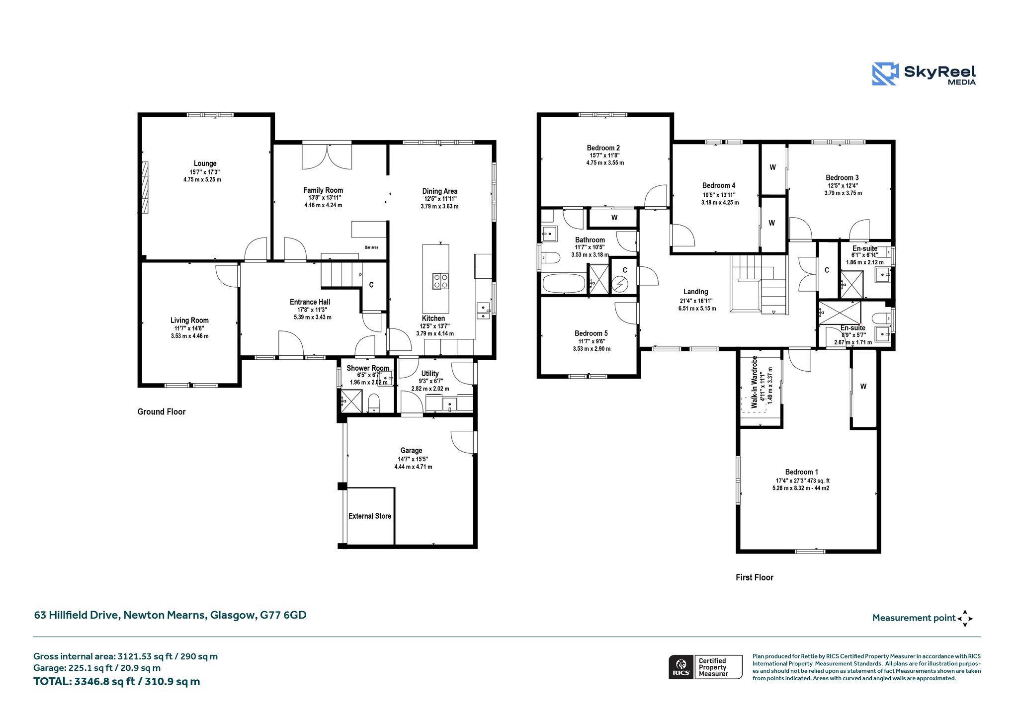
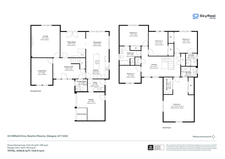
Perfectly positioned within one of Newton Mearns’ most desirable enclaves, this striking detached residence delivers an exceptional level of space, versatility and everyday comfort. From the moment you step inside, the scale becomes immediately apparent: this is a home designed to accommodate modern family life in all its forms - entertaining, home working, growing children, extended family and everything in between.
Across the ground floor, a series of beautifully proportioned rooms unfold with an effortless sense of flow. A full?depth lounge and additional living room/bedroom six offer flexible relaxation spaces, while the generous family room and open?plan dining kitchen form the social heart of the home. A utility room and guest shower room enhance the practicality of the layout. Every space feels bright, balanced and intuitively designed.
Upstairs, the impressive accommodation continues. A wide landing leads to five superb bedrooms, including an expansive principal suite complete with dressing area and en?suite shower room. Four further double bedrooms, one with its own private ensuite, and a stylish family bathroom ensure the upper level works seamlessly for families of all sizes. Storage is excellent throughout, and each room benefits from an elevated outlook thanks to the home’s commanding corner plot position.
This wonderful home is complemented by a range of desirable features that further enhance comfort and convenience. The property benefits from efficient gas central heating and double glazing, ensuring warmth and energy efficiency year?round. A generous driveway and sizable garage, which has been converted into a studio can provide excellent storage options/further entertaining space.
Set on a prominent corner plot, the house enjoys a real sense of space and privacy, with extensive open views to the rear that offer a delightful backdrop - particularly at sunset. The gardens are designed for low?maintenance enjoyment, making them ideal for families and those who love outdoor entertaining.
Newton Mearns remains one of East Renfrewshire’s most sought?after residential areas, renowned for its outstanding schooling, vibrant local amenities and excellent connectivity. From this address, Patterton Train Station is just a short distance away, offering fast and direct links into Glasgow Central. Crookfur Primary, Eastwood High and a selection of early?years facilities are all close by, making the location ideal for families. The area boasts an array of parks, golf courses, walking routes, and health clubs, along with popular retail and dining options including The Avenue Shopping Centre, Greenlaw Village and a wide choice of cafes and restaurants. Road links are equally superb, with quick access to the M77 for easy commuting across Glasgow and beyond.
More Details
EPC: B
Council Tax: H
Tenure: Freehold
Your home may be repossessed if you do not keep up repayments on your mortgage. There may be a fee for mortgage advice. The actual amount you pay will depend upon your circumstances.
Similar Properties
Looking To Sell Or Let?
Rettie is one of the most trusted and well-respected names in property. Our unrivalled market knowledge helps people from around the world buy, sell, let and develop property in Scotland and the North East of England - from city apartments and rural cottages to large townhouses and prime country homes, farms and estates. We deal with some of the most prestigious properties on the market, but provide the same exceptional standards of service and value for money to all our clients.
