3 Blair Atholl Gate, Newton Mearns, Glasgow, G77 5UP

Newton Mearns, Glasgow, G77 5UP
Under Offer
Pin View on map

Offers Over £435,000

House

Detached House

Bed

4 Bedrooms

Bathroom

3 Bathrooms

Reception

2 Reception Rooms

Tree

Private Garden

Parking

Off Street Parking

Telephone

Property Description

CLOSING DATE FRIDAY 24TH APRIL AT 11AM

Property Description

Set within the ever-popular Castle Farm estate, this beautifully presented detached family home has been lovingly renovated with exceptional care and attention. Thoughtfully upgraded to meet the needs of modern family living, the owners have created a warm, stylish, and highly functional home, complemented by a delightful private garden that provides a peaceful escape in this sought-after Newton Mearns location.

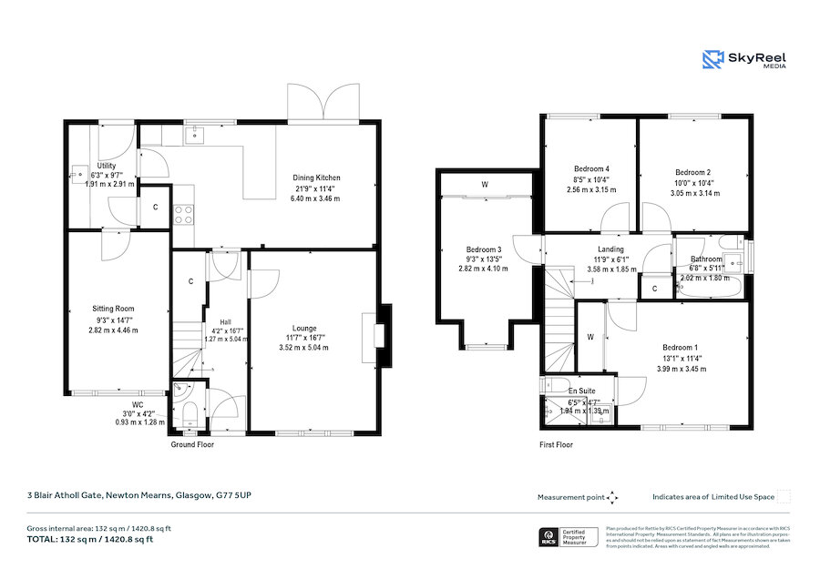
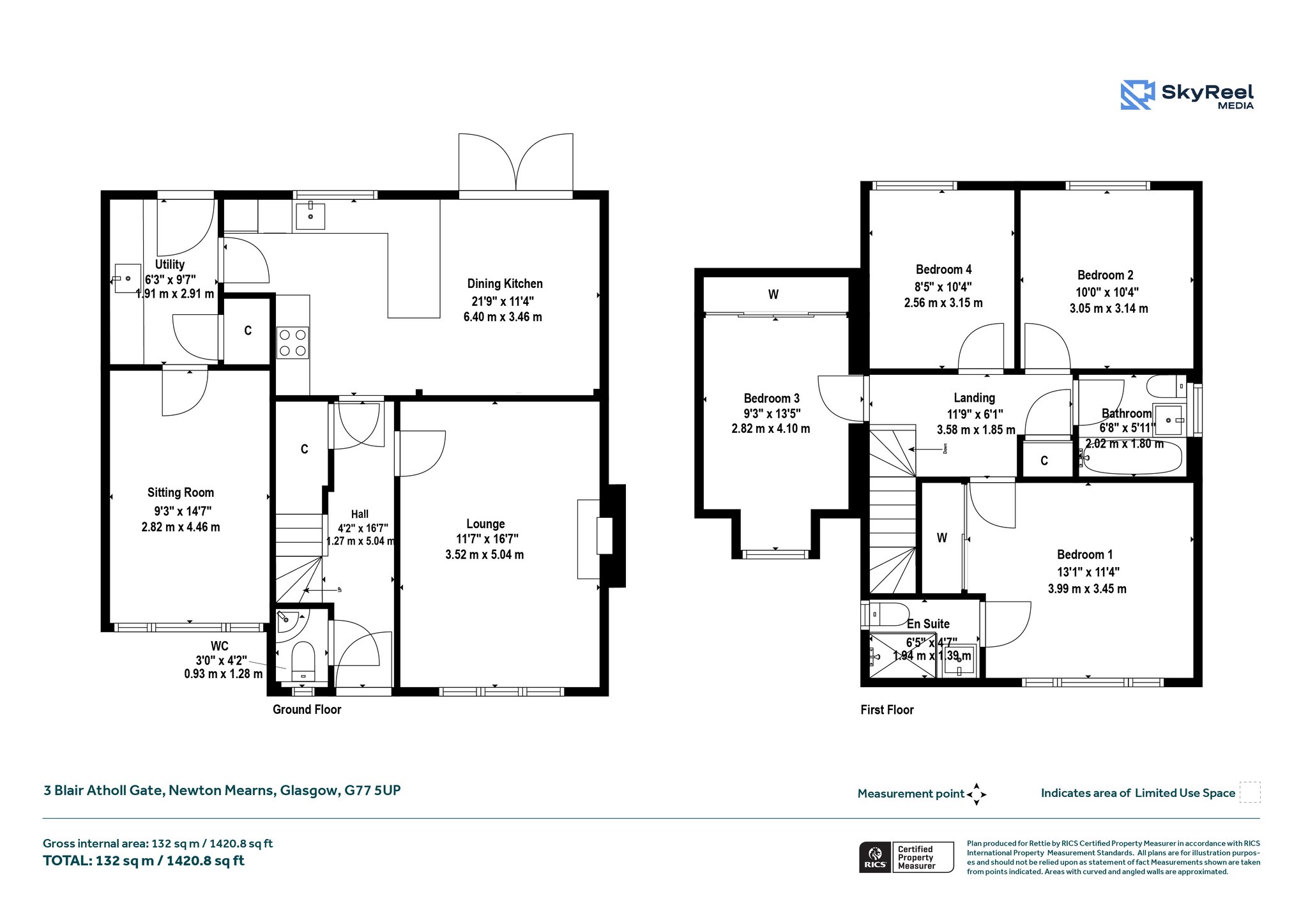
Ground Floor

A welcoming reception hallway sets the tone for the quality and comfort found throughout the property. From here, you are drawn into the bright and elegant lounge—an inviting space perfect for both everyday relaxation and entertaining guests. Flowing seamlessly from the lounge is the dining area, creating an ideal open layout for family gatherings.
The beautifully appointed kitchen sits at the heart of the home, thoughtfully redesigned to offer both practicality and aesthetic charm. With ample workspace, modern finishes, and direct access to the garden, it serves as a central hub for family life. The ground floor also includes a convenient utility area and a stylish WC, ensuring everyday comfort and convenience.

Upper Floor

Upstairs, the home continues to impress with a well-designed layout suited to family living. The principal bedroom is light-filled and serene, offering a peaceful retreat. The remaining bedrooms are equally bright and versatile—ideal for children, guests, or home-office use. A contemporary family bathroom completes the upper level, finished to a high standard to provide a calm and comfortable space for daily routines.

Garden & Outdoor Space

The house is further enhanced by its beautiful garden—a true highlight of the property. Lovingly maintained, it offers a wonderful combination of lawn and seating areas, ideal for children’s play, outdoor dining, or simply enjoying the peaceful surroundings. This private outdoor space perfectly complements the home and provides a superb extension of the living environment during warmer months.

Location Summary – Living in Newton Mearns

Newton Mearns is one of East Renfrewshire’s most desirable residential areas, known for its exceptional quality of life. Families are drawn to the area for its outstanding schooling options, excellent local amenities, and welcoming community atmosphere. The area offers a wide range of shops, cafés, restaurants, and leisure facilities, along with beautiful green spaces and easy access to commuter links. Castle Farm itself is a well-established and popular development, appreciated for its peaceful setting and proximity to everything Newton Mearns has to offer.

Freehold

More Details

Situation: Private Garden
Council Tax Band: G
Tenure: Contact Branch

Contact Us

Alison Anderson

Alison Anderson

Associate Director
Roland Brownlee

Roland Brownlee

Mortgage & Protection Advisor
Mortgage Calculator
Monthly payments
Please set an interest rate.

Your home may be repossessed if you do not keep up repayments on your mortgage.

There may be a fee for mortgage advice. The actual amount you pay will depend upon your circumstances. The fee is up to 1% but a typical fee is 0.3% of the amount borrowed.

Tax Calculator
LBTT calculator for properties purchased in Scotland. Stamp Duty calculator for properties purchased in England.
Land & buildings transaction tax (LBTT)
= £0
New build house with stone and timber cladding

Looking To Sell Or Let?

Rettie is one of the most trusted and well-respected names in property. Our unrivalled market knowledge helps people from around the world buy, sell, let and develop property in Scotland and the North East of England - from city apartments and rural cottages to large townhouses and prime country homes, farms and estates. We deal with some of the most prestigious properties on the market, but provide the same exceptional standards of service and value for money to all our clients.