Flat 1/2, 2 Eastwoodhill Grove, Giffnock, Glasgow, East Renfrewshire, G46 6BB

Giffnock, Glasgow, East Renfrewshire, G46 6BB
New
Pin View on map

Offers Over £465,000

House

Apartment

Bed

2 Bedrooms

Bathroom

2 Bathrooms

Reception

1 Reception Room

Tree

Communal Garden

Parking

Off Street Parking

Telephone

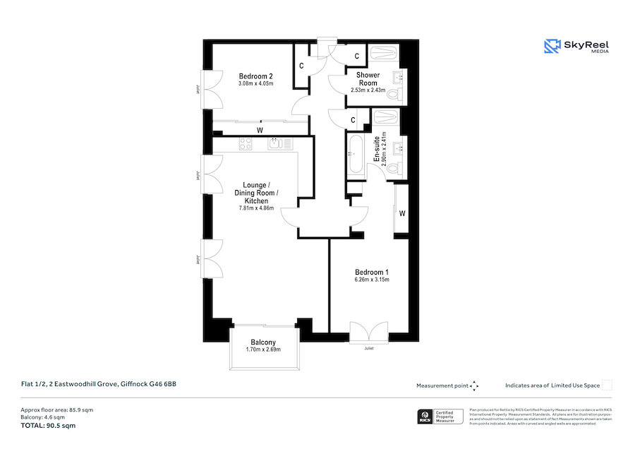
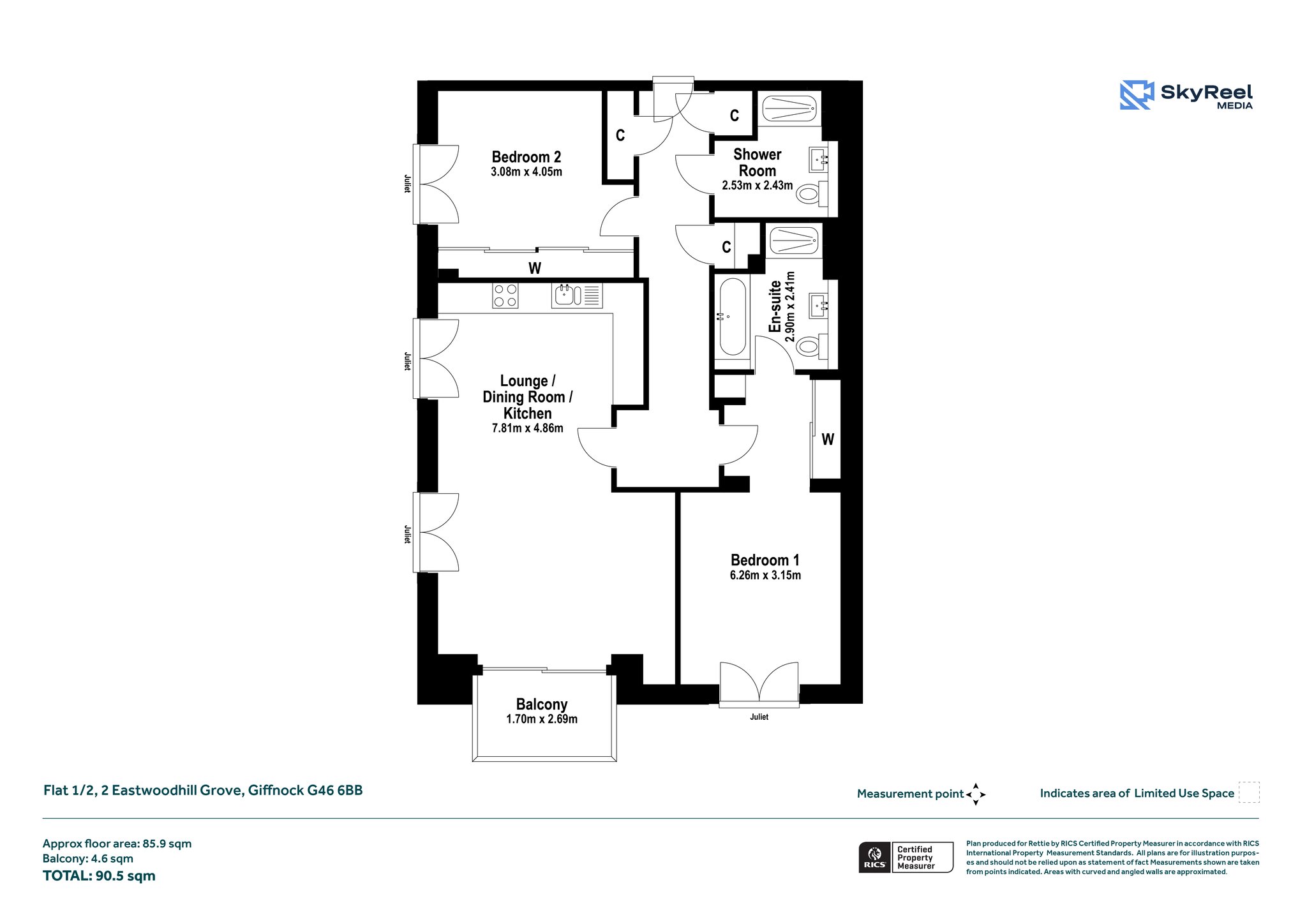
Property Description

Beautifully presented and immaculately maintained, this exceptional two-bedroom, first-floor apartment is ideally located in the ever-popular Giffnock area—just moments from excellent local amenities and the transport links of Fenwick Road.

Bright and spacious with high-end finishes throughout, the apartment offers a flexible and contemporary layout designed for modern living.

The welcoming entrance hallway leads to all principal rooms, at the end it opens up to a generous open-plan living, dining, and kitchen area—flooded with natural light. The living space is further enhanced by a sliding patio door that opens onto a private balcony, ideal for relaxing or entertaining. The stylish kitchen boasts a range of sleek wall-mounted and floor-standing units, complementary worktops, and a full suite of integrated appliances.

The luxurious principal bedroom features a dedicated dressing area, a Juliet balcony that bathes the room in natural light, and a beautifully appointed en-suite bathroom with a separate shower enclosure. Bedroom two is generously sized with fitted wardrobes and its own Juliet balcony. A contemporary guest shower room, a utility cupboard and additional storage cupboards complete the internal accommodation.

Further benefits include gas central heating, double glazing, and one allocated parking space. A standout feature of the Five South development is the beautifully maintained landscaped gardens, offering a peaceful and picturesque environment.

Giffnock remains one of Glasgow’s most sought-after residential suburbs. The area boasts outstanding public transport options with nearby bus routes and two train stations—Giffnock and Whitecraigs—as well as convenient motorway access (M77/M8), ensuring easy travel to Glasgow city centre and beyond. Residents can enjoy an array of independent shops, cafes, and restaurants just a short stroll away, along with fantastic leisure facilities including David Lloyd and Nuffield Health clubs, Whitecraigs Golf Club, local tennis clubs, and the award-winning Rouken Glen Park.

More Details

Council Tax: F
EPC: B
Tenure: Freehold

Request More Details

Erica McFarlane

Erica McFarlane

Senior Sales Negotiator
Roland Brownlee

Roland Brownlee

Mortgage & Protection Advisor
Mortgage Calculator
Monthly payments
Please set an interest rate.

Your home may be repossessed if you do not keep up repayments on your mortgage.

There may be a fee for mortgage advice. The actual amount you pay will depend upon your circumstances. The fee is up to 1% but a typical fee is 0.3% of the amount borrowed.

Tax Calculator
LBTT calculator for properties purchased in Scotland. Stamp Duty calculator for properties purchased in England.
Land & buildings transaction tax (LBTT)
= £0
New build house with stone and timber cladding

Looking To Sell Or Let?

Rettie is one of the most trusted and well-respected names in property. Our unrivalled market knowledge helps people from around the world buy, sell, let and develop property in Scotland and the North East of England - from city apartments and rural cottages to large townhouses and prime country homes, farms and estates. We deal with some of the most prestigious properties on the market, but provide the same exceptional standards of service and value for money to all our clients.