The Threshing Mill, Wester Essenside, Ashkirk, Selkirk, TD7 4PG
Offers Over £465,000
Semi Detached House
4 Bedrooms
3 Bathrooms
4 Reception Rooms
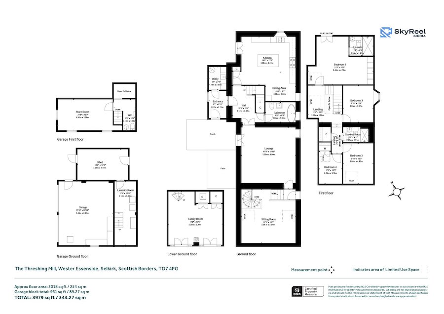
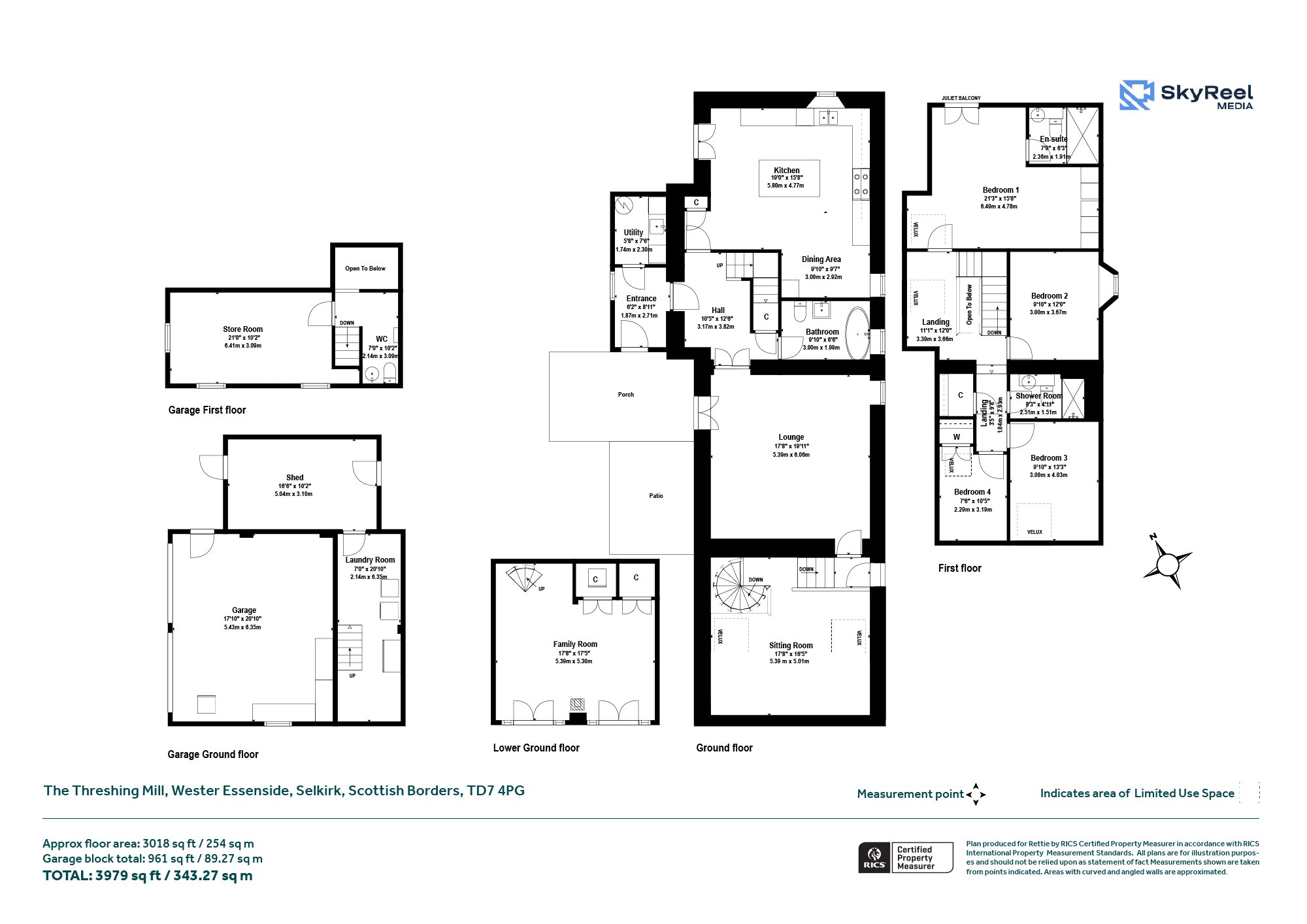
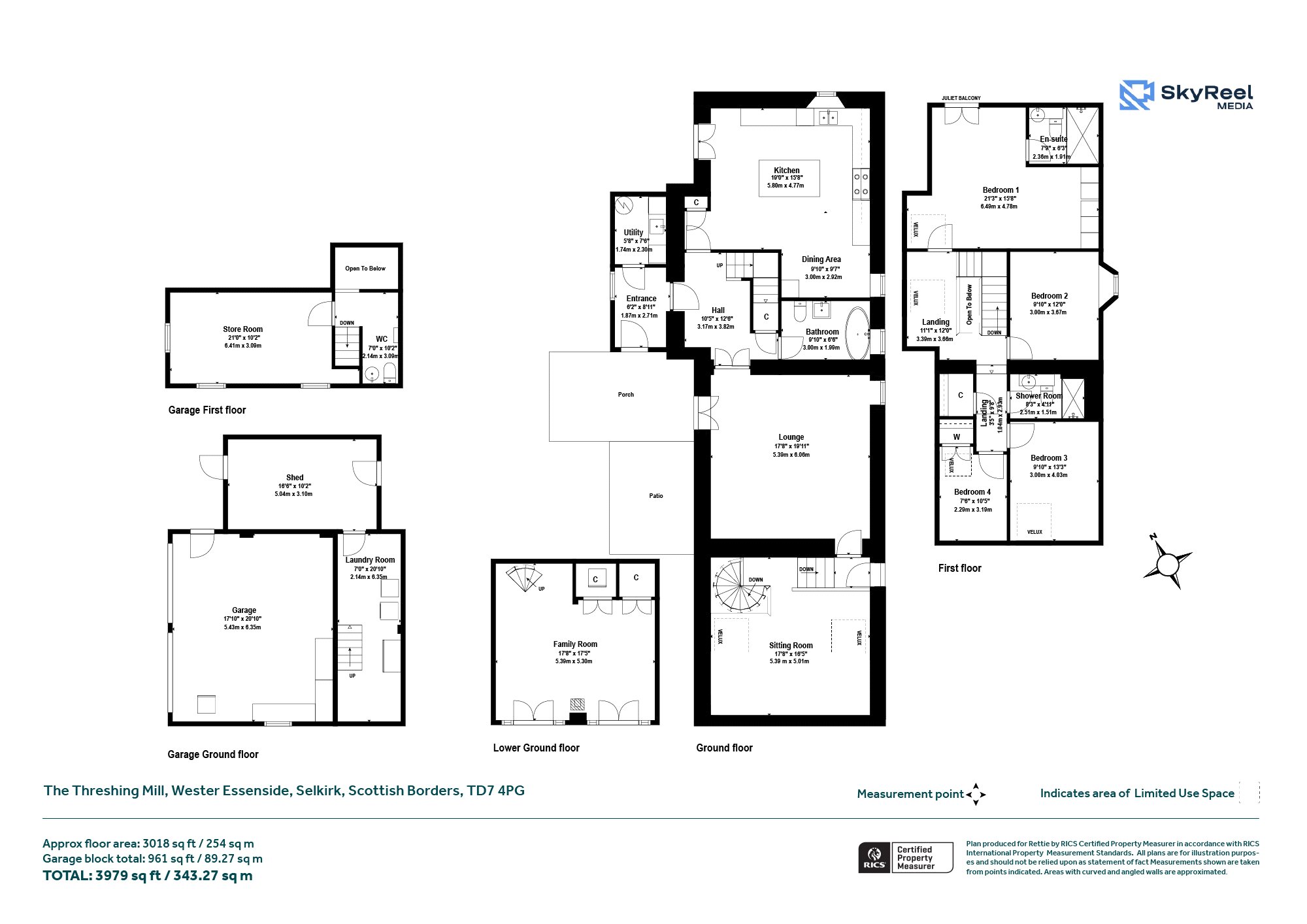
3,018 sq.ft
Private Garden
Double Garage
Off Street Parking
Property Description
The Threshing Mill is an utterly charming four-bedroom steading conversion set in the charming hamlet of Wester Essenside just 3 miles from the village of Ashkirk. The property has been sensitively renovated and upgraded by the current owners to offer immaculate interiors throughout whilst retaining many of the charming original features.
The ground floor comprises a generous dining kitchen with capacious storage, large island and shaker style cabinetry, the main reception hall benefits from a downstairs bathroom with rolltop bathtub and WC, following on there is a generous sitting room with exposed beams and french doors leading to a sunny cobbled courtyard perfect for al-fresco dining or sunbathing. Completing the ground floor is a large mezzanine study which could easily double as a further reception room or a nursery, a spiral staircase leads to a lower public room currently set up as a cosy snug with wood burning stove and double french doors out to the front of the property.
The first floor boasts four well-appointed double bedrooms – the principal benefitting from a large ensuite bathroom with walk-in shower. Completing the first floor is a further shower room serving the other bedrooms.
Externally the property sits within mature gardens that are mostly laid to lawn, a charming stream runs through the garden attracting an array of wildlife including kingfishers, otters and other songbirds. A gravel driveway has ample parking for several vehicles. The double garage offers excellent external storage and benefits from power and a first floor with ample opportunities for conversion into external accommodation or home office space.
The property is ideally placed only a short drive from the A7 connecting the property to the central Borders with ease. There are ample amenities on offer in the nearby towns of Selkirk & Hawick along with both primary and secondary schooling options. In all the property offer incoming purchasers an excellent opportunity to obtain a truly turn-key property is a peaceful rural location.
Accommodation Comprises
Ground Floor
Vestibule, hallway, sitting room, dining kitchen, family room, snug, bathroom, utility room.
First Floor
Principal bedroom with en-suite, three further double bedrooms, showerroom.
Externally the property benefits from a cobbled courtyard, wraparound gardens, large double garage with power and automatic roller doors with floored first floor and a separate single garage store.
More Details
EPC: D
Council Tax Band: E
Tenure: Freehold
Viewing by appointment via Rettie & Co
Your home may be repossessed if you do not keep up repayments on your mortgage. There may be a fee for mortgage advice. The actual amount you pay will depend upon your circumstances.
Similar Properties
Looking To Sell Or Let?
Rettie is one of the most trusted and well-respected names in property. Our unrivalled market knowledge helps people from around the world buy, sell, let and develop property in Scotland and the North East of England - from city apartments and rural cottages to large townhouses and prime country homes, farms and estates. We deal with some of the most prestigious properties on the market, but provide the same exceptional standards of service and value for money to all our clients.











































































