Maplehurst, 42 Abbotsford Road, Galashiels, Scottish Borders, TD1 3HR
Property Description
Maplehurst is an outstanding B-listed Edwardian, Arts & Crafts home set within circa 1.5 acres of mature landscaped gardens, located on the edge of Galashiels in the heart of the Scottish Borders.
Key Features
- Approx. 6413 sq ft of versatile family accommodation.
- Large mature private gardens, with orchard, terrace, croquet lawn, and several specimen trees and shrubbery.
- Eight luxurious and well-appointed double bedrooms with en-suite bathrooms.
- Three stunning receptions rooms that flow into each other from the central tapestry sitting room.
- Situated in a generous plot, offering peace and privacy.
- Immaculate presentation and excellent decorative order throughout with a wealth of ornate Arts & Crafts features.
- Canadian influences throughout installed by the architect showcasing an original tapestry and stained glass windows in the sitting room.
- Desirable location in Galashiels, offering easy connections to the popular town of Melrose, Edinburgh and the wider Scottish Borders.
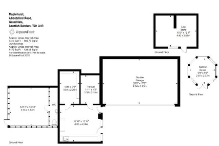
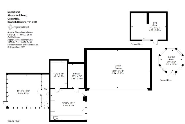
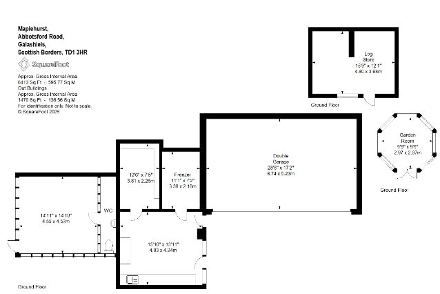
- Large triple garage with kitchen annexe, ideal for a home-office, gym, workshop of fully self-contained accommodation.
- Private tarmac driveway and gravel sweep to the front of the house.
Nestled within a haven of mature landscaped gardens, Maplehurst is a one-of-a-kind property offering purchasers the chance to own a truly unique house in immaculate condition, within easy walking distance of Galashiels centre and a short drive to Melrose.
This Edwardian property effortlessly melds traditional period detail with modern fixtures and decorative finishes throughout. The generous outdoor terraces and large reception rooms make it a wonderful house to entertain and enjoy the flexible accommodation.
Summary Of Accommodation
Ground Floor:
Hallway, Sitting Room, Drawing Room, Games Room,
Dining Room with French Doors, Kitchen, Utility, WC.
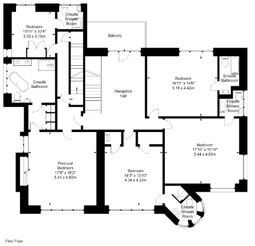
First Floor:
Principal Bedroom with En-Suite Bathroom and Walk-In Closet, Four Generous Double Bedrooms with En-Suite Bathrooms, Reading Area, Balcony.
Second Floor:
Three Large Bedrooms with En-Suite Bathrooms, Sitting Area.
Basement:
Utility Room, Plant/Boiler Room, Biomass Hopper, Storage Room, Wine Cellar.
Externally the house benefits from a large triple garage and a self-contained unit with kitchen, walk-in freezer and store.
The garden boasts a large greenhouse, log-store, garden store and wooden summerhouse.
More Details
EPC: F
Tenure: Freehold
Viewing by Appointment via Rettie Borders.
Your home may be repossessed if you do not keep up repayments on your mortgage.
There may be a fee for mortgage advice. The actual amount you pay will depend upon your circumstances. The fee is up to 1% but a typical fee is 0.3% of the amount borrowed.
Similar Properties
Looking To Sell Or Let?
Rettie is one of the most trusted and well-respected names in property. Our unrivalled market knowledge helps people from around the world buy, sell, let and develop property in Scotland and the North East of England - from city apartments and rural cottages to large townhouses and prime country homes, farms and estates. We deal with some of the most prestigious properties on the market, but provide the same exceptional standards of service and value for money to all our clients.
