Crimond, Friarshaugh, Gattonside, Melrose, Scottish Borders, TD6 9LT
Offers Over £495,000
Detached House
4 Bedrooms
2 Bathrooms
1 Reception Room
1,592 sq.ft
Private Garden
Garage
Off Street Parking
Property Description
Crimond is a charming and rarely available four-bedroom bungalow with outstanding views, set within a peaceful collection of properties just outside the popular village of Gattonside. The property has been meticulously renovated and refurbished by the current owners to the highest standard offering incoming purchasers an excellent opportunity to obtain a spacious home in a second to none location.
The house boasts some of the finest views of the Eildon Hills from several aspects and is bathed in light due to its southern facing aspect. Set within walking distance of the bustling town of Melrose, Crimond is ideally placed for someone seeking peaceful living with easy access to an array of local amenities and schooling options.
Highlights Include
- Fully re-wired and re-plumbed throughout.
- Remote & voice-controlled blinds throughout the entire house.
- Sleek modern kitchen with integrated appliances, boiling water tap, wine fridge, dual oven with warming drawer, AEG induction hob.
- NEST heating control system.
- Principal bedroom with capacious built-in wardrobes.
- Three large double bedrooms with ample space for bedroom furniture.
- Two immaculate and well-appointed bathrooms one with shower over bathtub and other with large walk-in shower.
- Fully landscaped gardens with laid-lawn, decked seating area, orchard, herbaceous border and beech hedging.
- Two large balcony terraces with space to enjoy the sunshine and countryside views.
- Large single garage with power, lighting and up & over door.
- Ample tarmac driveway parking for several vehicles.
- Easy access to the River Tweed for walking or permitted fly-fishing.
Gattonside sits just one mile from the busy market town of Melrose and can be reached on foot in under 25 minutes. There are two local restaurants – The Hoebridge & Seasons – whilst a wider array of independent retailers/restaurants and shops can be found on Melrose High Street. Gattonside benefits from a bus service for pupils of Earlston High School and is within walking distance of Melrose Primary School and St Mary’s Preparatory.
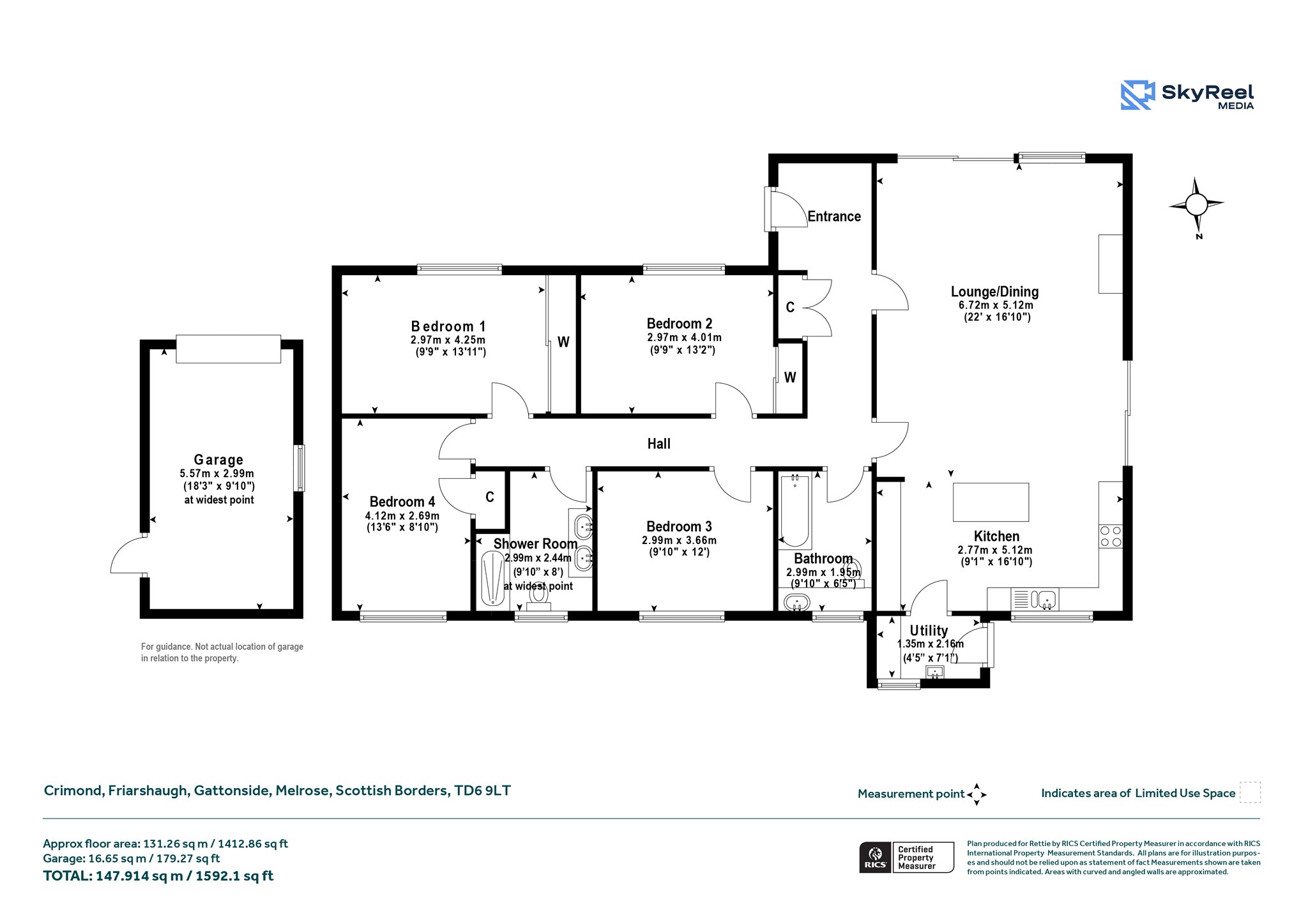
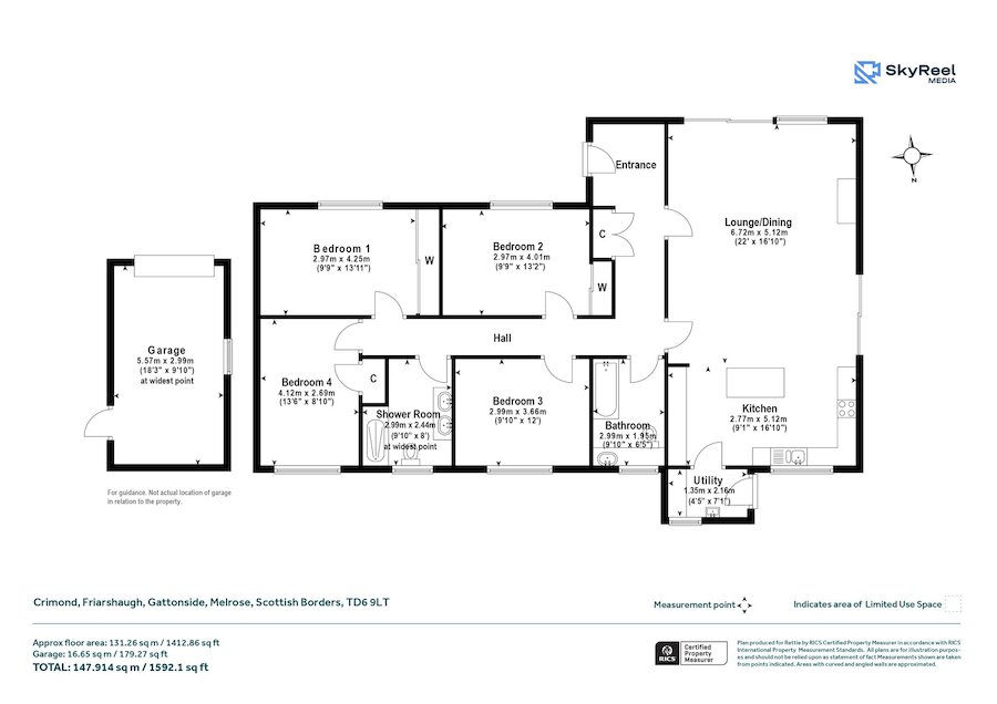
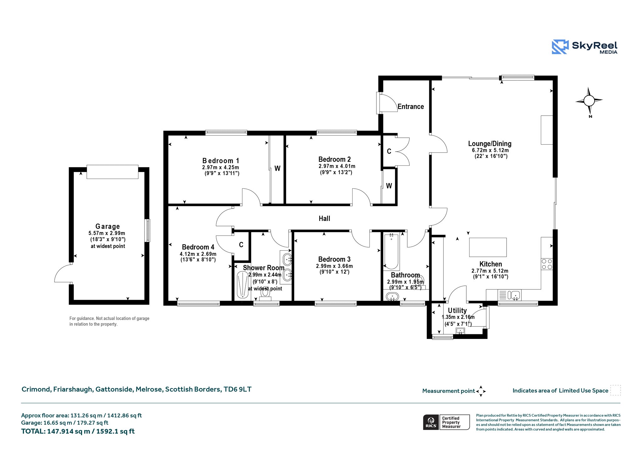
Accommodation Comprises
Entrance hallway, open plan living/kitchen/dining room with two sets of sliding doors, utility room, principal bedroom, three further double bedrooms, two generous bathrooms and deep hallway storage cupboard.
Externally the property boasts ample driveway parking for several vehicles, a large single garage with up & over door and power, landscaped wraparound gardens with several seating areas.
More Details
EPC: B
CT Band: G
Tenure: Freehold
Your home may be repossessed if you do not keep up repayments on your mortgage. There may be a fee for mortgage advice. The actual amount you pay will depend upon your circumstances.
Similar Properties
Looking To Sell Or Let?
Rettie is one of the most trusted and well-respected names in property. Our unrivalled market knowledge helps people from around the world buy, sell, let and develop property in Scotland and the North East of England - from city apartments and rural cottages to large townhouses and prime country homes, farms and estates. We deal with some of the most prestigious properties on the market, but provide the same exceptional standards of service and value for money to all our clients.
