Nether Soonhope House, Peebles, Scottish Borders, EH45 8BJ

Scottish Borders, EH45 8BJ
Pin View on map

Offers Over £1,050,000

House

Detached House

Bed

6 Bedrooms

Bathroom

3 Bathrooms

Reception

4 Reception Rooms

Size

5,384 sq.ft

Plot

About 2.76 Acres

Tree

Private Garden

Garage

Double Garage

Parking

Off Street Parking

Telephone

Property Description

A striking late Victorian mansion house, set within just over 2.5 acres and complemented by its own gate lodge – Nether Soonhope House is a trophy house of Peebles with outstanding views of the Tweed Valley hills set within an excellent location just a short-walk from the bustling centre of this much sought-after Border town.

Approached from a tarmac driveway leading to a wide gravel sweep the property sits in a generous enclosed plot of close to three acres. Owned by the current family since the 1970s the property is presented to market in wonderful condition having been loving cared for and conserved over the years. The property is rich in key period features throughout melding alongside carefully thought-out modern upgrades to enhance and improve energy efficiency.

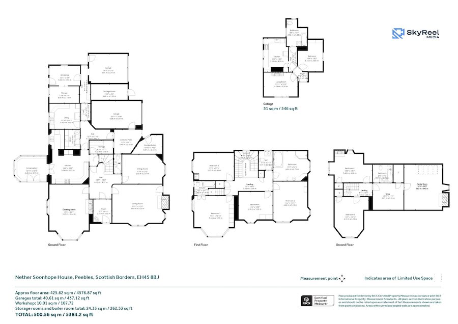
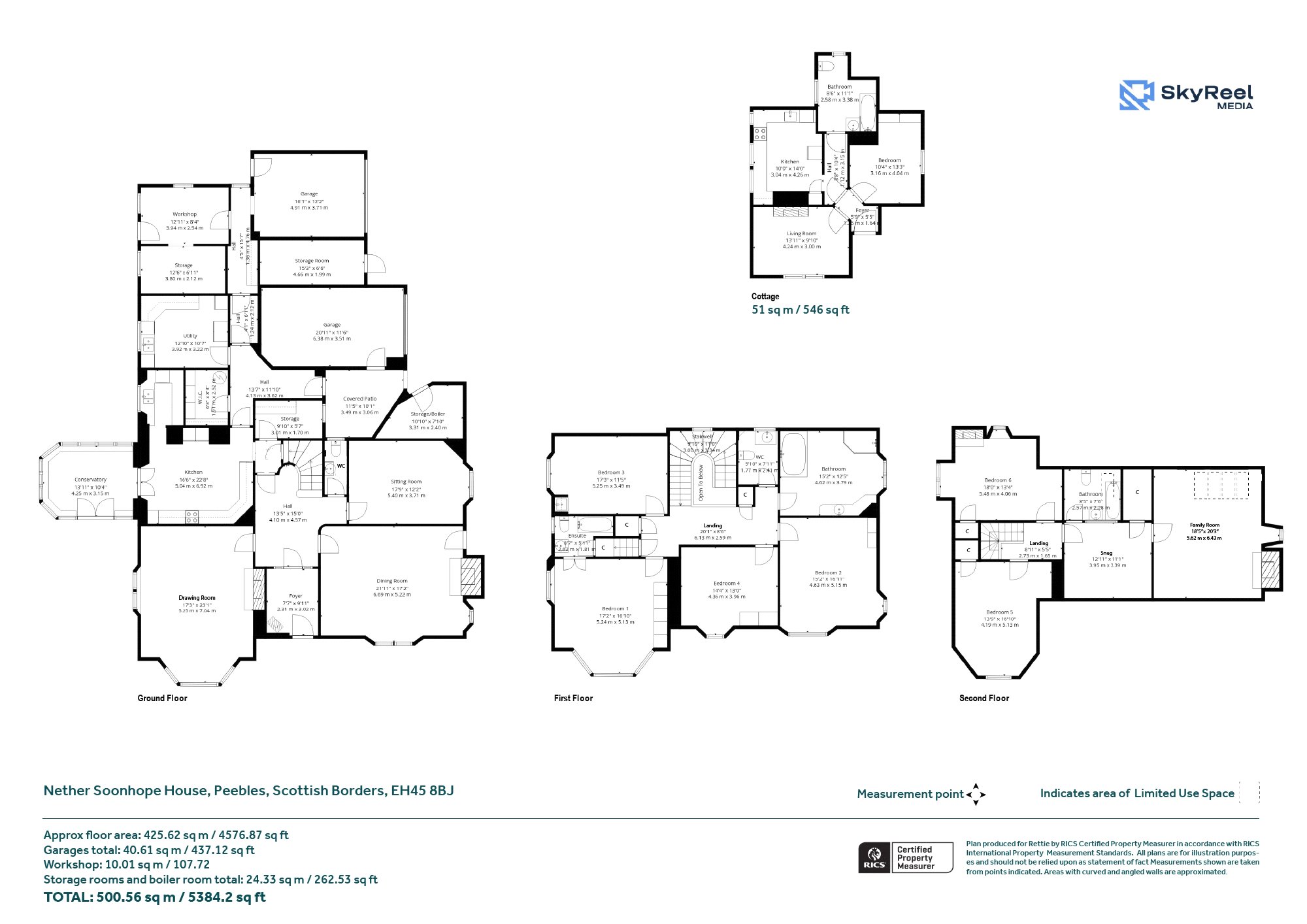
The main house boasts six large bedrooms over three principal floors. Entered from a large vestibule into a wide entrance hall there are three spacious reception rooms each with garden views, a generous dining kitchen with conservatory and a guest WC. The house offers flexible family living with classical proportions, high ceilings, ornate cornicing and two open fireplaces. Completing the ground floor are a number of ancillary rooms providing capacious storage, garaging and a laundry room.

The first floor offers four generous double bedrooms – the principal boasting an ensuite bathroom – each with leafy views over the mature wraparound gardens. Completing the first floor is a large family bathroom with bath and shower, separate WC and ample storage closets.

The second floor comprises two good sized double bedrooms, bathroom and an extremely useful reception room which could easily serve as a seventh bedroom space if required.

Externally the property is bathed in sunlight due to its south-facing position, the gardens are mostly laid to lawn with ample specimen trees, rhododendrons and deep herbaceous borders – the remnants of a large vegetable garden are enclosed within high yew & beech hedging offering incoming, green-fingered purchasers a wonderful chance to cultivate and grow produce. There are two single garages, an array of outbuildings and a glass greenhouse too.

The property also benefits from a cosy one-bedroom lodge by the entrance gates; the lodge serves as excellent additional accommodation for guests or could be utilised as a useful buy-to-let to generate income.

Accommodation Comprises

Ground Floor

Vestibule, Reception Hallway, Drawing Room, Dining Room, Sitting Room, Kitchen, Conservatory, Utility, WC, Pantry.

First Floor

Principal bedroom with en-suite, three large double bedrooms, bathroom, WC, linen closet.

Second Floor

Two double bedrooms, Bathroom, Large Reception Room/Bedroom 7.

Externally - two large garages, various outhouses, greenhouse with potting shed.

Nether Soonhope Lodge

Hallway, Sitting Room, Kitchen, Bathroom, Bedroom.

Cottage Tax Band - B
House Tax band - H

More Details

Situation: Private Garden
Council Tax Band: H
Tenure: Freehold

Request More Details

Fraser Wardhaugh

Fraser Wardhaugh

Senior Sales Negotiator
Hugh Rettie

Hugh Rettie

Associate Director
Paul Banyard Cert CII (MP)

Paul Banyard Cert CII (MP)

Mortgage & Protection Advisor
Mortgage Calculator
Monthly payments
Please set an interest rate.

Your home may be repossessed if you do not keep up repayments on your mortgage.

There may be a fee for mortgage advice. The actual amount you pay will depend upon your circumstances. The fee is up to 1% but a typical fee is 0.3% of the amount borrowed.

Tax Calculator
LBTT calculator for properties purchased in Scotland. Stamp Duty calculator for properties purchased in England.
Land & buildings transaction tax (LBTT)
= £0
New build house with stone and timber cladding

Looking To Sell Or Let?

Rettie is one of the most trusted and well-respected names in property. Our unrivalled market knowledge helps people from around the world buy, sell, let and develop property in Scotland and the North East of England - from city apartments and rural cottages to large townhouses and prime country homes, farms and estates. We deal with some of the most prestigious properties on the market, but provide the same exceptional standards of service and value for money to all our clients.