The Firs, Newtown St. Boswells, Melrose, Scottish Borders, TD6 0RT

Melrose, Scottish Borders, TD6 0RT
Sold
Pin View on map

Offers Over £360,000

House

Detached House

Bed

3 Bedrooms

Bathroom

1 Bathroom

Reception

4 Reception Rooms

Size

1,937 sq.ft

Tree

Private Garden

Parking

Off Street Parking

Telephone

Property Description

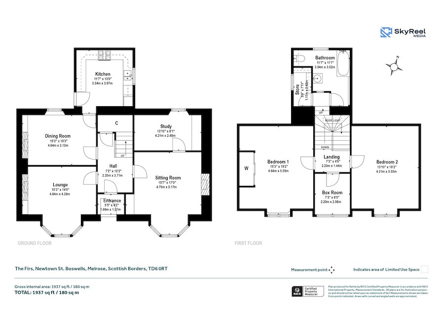
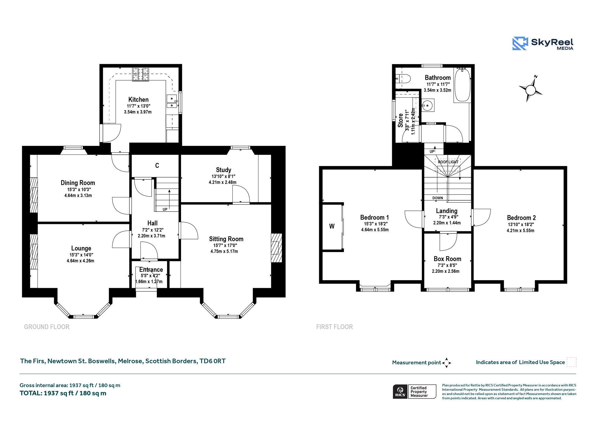
The Firs is a charming, three-bedroom detached villa sitting within a generous plot between Eildon & Newtown St Boswells. Arranged over two floors the property offers a wealth of flexible living space with four reception rooms, a large breakfasting kitchen, two large double bedrooms and a third single bedroom. Completing the accommodation is a good-sized family bathroom with shower over bathtub and a capacious storeroom.

Externally the property sits in an enclosed plot with wraparound gardens. Mostly laid to the lawn the property has the added benefits of a flag-stoned patio to the rear, gravel driveway and off-street parking for several vehicles.

The Firs is ideally placed with local amenities on hand in Newtown St Boswells. The popular town of Melrose is a short drive offering a wider range of local shops and independent retailers. The property falls into the catchment for the sought after Earlston High School with a bus service for pupils, there is private schooling available at St. Mary's in Melrose. There is a wealth of green space on hand with the Eildon Hills only a short walk from the property, St Cuthbert’s Way can also be easily picked up from Newtown St Boswells leading down to the banks of the famous River Tweed.

Accommodation Comprises

Ground Floor

Vestibule, Hallway, Sitting Room, Dining Room, Lounge, Study, Breakfasting Kitchen.

First Floor

Two generous double bedrooms, third single bedroom, storeroom, bathroom.

More Details

EPC: D
Council Tax Band: E
Tenure: Freehold

Viewing by appointment via Rettie Borders.

Contact Us

Fraser Wardhaugh

Fraser Wardhaugh

Senior Sales Negotiator
Hugh Rettie

Hugh Rettie

Associate Director
Paul Banyard Cert CII (MP)

Paul Banyard Cert CII (MP)

Mortgage & Protection Advisor
Mortgage Calculator
Monthly payments
Please set an interest rate.

Your home may be repossessed if you do not keep up repayments on your mortgage.

There may be a fee for mortgage advice. The actual amount you pay will depend upon your circumstances. The fee is up to 1% but a typical fee is 0.3% of the amount borrowed.

Tax Calculator
LBTT calculator for properties purchased in Scotland. Stamp Duty calculator for properties purchased in England.
Land & buildings transaction tax (LBTT)
= £0
New build house with stone and timber cladding

Looking To Sell Or Let?

Rettie is one of the most trusted and well-respected names in property. Our unrivalled market knowledge helps people from around the world buy, sell, let and develop property in Scotland and the North East of England - from city apartments and rural cottages to large townhouses and prime country homes, farms and estates. We deal with some of the most prestigious properties on the market, but provide the same exceptional standards of service and value for money to all our clients.