Property Description
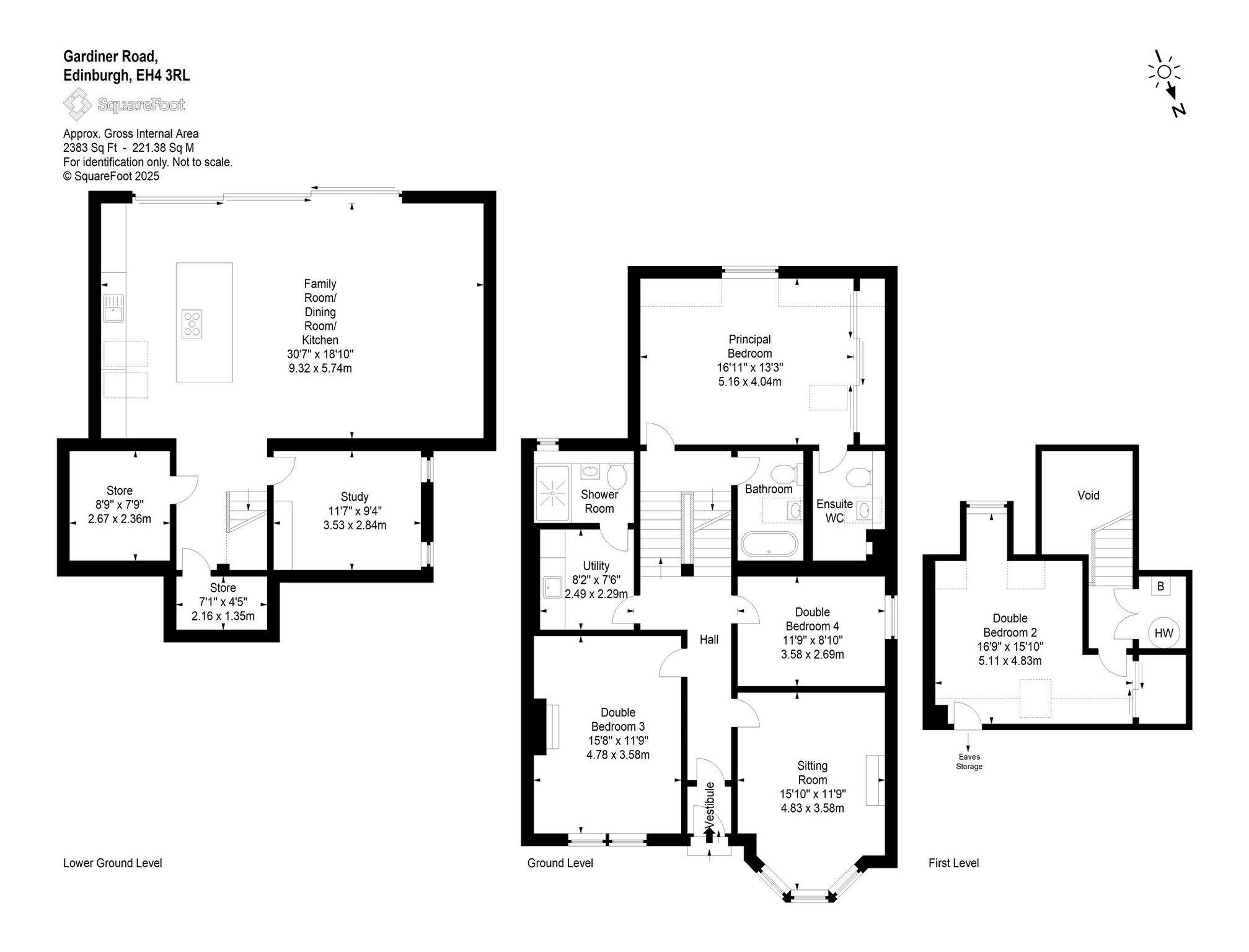
Situated on a leafy residential street in the much sought-after neighbourhood of Blackhall, this is a simply exquisite four-bedroom semi- detached bungalow, which has been extended to the rear, ideally suited for family living. Situated on a spacious corner plot, this elegant home offers spacious accommodation with four generously sized bedrooms, sitting room, two bathrooms and en suite WC in the principal bedroom.
Of particular mention is the wonderfully designed open plan family room/dining room and fully equipped kitchen that benefits from sliding doors opening directly onto the rear garden offering al fresco dining and endless entertaining opportunities. Externally, the property benefits from an abundance of outdoor space including a large driveway providing off street parking for multiple vehicles, and enclosed landscaped rear garden largely laid to lawn, with patio area.
This is an excellent opportunity to acquire a wonderful home that would suit families who wish to live in this coveted location, close to several well regarded schools, a children’s play park, tennis and bowling clubs and Corstorphine Hill
Gardiner Road is situated in Blackhall, a popular and peaceful residential area which lies a few miles to the northwest of Edinburgh’s city centre. The area is well served by a range of excellent local amenities including Sainsbury’s and Marks & Spencer supermarkets at Craigleith Retail Park; independent shops at Blackhall and Davidson’s Mains; a variety of recreational facilities including a Library and Lawn Tennis Club and numerous golf courses including the Royal Burgess and Bruntsfield Links. Murrayfield’s famous international rugby stadium is within walking distance, as are Edinburgh’s well-regarded Modern Art Galleries.
Gardiner Road boasts superb access to Edinburgh’s bus and tram networks; Edinburgh International Airport; Queensferry Crossing; the City Bypass and central Scotland’s motorway network. The property is just a short walk from Ravelston Park and a short distance from semi-rural walkways and cycle paths such as Corstorphine Hill Nature Reserve, Cammo Estate, Cramond seafront and the River Almond.
The area is very popular with families, largely due to its selection of well-regarded schools. 43 Gardiner Road falls into the catchment area for Blackhall Primary School and The Royal High School in the state sector; with private schooling options including Erskine Stewart’s Melville Schools; Fettes College and St George’s School for Girls in close proximity.
More Details
Tenure - Freehold
Council Tax - F
EPC - C
Viewing by appointment.
Your home may be repossessed if you do not keep up repayments on your mortgage. There may be a fee for mortgage advice. The actual amount you pay will depend upon your circumstances.
Similar Properties
Looking To Sell Or Let?
Rettie is one of the most trusted and well-respected names in property. Our unrivalled market knowledge helps people from around the world buy, sell, let and develop property in Scotland and the North East of England - from city apartments and rural cottages to large townhouses and prime country homes, farms and estates. We deal with some of the most prestigious properties on the market, but provide the same exceptional standards of service and value for money to all our clients.
