Property Description
Occupying the top two floors of a distinguished Georgian A-Listed William Playfair townhouse, 2f 11 Royal Circus presents a fantastic opportunity to acquire a five-bedroom duplex apartment on one of the New Town’s most prestigious and highly regarded crescents. This much-loved family home was once the home of Scottish artist Stanley Cursiter and his wife Phyllis Eda Hourston, during the 1920s - he created several works depicting its interior, including Apple Green, which features his wife, musician Phyllis Eda Hourston, highlighting their creative partnership.
Approached via an attractive shared entrance hall, the property unfolds into a series of beautifully proportioned rooms, enriched with refined period detail including working shutters, varnished original timber floors, Edinburgh Presses and exquisite fireplaces adorned with Delft tiles. The remarkably light and expansive dining kitchen, complete with a generous walk-in pantry, forms the heart of the home, while the grand sitting room and separate family room (which can be used as a fifth bedroom) offer outstanding formal and informal living spaces. A further elegant dining room provides exceptional versatility, well suited to entertaining on a large scale or creating an additional reception area. A three-piece suite bathroom completes the entry level.
The upper floor hosts an impressive arrangement of four principal bedrooms, each notable for their scale, natural light and tranquil outlooks. There is a generously proportioned principal bedroom with walk-in wardrobe/store cupboard, and two further bedrooms provide excellent flexibility for family life, guests or home working. A contemporary shower room complements the space, and the property benefits from outstanding storage throughout, including floored attic space accessed from the large fourth bedroom / studio room (currently utilised as an additional reception room), an exceptional advantage in a New Town home. Together, these upper rooms create a harmonious balance of elegance, practicality and comfort, completing a residence of rare distinction in one of Edinburgh’s most celebrated addresses.
The unspoilt, quiet period crescent overlooks the meticulously maintained private Royal Circus Gardens and benefits from its close proximity to both the city centre and the vibrant and ever popular community of Stockbridge, renowned for its bustling village atmosphere, offering the very best of city centre living.
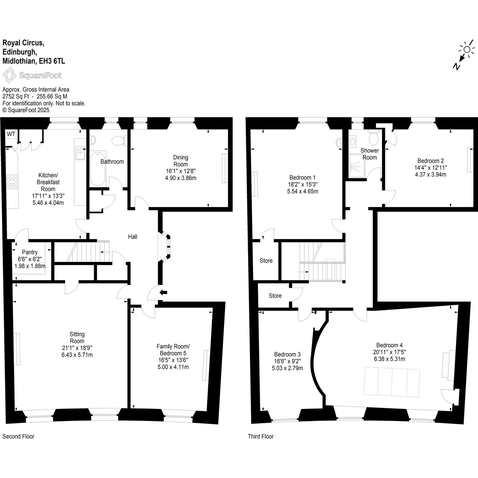
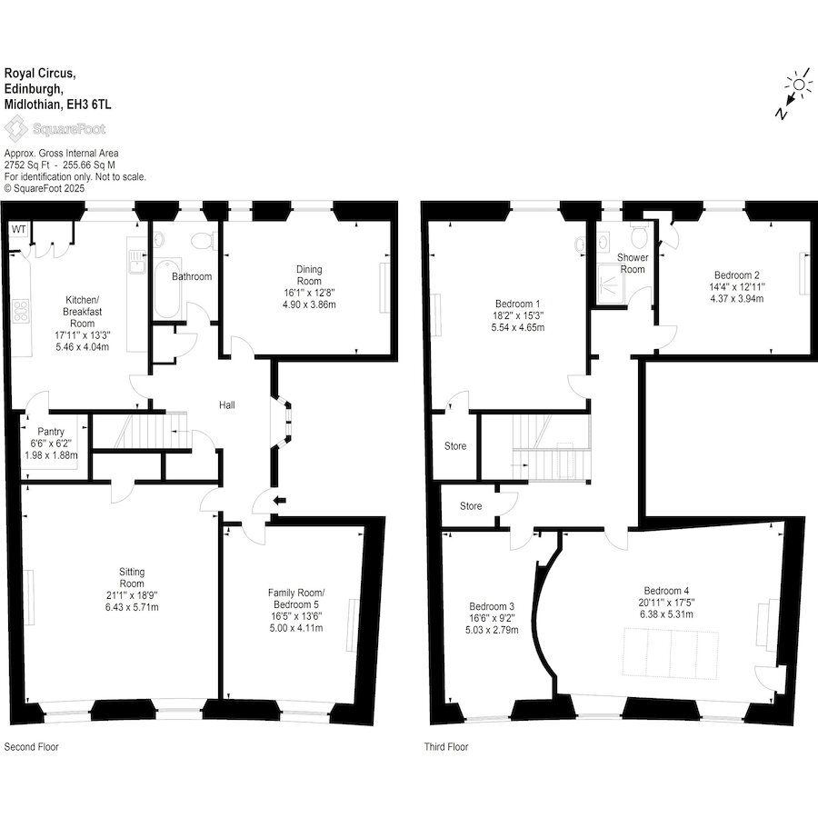
Summary Of Accommodation
Second Floor
Hall, Sitting Room, Kitchen/Breakfast Room & Pantry, Dining Room Family Room/Bedroom Five, Bathroom
Third Floor
Principal Bedroom with walk-in Store/Wardrobe, Three Further Bedrooms, Shower Room, Upper Hallway, Linen Store Cupboard
External
Residents’ On Street / Metered Parking
Access to the private well-maintained Royal Circus Gardens subject to a modest annual fee.
More Details
EPC: D
Council Tax Band: G
Tenure: Freehold
Viewing by appointment.
Your home may be repossessed if you do not keep up repayments on your mortgage.
There may be a fee for mortgage advice. The actual amount you pay will depend upon your circumstances. The fee is up to 1% but a typical fee is 0.3% of the amount borrowed.
Similar Properties
Looking To Sell Or Let?
Rettie is one of the most trusted and well-respected names in property. Our unrivalled market knowledge helps people from around the world buy, sell, let and develop property in Scotland and the North East of England - from city apartments and rural cottages to large townhouses and prime country homes, farms and estates. We deal with some of the most prestigious properties on the market, but provide the same exceptional standards of service and value for money to all our clients.
