14/1 Moncrieff Terrace, Marchmont, Edinburgh, EH9 1NA

Marchmont, Edinburgh, EH9 1NA
Under Offer
Pin View on map

Offers Over £155,000

House

Ground Floor Apartment

Bed

1 Bedroom

Bathroom

1 Bathroom

Reception

1 Reception Room

Size

225 sq.ft

Tree

Communal Garden

Parking

On Street/Permit

Telephone

Property Description

*Investment Opportunity – Prime South Edinburgh 1 Bed Flat with 7%+ Yield Potential*

An excellent opportunity to acquire a compact and well-located one-bedroom ground floor flat in the heart of the ever-popular Marchmont district, just moments from The Meadows. Perfectly positioned for city living, this charming property will appeal to first-time buyers, investors, or those seeking a convenient Edinburgh pied-à-terre.

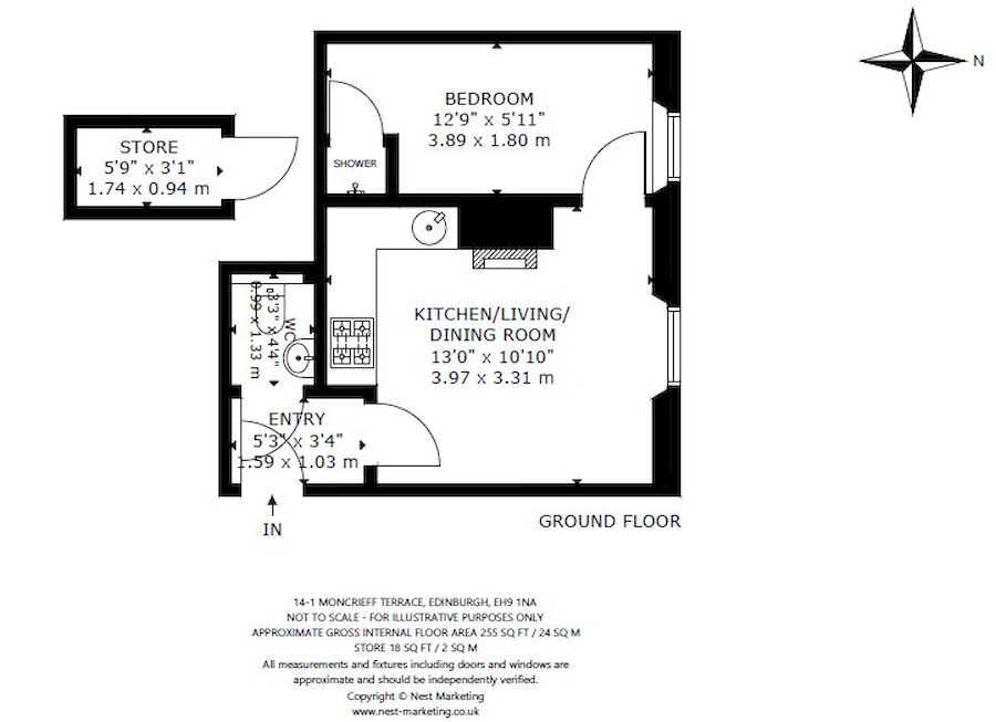
The accommodations thoughtful laid out maximises space, entered though a vestibule directly into a bright open-plan kitchen/living/dining room with dual aspect, providing a comfortable and sociable main living area. The kitchen is neatly arranged to one side, allowing for clearly defined cooking and living zones. Positioned to the rear, the bedroom offers a cosy and private sleeping space. A shower room is conveniently located off the main living area, completing the internal accommodation.

Externally, the property boasts a generously sized and peaceful shared garden, a welcomed relaxing or entertaining space. An additional separate store provides valuable dry, secure storage—ideal for bicycles or outdoor equipment.

Summary of Accommodation

Entrance Vestibule, Kitchen/Living/Dining Room, Bedroom, Shower room, W/C
Externally: Storage, Shared Rear Garden

Location

Positioned in the heart of Marchmont, one of Edinburgh’s most sought-after residential areas, and moments away from The Meadows. The property is perfectly placed to take advantage of the expansive green space, scenic walking and cycling routes, and vibrant community atmosphere. Edinburgh University is within easy walking distance, as is the city centre, making this an ideal location for students, professionals, and investors alike. Marchmont offers an excellent selection of independent cafés, restaurants, convenience stores, and specialist shops, while nearby Bruntsfield provides further amenities including boutiques, bars, and a cinema. Regular bus services offer swift connections across the city, and Waverley Station is readily accessible.

More Details

EPC: E
Council Tax: B
Tenure: Freehold

Viewing by appointment via Rettie&Co

Contact Us

James Ward

James Ward

Sales Consultant
Laura Mathieson

Laura Mathieson

Associate Director
Bob Duncan Cert CII (MP)

Bob Duncan Cert CII (MP)

Managing Director
Mortgage Calculator
Monthly payments
Please set an interest rate.

Your home may be repossessed if you do not keep up repayments on your mortgage.

There may be a fee for mortgage advice. The actual amount you pay will depend upon your circumstances. The fee is up to 1% but a typical fee is 0.3% of the amount borrowed.

Tax Calculator
LBTT calculator for properties purchased in Scotland. Stamp Duty calculator for properties purchased in England.
Land & buildings transaction tax (LBTT)
= £0
New build house with stone and timber cladding

Looking To Sell Or Let?

Rettie is one of the most trusted and well-respected names in property. Our unrivalled market knowledge helps people from around the world buy, sell, let and develop property in Scotland and the North East of England - from city apartments and rural cottages to large townhouses and prime country homes, farms and estates. We deal with some of the most prestigious properties on the market, but provide the same exceptional standards of service and value for money to all our clients.