Property Description
Superbly situated in one of Inverleith’s most sought-after locations, this beautifully presented 1st floor Drawing Room Apartment is set within a Victorian Townhouse, and offers stylish space and stunning uninterrupted views across Warriston Playing Fields, to Edinburgh Castle, St Giles Cathedral, Calton Hill, Arthur’s Seat and beyond.
Immaculately maintained throughout, this Period property features ornate cornicing, working shutters, feature original fireplace, and cast iron period radiators throughout. The bay window in Drawing room offers panoramic, uninterrupted views across Edinburgh.
The well-appointed, bright, and light south-facing kitchen, with views to the Castle, offers great storage and workspace, Villeroy Bosch Belfast Sink, walls lined with Craftsman-created wooden display storage shelves, and Parquet flooring.
There are two spacious double bedrooms, with a quiet, leafy and peaceful outlook to gardens at the rear. A stylish Contemporary Shower Room, with an architectural feature Cupola, gives much light, space, and style.
Additional walk-in storage cupboards are well-positioned off the hallway. Parquet flooring extends to the Hall, with contemporary Crucial Trading sisal flooring on the stairs.
The Apartment forms part of a delightful Victorian townhouse benefitting from the peace and charm of Eildon Street, bordering the Royal Botanic Gardens, Fettes College, and Inverleith Park. A location second to none in the City.
A property in this location with uninterrupted views to the Castle and all Edinburgh's iconic heritage and cultural landmarks is rarely available., making this a standout home in an enviable location.
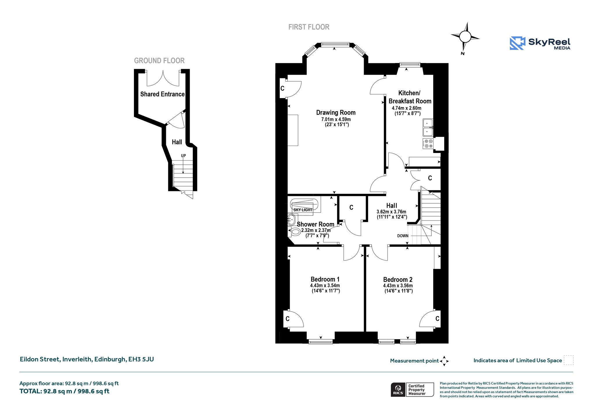
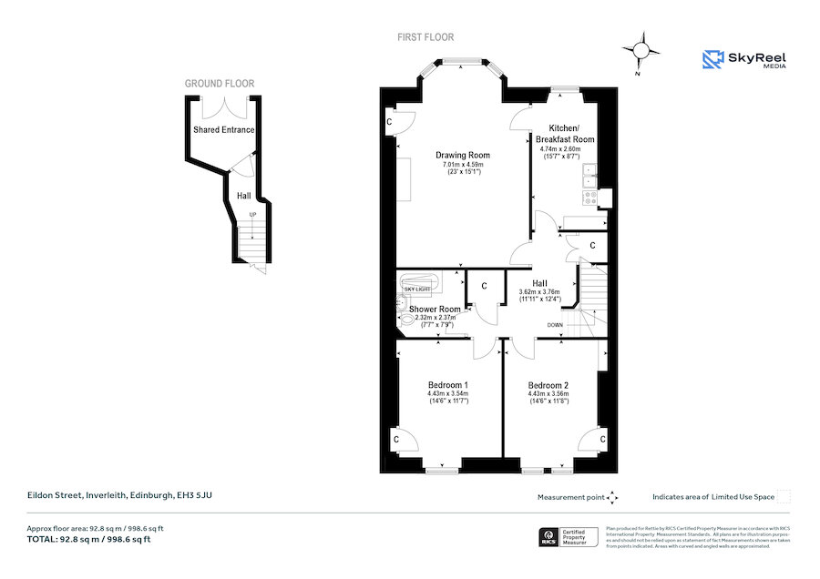
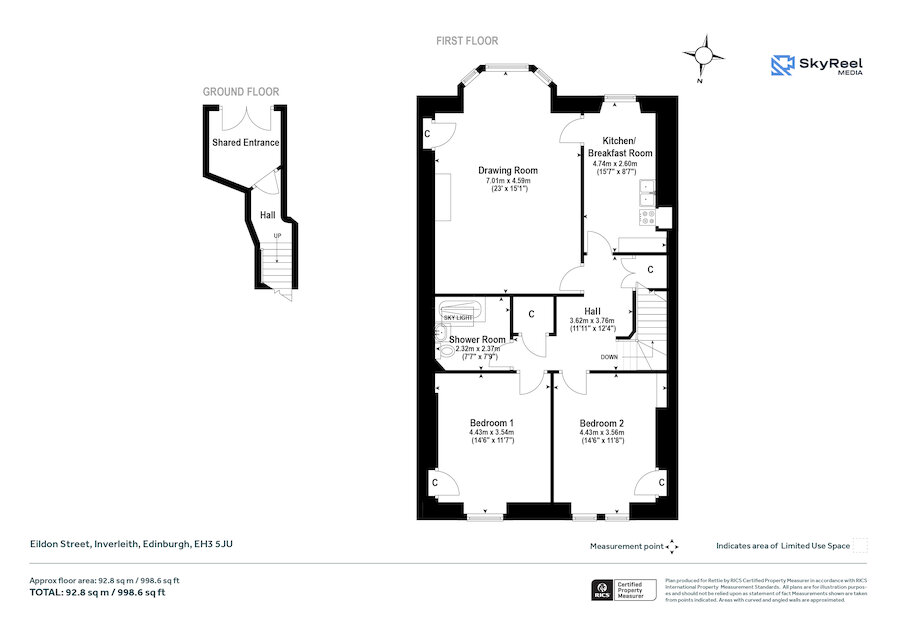
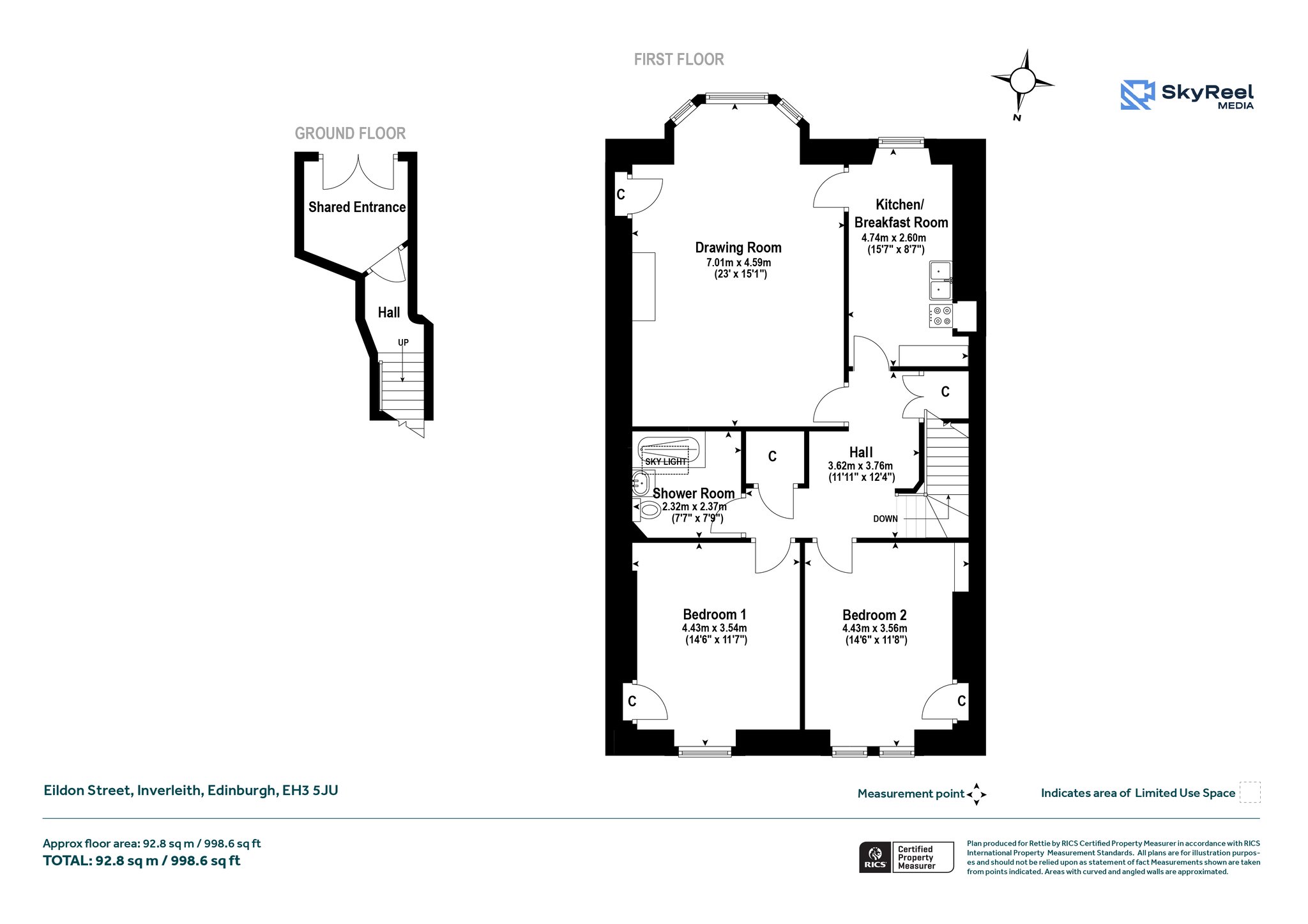
Summary Of Accommodation
Drawing Room ,Kitchen, Principal Double Bedroom, Second double bedroom / Library, Large Family Shower Room, 2 Large Walk in Cupboards, Charming Staircase and Hall
External
Secure Entry System with Storm Doors, Hall and Entrance Door. Residents Parking on street
Location
Eildon Street is one of the most desirable addresses in North Edinburgh, prized for its peaceful setting, open outlooks and proximity to the city centre. The area offers an ideal balance of green space and urban convenience, with Warriston playing fields directly opposite, providing uninterrupted views and easy access to scenic walks and outdoor leisure.
Just a short stroll away, Canonmills offers a range of local cafés, independent shops and everyday amenities, while nearby Stockbridge boasts an acclaimed selection of boutiques, restaurants, and the popular Sunday market. Inverleith Park and the Royal Botanic Garden are also within easy reach, offering expansive green spaces and picturesque surroundings.
The area benefits from excellent transport links, with frequent bus services connecting to the city centre, Leith, and further afield, as well as easy access to major routes for commuting.
With its calm, residential character and exceptional outlook towards Edinburgh Castle, the location of Eildon Street combines charm, connectivity and an outstanding sense of place.
More Details
EPC: C
Council Tax band: E
Tenure: Freehold
Your home may be repossessed if you do not keep up repayments on your mortgage.
There may be a fee for mortgage advice. The actual amount you pay will depend upon your circumstances. The fee is up to 1% but a typical fee is 0.3% of the amount borrowed.
Similar Properties
Looking To Sell Or Let?
Rettie is one of the most trusted and well-respected names in property. Our unrivalled market knowledge helps people from around the world buy, sell, let and develop property in Scotland and the North East of England - from city apartments and rural cottages to large townhouses and prime country homes, farms and estates. We deal with some of the most prestigious properties on the market, but provide the same exceptional standards of service and value for money to all our clients.
